Adam Nathaniel Furman是来自伦敦的一位设计师,同时也是一位拥有独特品味的艺术家,他的作品受到“Queer Aesthetics (怪异美学)” 的影响,执着于对色彩和形状的微妙捕捉。
他的作品总是让人觉得:有点怪,又有点可爱,因为极强的视觉冲击力,令人过目难忘。
今天我们来看一个他的室内设计案例,位于日本东京的中心位置,面积达到了160平米,曾经的这里被划分为多个小隔间,仅通过窄而长的过道连接各处功能区,且装饰过的天花板非常低矮,空间采光受到了严重的阻碍,用Adam Nathaniel Furman的话表示:那是一个会幽闭恐惧症患者不敢踏入的地方。购买下这里的业主为一对非日本籍的夫妇,他们希望家可以完全打破束缚,不仅轻松愉悦,更要令人惊艳。
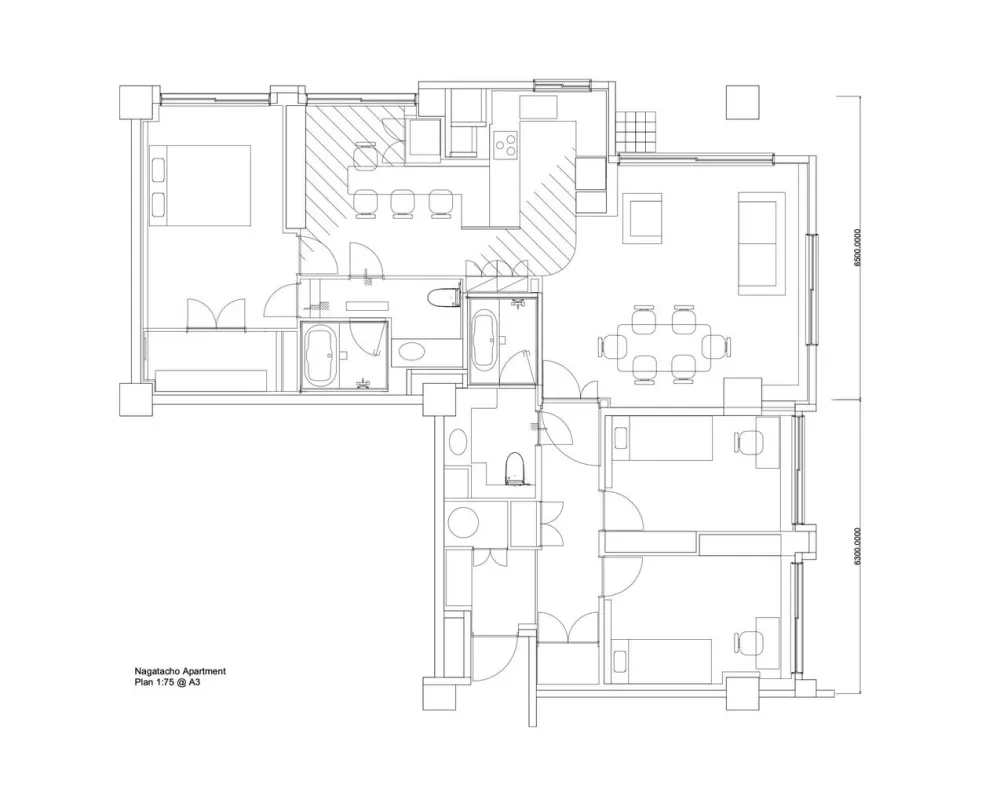
▲从平面图可以看出,160平米的空间,设计师进行了全新的规划,紧贴着入口为两间次卧,紧接着是开放式的客餐厅以及厨房,最顶端为主卧,共有三室两卫。
▲在Adam Nathaniel Furman的手里,就没有平淡与乏味!其实Adam在最初的设计时,进行了很大的收敛,相比于他的艺术作品显得更加保守严谨,可这对夫妇表示,他们爱的就是Adam独特与不羁的艺术魅力,即便是家也不例外,所以自入口开始,这里便是一个甜蜜的调色盘。
▲入口的过道集合了粉、紫、绿、蓝、黄,简直就是一条彩虹路!
▲这是入口处的两间次卧,布局一样,仅通过不同的色彩进行划分。墙面的规划我们来看一下:
▲由于两间次卧仅一墙相隔,若是传统的一字型墙面,那么两间房都无法得到方正的格局,空间利用率也会减小,设计师经过巧妙的改造,以阶梯式的墙面重新连接,两间次卧的衣柜恰好可以嵌入其中,不仅视觉上美观,也提升了空间利用率。
▲鲜艳的色彩与几何图形,都是Adam Nathaniel Furman的作品里不可缺少的,这样饱满明艳的搭配,你还能睡得着吗?你敢去做客吗?
▲入口处拥有一个设施齐全的洗手间,设计师的童年是在日本度过的,他清晰的记得,当时家里洗手间整墙的小马赛克砖,所以在本次的改造里,他也说服业主夫妇使用了这种元素。
▲只是这里的色彩更加丰富,光是马赛克砖就
用了蓝色与脏橘色,木柜选择了浅蓝色,而金属配件以及柜体内部则大胆采用柠檬黄。
▲不说别的,单独看这个黄色的手龙头,就问你可不可爱?你能想到这是一对夫妇的家吗?
▲第一间洗浴室达到了完美的干湿分离,并且淋浴与浴缸也分开了哦。
▲在这条彩虹过道的顶端,一扇黄蓝相间的门,完全遮挡住了建筑北侧的景象,若是有客人第一次到访,可能会以为这个家已经小到可以一眼望到头了,带着这种疑惑去发现其余功能区,是不是会更加充满兴趣?
▲小编将这个家比喻成调色盘,因为有无数种的可能都会成为惊喜呈现,而拥有“怪异美学”的Adam却将这里比喻成一盘盘的美食,比如餐厅的淡紫色地毯,他形容的是“撒了糖霜的蛋糕胚”(好吧,以设计理念为主)。
▲不得不佩服Adam出众的配色能力,他可以很巧妙的利用多种色彩营造出丰富却不杂乱、饱满却不压抑的视觉效果。
▲就算是厨房这种充满了油腻与杂乱的空间,这里也是粉粉嫩嫩的。
▲这个由乙烯基树脂材料铺设的地面,黄绿相间的斜条纹,设计师将它比喻为“西瓜”。
▲既然走的就是可爱少女风,那光有色彩怎么够,Adam聘请了当地经验丰富的木匠,利用传统的锯子以及现代化的激光切割技术,来定制出这些有趣的几何图形,你是喜欢圆滚滚的可爱,还是是优雅的拱形呢?
▲为了让这个家更加特别,也更加实用,设计师在家里定制了非常多的柜体,基本上,你能想到的地方,他都有了,这样就可以将影响色彩美观的物件收进去。
▲这个家将色彩运用到极致,即便是一扇门,也都通过不同的底色进行划分。
▲设计师表示,室内的一些灵感来自于大街上的游戏、动漫,毕竟在这个充满二次元气息的国度里,色彩、造型似乎完全没有束缚。
▲虽然有些甜腻过度(个人想法),但是作为家,它所配备的功能区是完全合格的,U型料理台、水池合理的选在了中央、嵌入式的冰箱、丰富的收纳空间。
▲这是室内的第二间洗浴室,马赛克砖由蓝与脏橘色,换成了深与浅的紫色,延续的色彩为柠檬黄,全新加入的为粉色的柜面,让厕所时光,也拥有幸福感,说到这个,不得不提一下超大号的电热毛巾架,真的非常实用哦。
▲这是从主卧的角度看向东侧功能区,虽然现在也被单开门进行划分,但是通过色彩可以避免厚重与压抑感。
▲这是一扇,小编也没找到地方的双开门,看一下空间的利用,上方横梁的两侧,都定制了尺寸合适的柜体。

