Ledge House
Desai Chia Architecture
 
 
这是一个位于康涅狄格州山谷深处的黑色小木屋,却是与自然共鸣的避世好宅。由美国本土建筑事务所Desai Chia Architecture设计,建筑灵感源自于该地区土著谷仓的简洁造型,设计简化了建筑的内部空间结构,大大减少了自然资源的浪费,也实现了柯布西耶所倡导的自由平面。
 
 
 
 
森林、苔藓、落叶、阳光,生机勃勃的山谷,写满了自然的诗意。
 
 
 
 
设计师在室内设计中延续建筑的简洁风格,以朴质温馨的木地板与大面积的白色肌理为基调,与自然环境相融合。从设计手法来看,像极了日本建筑师的风格。
 
 
 
 
 
 
 
 
 
 
通透的落地玻璃是卧室最为重要的设计元素,引景入室,简简单单的软装陈列,却是动人心魄的诗意栖居,听着风声、雨声、闻着虫鸣鸟叫,这就是自然最好的馈赠。
 
 
 
 
 
 
 
 
 
 
 
 
 
 
Lakeside house
设计 | Dive Architects
 
 
这是Dive Architects在斯德哥尔摩北部偏僻的森林湖畔打造的一个湖景山居小屋,坐山观水,面湖而居,与周边的桦树、松树林完美融合。
 
 
 
 
 
 
 
 
建筑规划分为两大区域,分别是生活区与睡眠区,整个设计以山谷丛林为背景,以湖为中心。“在这里,早餐时享受早晨的阳光,随着时间的流转,可以在每一个角落欣赏日落,发呆。”
 
 
 
 
 
 
 
 
山、林、湖、草、木,绘成一幅美丽动人的风景画,阳光洒入屋内,四处飘逸着清新自然的气息,慵懒的自然山居生活让人越发慵懒,如此美好的慢时光,很适合阅读、发呆。
 
 
 
 
 
 
 
 
 
 
 
 
 
 
 
 
 
 
 
 
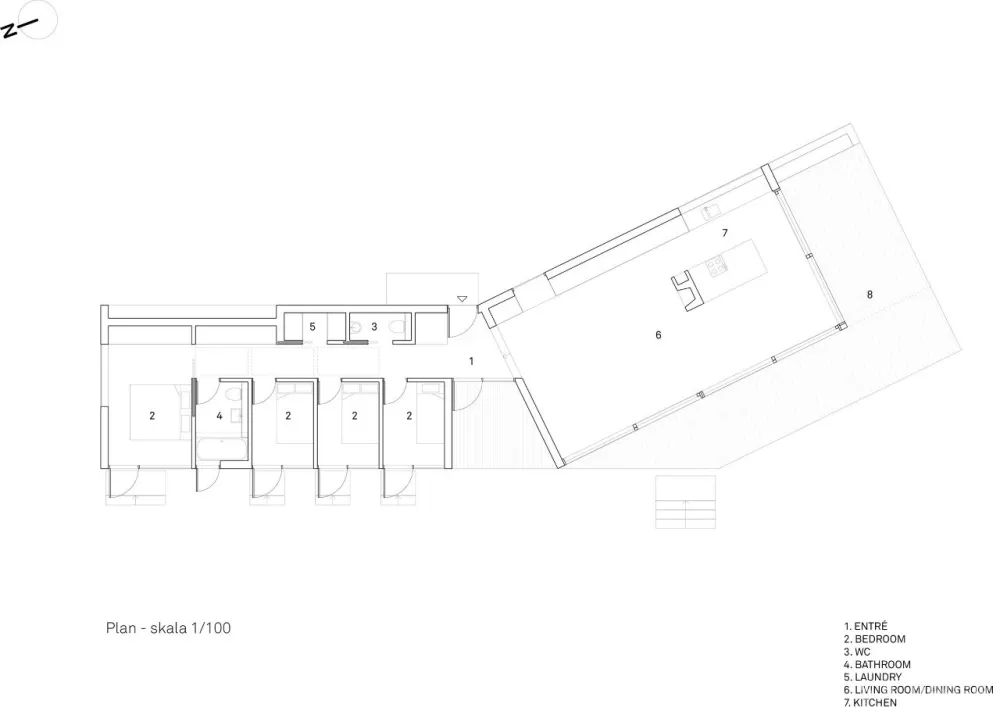
Kappland Arkitekter
 
 
北欧设计以自然主义而著称,奥斯陆的建筑事务所Kappland Arkitekter 在挪威Stokkøya岛打造了这个独特造型的度假小木屋。东边是大片的绿色景观,西边是壮阔的海景,全天均可观海赏日。
 
 
 
 
为了保护基地,建筑师在倾斜的山地上打造了一个悬空的木桩,假如有一天想拆卸建筑,可以将整个建筑直接吊走再重复利用。
 
 
 
 
 
 
 
 
 
 
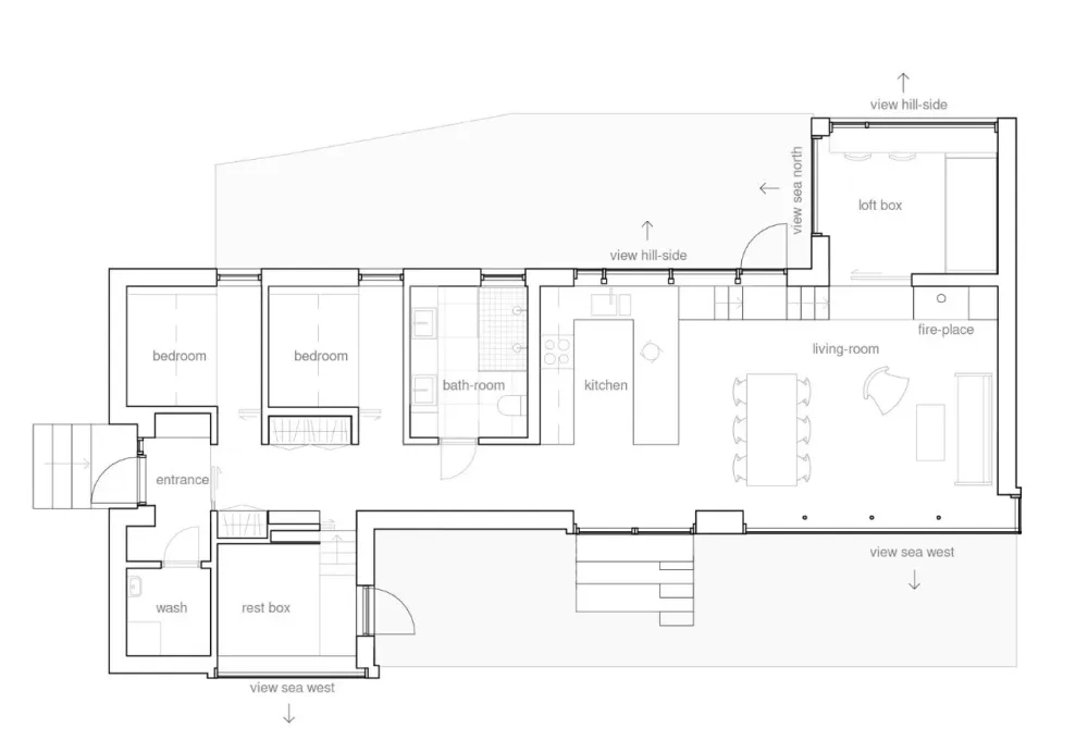
Cabin at Rones
设计 | Sanden Hodnekvam Arkitekter
 
 
这是Sanden Hodnekvam Arkitekter在挪威的Beitstadfjorden打造的混凝土度假屋,业主是一对年轻的夫妇,他们想要一个可欣赏峡湾风景的心灵栖居小屋,常常来此度假。
 
 
 
 
整个建筑设计是基于如何创建建筑与自然的融合为主旨,Sanden Hodnekvam Arkitekter的合伙人John Sanden这样说:“建筑设计的灵感来自于建造之前现场的自然空间,一块巨大的石头成了建筑的背面,提供自然的庇护。”
 
 
 
 
 
 
 
 
 
 


