秩序意味着光明和安宁,意味着内在的自由和自我控制;秩序就是力量,……秩序是人类最大的需要。 ——阿米尔
金地星荟云庭项目位于“土壤膏沃,岁得常稔”的历史文化名城常熟,交通便捷、水系景观优美。EH DESIGN GROUP 易和设计集团打破吴越之地古韵温婉的刻板印象,用金属、石材、玻璃等材质,培养线条硬朗的空间气质。打造极具科技感的艺术空间。
金属线条穿插、交叠,形成立体的网格状吊灯,将数学的理性严谨美具象化。琴弦般的镂空隔断将视觉引向更远处,呈现出空间的秩序美感,也暗承虞山琴派的历史文化渊源。
绅士品格 · 水吧洽谈区
硬朗的金属线条在白色陶板墙面上纵横,简约的线与面描摹出现代空间的艺术感。灰白色桌椅一方一方落于深色地面上,皮革的温情细腻与石材的冷静理性互相衬托互相成就,整个空间秩序井然大气得体。
水吧置于明亮之中,木质艺术品和金属雕塑颇具雅趣。马醉木枝叶疏朗姿态放松,静立吧台之上,礼貌而不过分热络地与来访者产生舒服的联系。
审美养成从孩子开始,儿童区从家具设计到艺术品造型、空间配色,都在无声向孩子传递设计之美。配色高级的马卡龙色球形灯,错落地悬浮于上空,如宇宙星球般引起无限遐思。
沉思的北极熊雕塑憨态可掬,映照儿童的纯真;布朗熊玩偶软萌可亲,消除儿童对陌生环境的恐惧感,让孩子在此尽兴玩耍,从情感上建立对新居的憧憬。
心之所向,素履以往。EH DESIGN GROUP 易和设计团队秉承着“设计·美好·生活”的品牌理念,将对未来的美好期待与设定融入到空间之中,敲开人们潜意识中美好生活的大门。
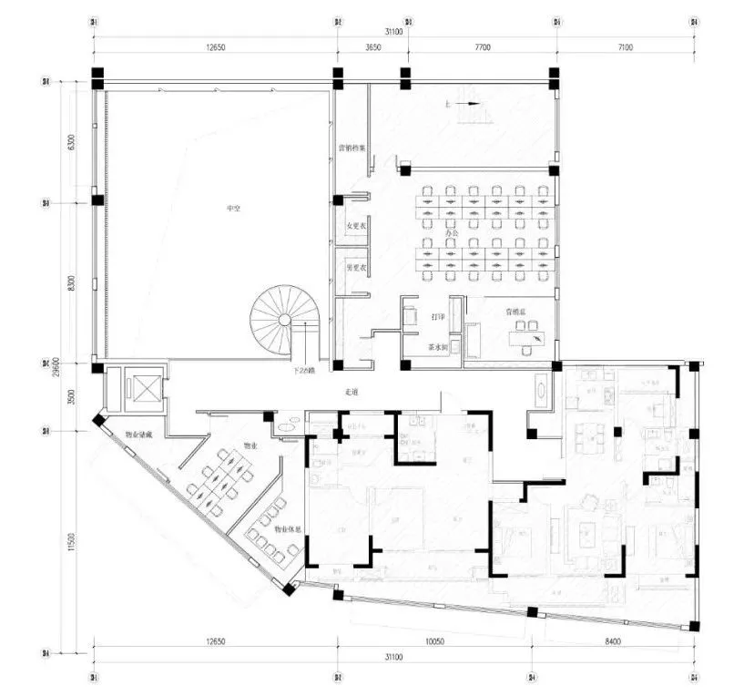
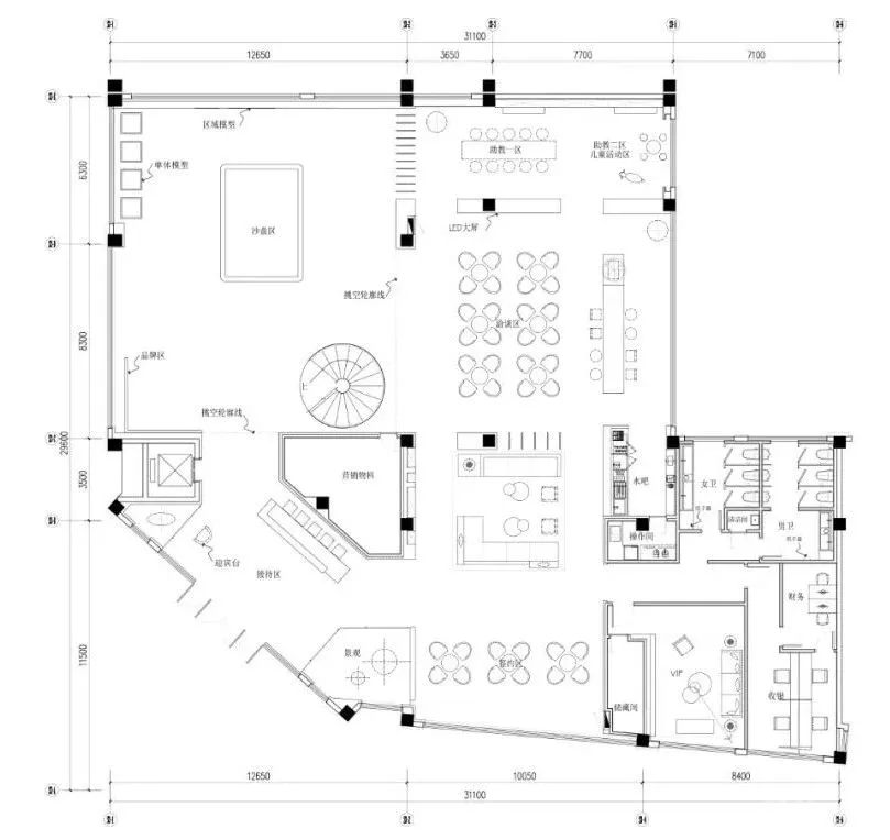
项目名称:星荟云庭售楼处 投 资 方: 无锡融御 管 理 方: 金地管理 项目面积:846㎡ 甲方团队:周阳、李春 室内设计:EH DESIGN GROUP-易和室内设计团队 软装设计:EH DESIGN GROUP-极尚软装陈设团队 项目地点:江苏常熟 项目摄影:ingallery

