随着年轻一代的消费群体的崛起,购房者年轻化趋势日益明显。追求新生活方式的他们,有着更为个性化、差异化的消费需求,且更愿意为自己的审美付费。然而在房价居高不下的今天,小户型如何承载年轻人的居住理想?设计又如何平衡功能与审美,实现年轻一代的品质生活?
时光·若素 光之寓 深圳国际会展中心1号馆 2020.08.20-23
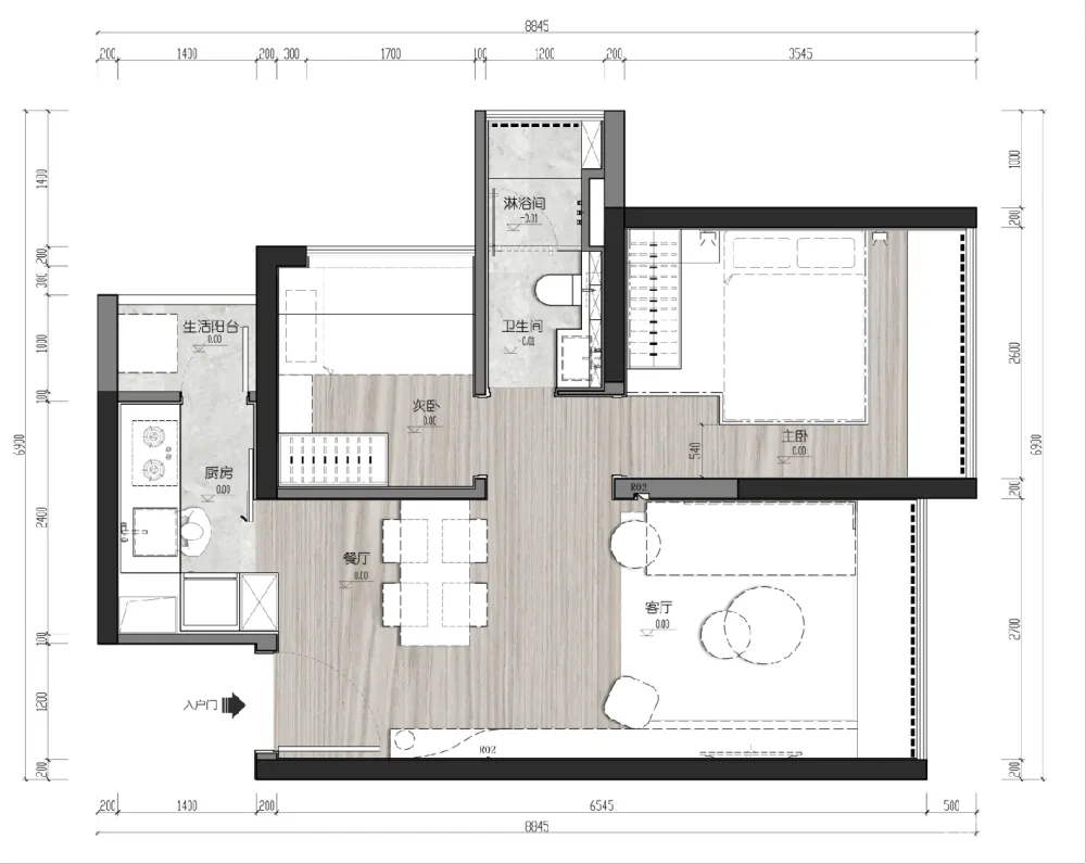
在2020深圳国际精装住宅展的设计中,受邀出席户型挑战的派尚设计做了一次大胆的尝试——36㎡史上最小两房!设计围绕“光之寓”主题,呈现派尚一贯擅长的艺术笔触,融入年轻一代的美学趋向,摹刻生活的诗意,赋予空间以精致的结构、优雅的气质、极简的格调。 “派尚设计多年深耕于都市地产设计领域,不断研究当今地产产品与消费者的关系,对年轻一代对生活方式的向往与需求有着十分深刻的理解。在这次在36㎡的两房空间设计中,如何将艺术内涵与空间精神相融合,成为派尚设计诠释生活的N种可能时,所构建的艺术立意。”设计总监周伟栋如是说。
本案预设了一对极具艺术品味的夫妇为居住者,他们年轻、热情、有活力,对于他们来说,房子不仅仅是一个吃饭睡觉的居所,更是一个承载美好日常的温馨之处。在追求品质生活的道路上,他们坚信家是诗意的居所,生活的本真就是艺术。
“在小户型空间中生活,并不意味着人选择了空间功能,就只能舍去部分生活品质。我们的设计,恰是要在功能布局与审美设定上取得平衡,优雅小居,亦有品质生活。”对此,派尚设计兼顾人居需求的维度、艺术美学的角度,为空间注入了实用的功能与美好的细节,让万能小户型也能承载居者对美好生活丰富而立体的想象,从而展现舒适的生活尺度、通透的美学视野、浓郁的艺术氛围。
于整体明亮通透的室内,设计以线条与光影的交织,描摹空间的灵动气韵,营造惬意舒适的居家氛围。在配色上,延续空间整体风格,设计选用优雅的白色与质朴的木色,令空间在光线的笼罩下,静谧而安逸,使居者身在都市的嘈杂中,得以回归生活的本真。
在讲求空间形式美的同时,设计特别注重空间的实用功能。清晰的动线规划与紧凑的空间布局,将动静关系合理分配,会客与休息互不打扰;方正的室内格局,即确保空间的高坪效利用,又赋予居者丰富的观景视野,令小户型也能拥有大空间的优势。
“太过繁复艳丽的装饰设计,会使观者在空间中迷失审美艺术与想象。”多年的潜研与探索,令周伟栋在空间营造中保持着简明的理性,坚持以当代简练的设计笔触与不凡的艺术想象勾勒出空间的生活美学质地。
“设计并非只是设计一个具体的物、一个单纯形式美的空间,而是营造独特的空间情绪与美学体验,予人引起共情,令其内心有所触动。”走过22年设计历程的派尚设计,思索生活的N种可能时,不仅关注设计本身,同时关照人居诉求,深入表达居者理想中的生活方式、场景艺术,其为年轻一代打造的全新户型,并以新尺度展现了新思考。
项目名称 | 光之寓 项目面积 | 36㎡ 设计单位 | 派尚设计 展会地址 | 深圳国际会展中心1号馆 展会时间 | 2020.8.20-8.23
深圳市派尚环境艺术设计有限公司创立于1998年,由60多名室内设计师、陈设设计师和管理精英组成。派尚设计以理性的设计策略为引导,注重环境、建筑、历史源流与美学积淀,研究空间与人的交融与互动,以“现代手法,东方精神”,实现空间的优雅、质感和温度。
公司专注于精品空间设计,20多年来共完成1000余空间设计作品,多次赢得国际国内室内设计专业奖项最高荣誉。曾为万科、华润、中粮、中海、苏宁、卓越、金科、阳光100、万达等一流品牌企业提供专业空间设计服务。通过客户的口碑传颂,从地产样板房、营销中心、会所等传统优势项目拓展到精品酒店、办公空间、艺术展厅等高端体验空间。
派尚设计代表作品 Design Works
上海华润嘉兴鹭栖湖销售中心
深圳中粮祥云国际展示中心
成都卓越樾山府销售中心

