本案投稿:LWD梵池设计
“空间”的生命就是它的美
给使用者传达美和情感的就是建筑
“东方、简约、均衡,建筑与艺术五大元素是LWD梵池设计的核心设计理念。”LWD梵池设计运用简约之笔勾勒东方美学艺术,基于现代生活理念,并以东方文化元素的思维来平衡传统与现代的辩证关系。
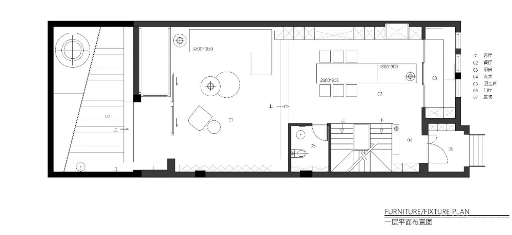
在开放式空间设计中,客厅、餐厅既保持互通相连,又体现出每个空间的独立性。灵活运用木色,给予空间温暖的触感,秩序谨然又不失温度。
现代画搭配清水混泥土扩大了空间层次感,创意的采光设计与冷暖色调结合使空间和谐立体,凸显简约与现代,使空间变得自然灵动。
绵密柔软的地毯和淡雅温润的灯光在不打破现代感的基础上和谐镶嵌在简约之中,为空间的现代感赋予柔和静谧的色彩。绿植点缀其间,凸显自然和谐的现代之美。
巨大的落地窗让人的视觉维度无限延伸,移门将书房与卧室巧妙隔开,化繁为简的设计体现出开放空间的现代感与层次感。
儿童房以灰白为主色调,搭配动感的地毯,风格简约而不失趣味。室内门帘将睡眠区与活动区简易分隔,使空间格局井然有序。
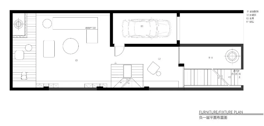
阁楼依据黄金分割比完美分割,塑造深层次空间立体感,蚕丝艺术吊灯加以点缀,配合良好的采光,将现代与古典完美结合,狭小的空间蕴含着舒适简约的生活理念。
吊灯自顶楼垂至底层,光线衔接在阶梯之间,现代感深入浅出地融于艺术之中。钢化玻璃嵌入实木踏板之中,光线穿透楼梯,房间明亮柔和。
“见微而知著”,设计师不断平衡宏观的格局与微观的细节,将现代风格与东方之美、将细微的感情与绝佳的设计完美结合,创造出简约而有温度,现代而不失生动地作品。
项目名称:中国南京仙林私人住宅
设计公司:LWD梵池设计
设计周期:2018.4-2018.5

