项目地址:贵州省凯里市环城东路 兴家坡路口
主要用材:橡木饰面、旧木、爵士白大理石
作为黔东南人,黔东南人的理想火锅店大概长这样,因为黔东南人太爱酸汤火锅和烧烤了。
可以说,黔东南人三天不吃酸走路打喘喘。上了火锅的桌怎么能少了米酒和烧烤呢
吃火锅非常喜欢吃酸和和米酒的黔东南人,对火锅的店面空间,又有怎样的取向和偏好呢? 年轻人的火锅,到底怎么吃,才吃得姿态好看?
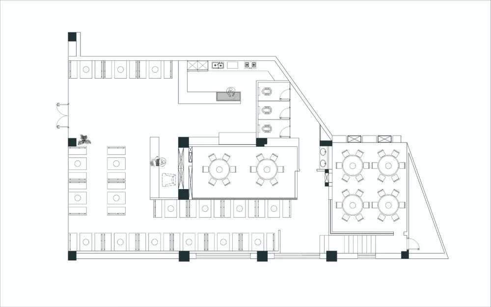
作为黔东南人,也是刚入行的设计师,那么我更加着重于店面空间、布局的合理性以及动线的流畅性,而不拘泥于一般火锅店的符号和意象,而另辟蹊径地打造一个现代工业风潮的霸气场景,创意大胆,气质硬朗,以突破传统的空间气质,让个性张扬的年轻消费群体产生黏性。
运用旧木、橡木饰面、大理石等常用的材料,整体空间色调均为暖色调。
大理石的白、橡木的原木色,包厢内,壁面的木饰面材料,白色乳胶漆和木纹纹理,杂糅出山城独有的粗犷热烈又不失细腻温和的空间表情。
裸露管道的吊顶装饰用艺术化的表现丰满整个空间情绪,有肌理的深色乳胶漆在灯光中漫反射晕染出引人瞩目厚重的艺术效果。
故意痕迹地掩盖住上方的排烟系统,同时有意识的隔断规划出空间的相互独立性,保持视线自主连通,空间整体通透。
在捞酸有黔吃火锅除了热闹,更有了艺术感和体验感,赋予空间新的生命力,展示了火锅店聚餐氛围的另一种可能性。
餐饮空间 旧木 橡木饰面 爵士白大理
原创作品

