Kanstantsin Remez新作,一个隐蔽的,简约的住宅的概念。该项目的理念是创造一个当代的空间,提供一定程度的视觉安全,同时给予自由,从内部开放。
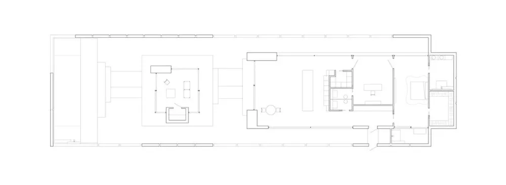
这个项目是一个封闭的矩形,分为3个区域: 主要空间,一个单独的客厅和一个室外游泳池区域。
在外部,主要材料是混凝土,延伸到内部
内部是一个延续的建筑结构,由于以一般的材质为主和内部元素的最小集,决定了内部特征。建筑的主积主要包含以下功能区域: 带小餐桌的厨房、储藏室、带独立浴室的办公室、卧室和带衣柜的浴室。
卧室里还有一个通往开放式浴室的出口。
起居室是从主体中分离出来的。
这样做是为了创造一个空间,让你可以真正地放松身心。
Kanstantsin Remez
Kanstantsin Remez是一名白俄罗斯的室内设计师,喜欢极简主义,致力于研究将侘寂美学与东方禅意相结合的空间哲学,坚持以极简的设计手法和原始自然的材料,营造浪漫诗意的当代人居空间。
内向的住宅与通常的住宅形象相反。大多数项目都利用自然作为灵感的源泉,开设大窗户,欣赏美丽的景色。但如果那里没有美丽的风景呢?在这种情况下,什么可以作为灵感的来源?
对Kanstantsin Remez来说,这就是建筑本身。
早上醒来,我想看看形状和光线。
我觉得它能激发灵感,增强活力,设计本身就是由两个圆柱体组合而成的。
工程中的基础材料——粗混凝土强调了形式的禁欲主义。
这种材料顺利地延伸到室内,在那里它也是主题,并创造了外部和内部之间无法摆脱的联系。
一楼有以下功能区: 厨房、餐厅、客厅和技术室。
从客厅到阳台,从那里可以到达第二层。
整个第二层位于卧室下面,有浴室,衣柜和座位区。

