当我们旅行时酒店的住宿功能已经不是唯一的需求,我们更希望酒店设计特别,给我们一起新的启迪和新鲜感。当下的酒店包括国家品牌都是千篇一律,有灵魂的设计让我们置身其中,充满想象的酒店少之又少。然后对于设计师来说酒店更是近距离学习和现场感悟的最佳场所。
好的设计酒店可以满足客人自己的品味和审美欲望,在满足日常差旅的住宿问题,同时也是社交的场所。那么我们今天为大家分享一家由修道院改造完成的风格独特的独立酒店,看看设计师如何将老建筑的灵魂融入到现时代的设计中。
新古典建筑群的DNA
位于比利时安特卫普市中心的August Hotel,前身是奥古斯丁修道院,拥有神圣的灵魂,建筑本身也充满了魅力。在比利时传奇建筑师Vincent Van Duysen的设计和修复之下,让每一个错综复杂的细节都带有现代主义的色彩。从老旧的修道院成为了现代人的“避难所”。
AUGust 酒店位于比利时安特卫普的一座 19 世纪修道院里,周围有一大片美丽的新古典主义建筑群,看上去宁静而富有宗教气息。
比利时建筑师 Vincent Van Duysen 负责酒店的翻新设计,这也是他的首个酒店项目。翻新工作的重点,是对古老建筑和历史 DNA 的保护和还原。通过加入现代建筑元素来添加酒店所需的功能空间。
△Vincent Van Duysen
翻新工作的重点,是对古老建筑和历史 DNA 的保护和还原。通过加入现代建筑元素来添加酒店所需的功能空间。
“我的工作非常低调,也非常微妙,他是永恒的。在目中程度上,这是一种带有保守的现代性”——Vincent Van Duysen
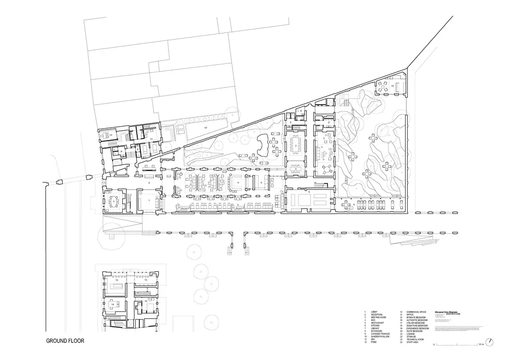
该项目包含三座花园和五座公共建筑,共 44 间客房,使用相同的设计手法修复后,酒店大堂比其他房间都要精致的多,仿佛还能感受到过去修女们低调、质朴的生活氛围。
△before-翻新前的修道院大厅
作为安特卫普设计界的领军人物Vincent Van Duysen的作品风格低调,而这种风格也显然源于这座城市的历史建筑节奏。
修女们以前的私人教堂将成为主要的休息室和酒吧区,场地附近有两个带花园的联排别墅,其中一个将容纳一个带有自己过滤芦苇床的室外游泳池的水疗中心。
大堂设有吧台,作为酒店主要的公共休息区,采用 Flos 的 Adolf Loos 灯饰,以及与 Molteni&Co 合作的定制家具。
为了加固建筑主体,设计师利用钢结构框架,作为对原始砖墙的补充,且刻意不去破坏现有的基础架构,更不会造成任何视觉上的不和谐。
△before-翻新前的会客室
我们的设计首先是尊重场地和周围环境的历史遗迹的特征,并遵循重新开发所列出该建筑的一些原则。这是通过恢复其新古典主义的辉煌和通过添加现代建筑元素,适当地改造为现代酒店的新功能得到实现的。黑色元素被有选择地引入,以区分现代与经典。
VVDA室内设计以尊重历史特色为基础,重新整合了原有的镶木板、白色石膏线等元素,引入黑色作为点缀,从而区分现代和古典。
VVDA不仅设计了建筑空间,还设计了软装家具。几乎每一件产品都是由Molteni-C公司生产的。家具里包括椅子、桌子、扶手椅和沙发是专门设计的,以提供现有空间的对比,并带来了当代生活气息。家具与周围的建筑相协调。
此外,这些家具满足了酒店的各种需求,从在入口处为客人提供热情的欢迎,到在教堂里聚集人群,再到在室内空间里划分了舒适的用餐区和休闲角落。
卧室保留了经过修复的木结构天花板,椽条以相同间隔排列,带来古朴自然的光影效果。
教堂后面的建筑是修女的生活区,将包括大部分客房、厨房和一个客人图书馆,。建筑之间的走廊加盖轻质钢结构天窗,将自然光引入内部,形成天然透光连廊 。
项目名称:August酒店 项目位置:比利时安特卫普 项目类型:酒店设计/建筑改造 完成时间:2019 设计公司:VVDA-WCA 摄影:ROBERT RIEGER

