小编在大学刚毕业时做了半年的少儿美术老师
可谓是教育建筑设计的“宝藏”
他们对于幼儿教育建筑也有着自己独特的见解
他们是怎样用尽浑身解数征服“熊孩子”的吧
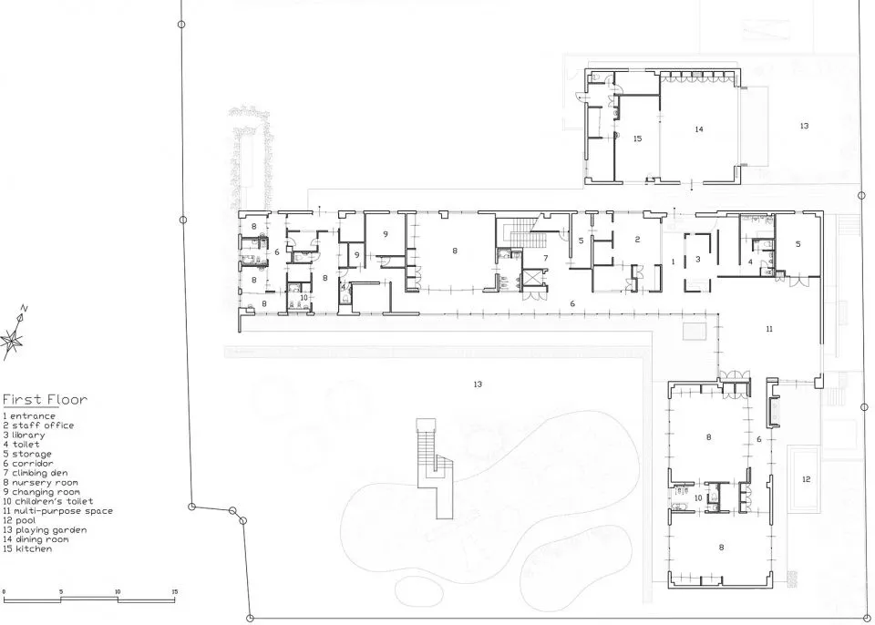
IBG幼儿园 / 北京
从自然环境中培养五感和感知能力
IBG的首字母中有灵感、二元文化、绿色的含义。从自然环境中培养五感和感知能力是非常重要的。
IBG选用自然的木材,石材,真正的草坪以及种类繁多的树木,使孩子们在日常生活中从自然素材得到学习成长。IBG的设计理念为通过和自然相接触能得到学习成长的园舍。
孩子们日常生活中能与此相接触
处于幼年期的孩子需要体验的身体动作有36个,是要在活动身体的多种游戏中习得。最好的方法就是在有着丰富大自然的室外玩耍,楼顶是「动之庭」包含运动项目在内用途多样,中庭是「学之庭」配置了大量的绿色植物。
教室室内简洁,外部结构丰富突出。美术室、图书室、STEAM教室作为亮点采取了区别于其他房间的要素作为特别空间而存在。图书室的墙壁、棚架以及天花板均使用木材而制,利用木头的温润感创造出让人安心的空间。
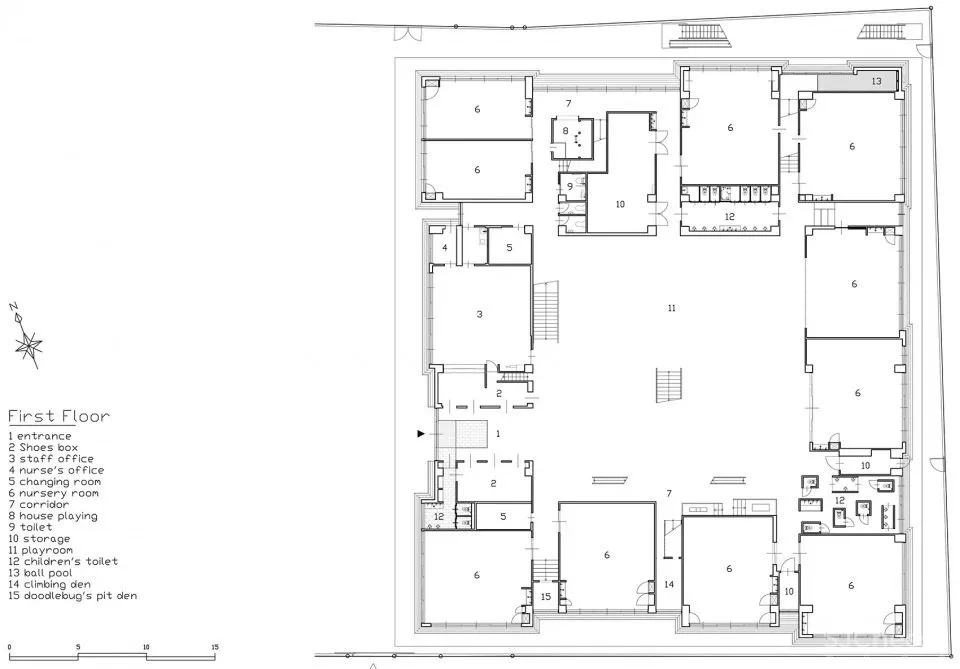
儿童活动中心 / 北京
该项目是位于北京某高级公寓底层的一家儿童保育和学习中心,以当地的年轻家庭为目标群体。整个空间为半椭圆形,层高4米。设计团队以“城市中的街道游戏”作为核心概念,试图在室内引入北京老城区街道的感觉。
为了提供多种形式的活动来满足孩子们不同的需求和喜好,整个体量被有机放置的集装箱分成不同区域。这些集装箱被设计为开放式的,以便孩子们能够自主识别每个空间的功能。
此外,人们还可以根据不同设施和教育项目的需求,简单地调整模块以对空间进行收缩或拓展。过道中的亲密区域给这个开放空间增加了一些私密元素,不仅孩子们会喜欢,而且还适用于那些需要集中注意力的活动。
模块的设计极其简约,仅使用了两种颜色:外墙为深灰色,而屋内的地板、墙壁和天花板均为木质本色。
MRN托儿所 / 日本
本项目位于宫崎县都城市,坐落在雾岛连山的山脚下绵延的田园风光中,是一个幼保连贯儿童园的重建项目。
长大后成为保育士后重回园舍工作
成为父母过后也把自己的孩子送回这个幼儿园
因此设计团队以「羁绊」为主题设计了园舍
而小编认为真正的「羁绊」
经过30年不断增建改造,园舍逐渐脱离了原本希望的保育环境。为了解决对应这个问题,根据用途分明地划分构成了空间。有意识地加强对庭院空间的整理并呼应「羁绊」的主题进行了空间环境的构成。
为了能守护孩子们,以园庭中的四棵大树为中心,不管从哪个保育室都能看见,强调了「羁绊」。广泛使用了园儿们能接触到的材料——宫崎县产的杉木和柏木,即使是材料也注重和当地的连接。
着手于现有的问题,通过区分活动身体的空间以及饮食空间,孩子们能够在不同空间中有意识地进行活动学习。
因高低差而产生交流的园舍
本项目是福井县福井市幼托连贯制园舍的改造项目。守护着EZ托儿所的足羽山从以前开始就是被当地居民所喜爱的地域象征。
山间的路不仅可以使人和原本的自然亲近,还包含了很多促使孩子们拓展延伸游戏的要素。本项目的改造目的是促使一直以来统一的保育环境产生变化,从而使得在足羽山的自然环境中所诞生的游戏动作在园舍内也能产生。
幼儿设施中经常被栅栏关闭的楼梯被故意设置在了园舍中心。这个楼梯不仅创造了一个能够看见幼儿园整体样貌的区域,还延伸出了新的游戏空间,是一个可供不同班级、年级的人交流并获得社交能力的场所。
设计团队选取了在大自然中发生的动作,创造了能够进行「跳」「摇」等动作的网状游戏道具,能够进行「翻」「捡」「投」等动作的楼梯下的木池,以及能够进行「滑」「攀」「躲」等动作、附带绳子的小型秘密基地等。
在这样一个既融入足羽山的自然元素又不过度修善的游戏场所内,孩子们能自己创造出大人们意想不到的游戏方式。
通过游戏培育健康身体的园舍
这是爱媛县松山市的新建幼儿园项目。近年,由于手机游戏的普及室内游戏增多,孩子们自己在室外拥有丰富变化的环境中创造发现游戏的机会也被剥夺。
在这样的现状下,以「通过游戏培育健康身体的园舍」为概念对KO幼儿园进行了改造计划。
以孩子们游戏的原风景「路边」为形象,在园舍中设置了14个游戏场所。在这个游戏场所中,融入了可锻炼到山梨大学教育学部的中村和彦老师提倡的「跑」「跳」「堆」「端」这样幼儿期很需要习得的36个基本动作。
简直满足了小孩子对幼儿园的所有幻想
由福井大学工学部的西本雅人老师发起进行的,根据KO幼儿园的旧园舍和新园舍中有关孩子们运动的比较研究,3-5岁孩子的步数平均增加了两成。并且,在旧园舍中没见过的「抛」「钻」「爬」「骑」等动作在新园舍也得到了实现。
KM幼儿园 / 日本大阪
能让孩子动起来的幼儿园
业主要求设计师对位于大阪南部的一所荒废的幼儿园进行彻底改造。设计师主要解决的两个问题,一是由于场地有限导致的孩子们缺乏锻炼的问题,二是帮助孩子们学习自己居住的地方。
为了解决第一个问题,设计师想创造一个流动的环境从而自然地引发孩子们运动。从这个概念出发,建筑体量的一部分通过坡道与游戏场融为一体,从屋顶可以逐渐到达游戏场。这样可以轻易地推动孩子们向上运动。
此外,还有一个楼梯可以快速通到楼下的游戏场,从而完成追逐和运动的循环。投入使用后客户告知设计师们该设计极大地增加了孩子们的活动。
为了实现第二个目标,设计师们用纺织材料制作了教室的签到板、地毯等物件,以及一部分墙壁,并且将它们融入到游戏中去。当孩子们直接与这些纺织材料互动时能够帮助加深他们对各种面料的理解。
NFB托儿所 / 日本奈良
该建筑的场地位于奈良省大和郡山市的工业园区内,设计单调,用色单一设计师希望在工厂环境背景下创造一个活泼而有趣的环境。工厂是用于制造的建筑,因此,“制造创意和梦想的工厂”成为了关键的设计概念。
设计师们认为幼儿园是一个有关教育和成长的地方,而不是一个充满色彩和玩具的游乐园。他们的设计给孩子们提供了各种各样的自我学习的机会。
这用餐的小食堂也太可爱了吧~
考虑到项目周边的环境,我们将工厂的硬性纹理带入到幼儿园设计中,例如用波纹金属板作为天花板等等,并通过庭院里大量的绿植来营造质感上的平衡。
天花板下面的通风管道是用透明的亚克力材料做的,在里面有一个螺旋空气推进器,这样的设计可以让孩子们了解气流的工作原理。
同样,洗手盆背面的管道也裸露出来,展示着整个供水系统和排水系统的功能。当孩子们踩踏踏板时墙上的LED灯会亮起,这个设计体现了能量转换的概念。
这些小设计不仅能够吸引孩子们的注意力,还能让他们体会到知识的实际应用。
MK-S托儿所 / 日本横滨
位于横滨的MK-S托儿所为学龄前儿童提供教学和全托服务。该项目将一栋破旧的、有着40年历史的带有商铺的双层住宅改造为4间教室。“SATELLITE”(卫星)是该项目的核心概念。
建筑保留了原本的外观,立面上增加了一些象征银河的波点元素。设计师利用光影为建筑赋予了深度,从而更新了原始建筑的形象。
造型独特的窗户使路人可以直接望向室内,从而了解到建筑内部的功能空间。它们不仅为室内带来光亮,同时也使室内外的关系变得更加密切。
室内空间使用了具有天然粗糙感的层压木板,所有空间和表面均保持了简洁和紧凑,以实现建筑内部和外部的统一。
让浅浅水洼鲜活孩子们的童年
项目位于日本熊本县,虽然这座具有城市风格的幼儿园已满足众多家长的苛刻要求,但对于孩子们来说,这里仍需要更多可以自由穿行的,能与自然环境接触的活动空间。
为实现这一需求,设计师为幼儿园打造了一个灵活可变的平面布局。与通常的设计手法不同,设计师用灵活的家具摆设代替了固定的室内隔墙,使空间在功能转变之间增加了更多可能性。
与此同时,设计师为幼儿园制定了全新的运行系统。孩子们需要园中购买统一的家具和用具,当他们毕业时还要将所有的家具带走。
由于家具每年翻新一次,幼儿园的内部家具组合也得以适时改变。
滑动凹槽围绕建筑四周而设,置入槽中的活动门窗使得幼儿园可以在封闭空间和半室外空间两种模式下自由转换,实现了建筑的高度空间自由。
是否也有过在地面水洼上踩踏玩耍的经历?
设计师希望将在地面水洼上踩踏玩耍这种有趣的童年回忆重新赋予给幼儿园的孩子们。阴雨天气,浅浅的水洼鲜活了孩子们的无忧童年。冬季里,中庭地面的冰冻装置为孩子们营造了一个小型溜冰场。
除此之外,滑动门窗的打开和闭合让孩子们可以在室内或室外空间中用餐。这种高度自由的空间支配,既满足了多种使用需求,也创造了各种游乐环境。
妈妈再也不用担心我半夜起来不敢上厕所啦~
幼儿园的洗手间设计也十分独特,由于在小朋友的记忆里,洗手间通常是阴暗吓人的,设计师希望可以改变他们的想法。孩子们不再对洗手间感到恐惧,也不再因害怕而不去上厕所。
关于日比野设计 Youji no Shiro(日比野设计)主要提供设计以及监理,重修以及装饰幼儿设施服务。我们也可以提供幼儿设施标志设计。 Youji no Shiro在日语中的意思是“孩子们的城堡”,是日比野设计公司下属的一个部门,位于日本的神奈川县。公司成立于1972年,为了适应飞速发展的社会需求变化,1991年成立了这个专门针对儿童设施的设计部门Youji no Shiro。

