生活不应该是粗糙的,居家应该是精致有格调的,设计师Denis Svirid的作品总是那么精致与优雅,他的小空间改造能力也特别厉害,注重设计的简约和实用,倡导将功能性与生活美学结合。
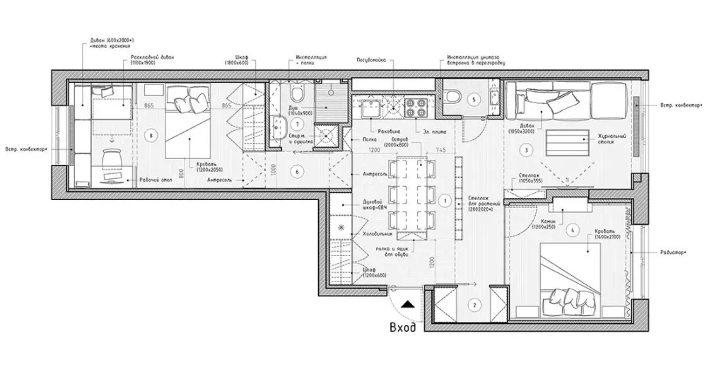
25.7m²小户型公寓
by Denis Svirid
澳大利亚墨尔本25.7m²极致小户型公寓,户主是一位青年的小姐姐,绿 木 灰,设计师通过巧妙的设计让空间超大化,将小小的房子美成了这样。
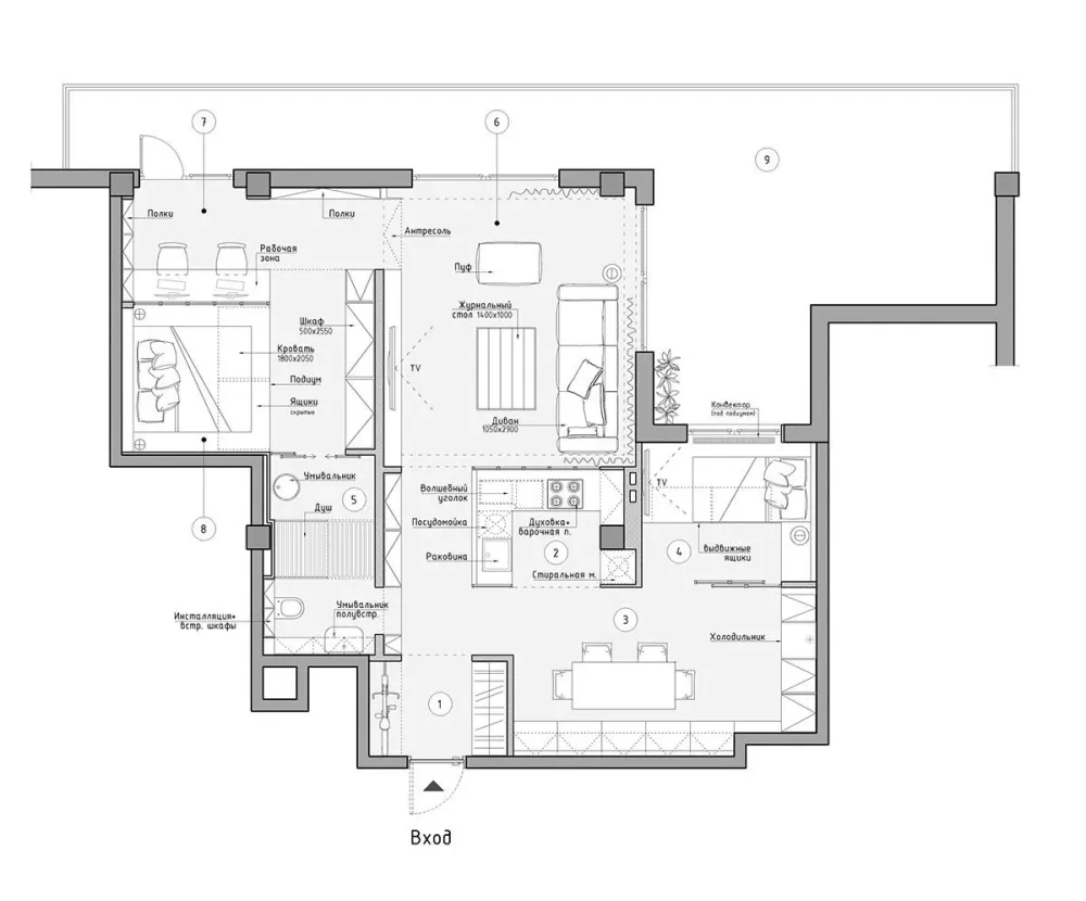
Private apartment
by Denis Svirid
这套小空间Loft,设计师利用空间每一个角落,注重细节的设计,以化繁为简的理念,把空间的物质功能进行还原并实现空间的美感与实用的平衡性,同时也给我们带来更多的享受。
Light apartments
by Denis Svirid
这套私人住宅,室内散落着醒目的元素和充满活力的前卫气息,
每个地方的布局都既时尚又实用,并能适应多种不同类型的家庭。
看一看,或许能得到启发,把一个小城市的味道添加到自己的空间。
by Denis Svirid
66.62m²的小户型被装修得充满春天的气息,优雅不失活泼,面积大窗户,光线充足,搭配柔和的室内配色让空间显得非常宽敞透亮。

