在新消费力量涌动盛行的今天,如何协助传统销售空间传递品牌主张、一展其在文化传承、艺术创新、业态集合上的商业战略姿态,迅速敏捷地优化每一个消费接触点,营造”沉浸式“的互动消费体验,成为此次设计的核心逻辑。
Today, with the new consumption power pvailing, how to assist the traditional sales space to convey brand propositions, display its business strategy posture on cultural inheritance,art innovation, and business form collection, and quickly and agilely optimizeevery consumption touch point to create immersion The interactive consumption experience of style has become the core logic of this design.
地产领跑中国旅游休闲地产,历经百年风雨以“人生最重要的旅途是家”倾力打造城市休闲、旅游度假给消费者一个停泊心灵的休闲的家。
CTS Real Estate leads Chinastourism and leisure real estate. After a century of ups and downs, it has strived to create an urban leisure and travel vacation to give consumers a leisure home where their minds stay.
本次项目位于江干区域东新城板块,地块周边交通便利,教育、医疗及商业配套完善。
The project is located in the East New City area of Jianggan area, with convenient transportation around the land and complete educational, medical and commercial facilities.
茶、鱼米、西湖、丝绸之路
杭州物产丰富,素有“鱼米之乡”、“丝绸之府”、“人间天堂”之美誉。随着阿里巴巴等高科技企业的带动,互联网经济成为杭州新的经济增长点,因此杭州也步入了数字化城市的行业。
Hangzhou is rich in productsand is known as the hometown of fish and rice, house of silk and paradise on earth. Driven by high-tech companiessuch as Alibaba, the Internet economy has become a new economic growth point for Hangzhou, so Hangzhou has also entered the digital city industry.
本次设计带着整体性的思维,以极简的手法营造海上鱼捕的景观,造就明朗和开阔的贯穿格局。
With a holistic thinking, this design uses a minimalist approach to create a landscape of sea fishing,creating a clear and open penetration pattern.
行走于杭州的街巷,尤如画中游水,这座临水之城,不但因科技的力量而备受瞩目,更因文化创新而魅力非凡。中旅归锦府正见证了杭州城市发展从临西湖向临钱江的变迁。
Walking in the streets of Hangzhou, there is picturesque swimming in the water. This waterfront city is not only attracting attention because of the power of technology, but also fascinating because of cultural innovation. CTS Guijin House is witnessing the change of Hangzhou urban development from Linxi Lake to Linqianjiang.
“水”所代表的杭州性格,在中旅归锦售楼处的设计中淋漓展现。建筑四面采光,形似玻璃屋盒,又似船舱停泊在城市当中,人、物、景观融为感性而合一的整体。
The character of Hangzhou repsented by Water is vividly displayed in the design of CTS Guijin Sales Office. The building is illuminated on all sides, shaped like aglass house box, and it seems that the cabin is parked in the city.
透明 | Transparent
在透明性语言中,存在与边界逐渐消解。
Existence and boundaries gradually disappear.
杭州的艺术气氛写意在城市的每个角落。中旅归锦意在艺术画廊般的场景中,提炼出钱塘江水的多变与力量感。
The artistic atmosphere of Hangzhou is freehand in every corner of the city. In the art gallery-likescenes, CTS Guijinyi has refined the change and power of Qiantang River.
透明是中国传统建筑的特质之一,东方的墙体往往表现出轻巧、半透明、简洁、开敞的特点。设计师选择玻璃砖立面材质,造就了视野上的开阔以及艺术品般穿透性。
Transparency is one of the characteristics of traditional Chinese architecture. The walls of the Eastoften show the characteristics of lightness, translucency, simplicity and openness. The designer chose the material of the glass brick facade, which created a wide field of vision and penetrability like artwork.
记忆的触发点往往在不经意的细节中,堆叠的瓦片使人浮想烟雨朦胧中的江南传统民居。颇有数字艺术质感的树脂亚克力,其构成随光线而变化,从而调动人情感萌发。
The trigger point of memory is often in the inadvertent details. The stacked tiles make people think of the traditional Jiangnan traditional houses in the misty rain. The resin acrylic,which has a quite digital art texture, changes its composition with the light,thus mobilizing the emotions of people.
水的通透与反射,感性与理性的交织,寓物以形,注释空间的艺术语境,以及设计的在地性思考。
The transparency and reflection of water, the interweaving of sensibility and rationality, the form of objects, the artistic context of the annotated space, and the local thinking of design.
潮 | Transparent
连续空间、亮度、透明度,创造出微妙的合成。
Existence and boundaries gradually disappear.
景与物,因与人的互动而和谐生姿。钱塘潮起时,一方的精神气质也因之振奋。水天一色的奇景,在设计中转换为磨砂玻璃的半透明肌理,唤起空间的声响。
Scenery and objects are harmoniously created by interaction with people. When the Qiantang tide rose,one sides spiritual temperament was also inspired by it. The wonders of the sky and water are transformed into the translucent texture of frosted glass in the design, evoking the sound of space.
建筑上方因想象而搅动的艺术空气,兼具商业的功能性探索,从而激活参观者的沉浸式的互动体验。
The artistic atmosphere stirred up by the imagination above the building combines the functional exploration of business, thereby activating the immersive interactive experience of the visitors.
渔 | Fishing
Kite flew to the sky, Yu Yuyuan.
阳光穿过透明的建筑立面,形成微妙的光影效果。因而在室内空间中,设计一改原本直白布局,从而令空间兼备探索性与戏剧性。
Sunlight passes through the transparent building facade, creating a subtle light and shadow effect.Therefore, in the interior space, the design changes the original straightforward layout, so that the space is both exploratory and dramatic.
旋转楼梯的加入予建筑以灵魂,因而在平铺直叙中增添了韵律,呈现出一个有深度的空间。
The addition of the spiralstaircase gives the building a soul, so it adds rhythm to the tiled and straight narration and psents a deep space.
锚与磐石,在中庭塑造艺术化的体验,成为室内最引人入胜的风景。体块分割的空间,塑造游园般的空间体验,参观者因而在灵活的布局中,体验传统园林起、承、转、合的叙事方式。
The anchor and the rock shape the artistic experience in the atrium and become the most fascinating landscape in the room. The space divided by the masses creates a garden-like spaceexperience, so the visitors can experience the narrative ways of traditional gardens starting, inheriting, transferring and combining in a flexible layout.
水心如镜面,千里无纤豪。
The water heart is like a mirror, and there is no slender man in a thousand miles.
狭长的通道最易演绎空间的起伏,从而产生美妙的节奏韵律。本是难以处理的比例,设计师却在此,用蓝色镜面艺术装置,创造出鲜明的肌理,让参观者徜徉其中,惊喜并思索。
The narrow and long passages are the easiest to interpt the ups and downs of the space, thus producing awonderful rhythm. This is an unmanageable proportion, but the designer is here,using a blue mirror art installation to create a distinct texture, allowing visitors to wander, surprise and think.
水 | Fishing
结构、材质、声音与空气,细腻地共处于空间韵律中。
Structure, material, sound and air are delicately in the rhythm of space.
步入洽谈区,设计对“水”的抽象表达为更柔和的色调。水的蓝色印象,在光波振动下,是水蓝、湖蓝、水绿与灰色的的微妙结合。
Stepping into the negotiation area, the abstract expssion of water is designed as a softertone. The blue impssion of water is a subtle combination of water blue, lake blue, water green and gray under the vibration of light waves.
水吧台以造型大理石的虚实对比,环抱内侧洽谈区,光泽感艺术坐具错落摆放,亦实用,亦可赏玩。枝型吊灯在不同角度呈现相异的造型,正回应了整个空间想要塑造的流动性。
The water bar counter is surrounded by the virtual and real shapes of marble, and surrounds the inner negotiation area. The glossy artistic seats are placed in a staggered manner,which is also practical and enjoyable. The chandelier psents different shapes at different angles, responding to the fluidity that the entire space wants to shape.
无论形、色、神,室内的一切均可还原为自然所具有的宁静感。声、味以及触感,在五感的设计手法中,见之于每个可体悟的细节之中。
Regardless of form, color, and spirit, everything in the room can be restored to the tranquility of nature.Sound, taste and touch, in the design of the five senses, are seen in every understandable detail.
质感的装饰、低调点缀的色彩,细腻造型的原木,几何艺术造型的摆件,光影与原生材料的完美融合,精心定制极具品味的饰品,融入自然的空间里,流露出得体的现代气质,从视觉、听觉、嗅觉、触觉,全方位打造一场颇具现代意义的沉浸式的体验。
Textured decoration, low-key embellishment of colors, delicately shaped logs, geometric art ornaments, the perfect fusion of light and shadow and original materials, carefully customized highly tasteful jewelry, integrated into the natural space, revealing a decent modern temperament, from Vision, hearing, smell, and touch create an immersive experience of modern significance in all directions.
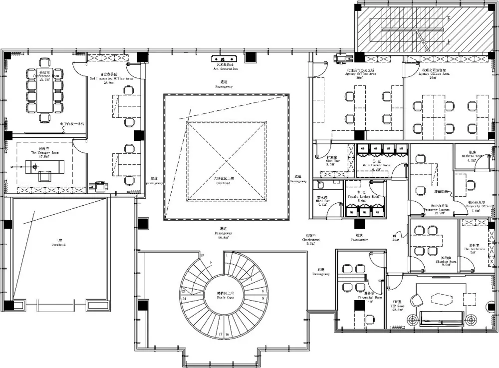
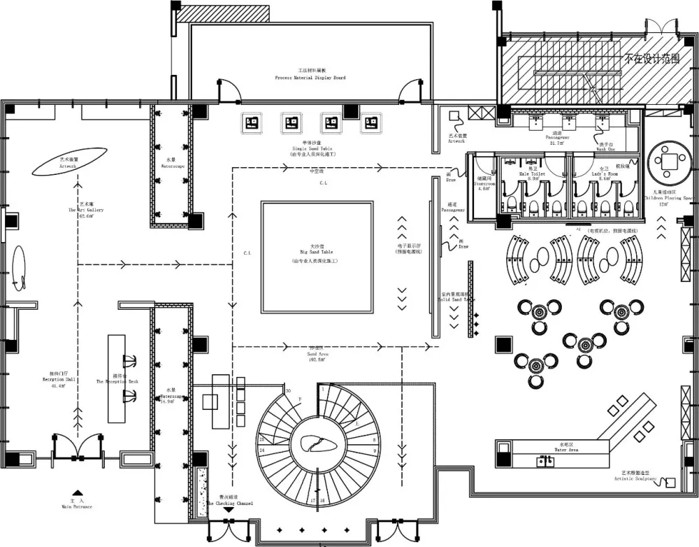
图 | Floor plan
项目信息 项目名称:杭州中旅归锦府售楼处 Project Name : Hangzhou CTS Guijinfu Sales Office 项目地址:浙江杭州 Project address : Hangzhou, Zhejiang 开发商:港中旅地产 Developer : CTS Real Estate 项目面积:1120㎡ Project Name : 1120㎡ 全案设计:树美(深圳)设计有限公司 Full case design : SUMAY (Shenzhen) Design Co., Ltd. 设计团队:Stone徐磊、Leo宫城、Zoe郑颖、Kiki丁珂 Full case design : Stone, Leo , Zoe , Kiki 完工时间:2020年04月17日 Completion time : April 17, 2020 项目摄影:陈铭 Project Photography : Chen Ming

