生活中不是缺少美,而是缺少发现美的眼睛。 ——罗丹
空间的属性一直在伴随着时代而变化。在古代,一个空间存在的意义就是储物、居住、遮风挡雨。到了商业社会,出现了用于居住的公寓楼、用于购物的 ShoppingMall,还有作为销售载体的售楼中心。
以往人们看到的售楼处总是充满了浓浓的营销氛围,没人会在意它的空间组成或功能。
此次,羽果设计偏要打破常规,以“社区营造”为切入点,将儿童教育、医疗养生、活动空间和服务配套 4 类生活场景融入售楼中心,
藉由对空间的重新定义打造出浓缩品牌运营理念的全新概念销售中心。
将建筑内部空间想象成为一个漂浮的盒子,在盒子里融入不同的功能使它成为一个完整的新型社区,
聚集其中,享受现代生活的美好,探讨
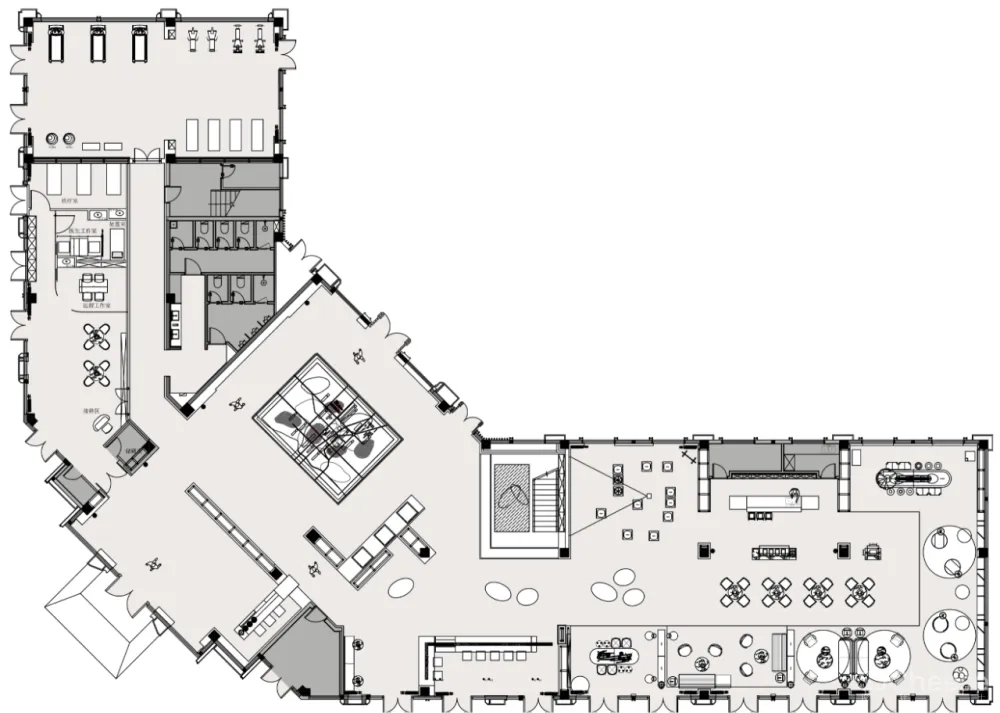
售楼处位于四川仁寿,面积为 1100㎡,以
自然艺术为灵感的来源,为
空间中注入极富魅力的自然风采。
大厅一道隔断切分空间,矩形切口露出部分沙盘,引导视线向内探寻。
墙上的花艺装置,以莫奈的“睡莲”为设计灵感,以绿色为主色调,创造一种无边界的色彩美感。
整个空间内除了常规的前厅、接待区、洽谈区、沙盘区之外,还增添了水吧、儿童区和影音互动区以及医疗养生几大模块。
沙盘区位于整个空间中心,将售楼中心划分为左右两个对称空间。巨大灯饰以自然界中的植物叶子为灵感,纯白的“艺术之叶”漂浮在沙盘区上空,引导视线的同时,唤起来访者对自然的纯粹感受。
右边是本案最具特色的多功能开放大厅,迎面一座巨大的景观楼梯,透明扶手和米色石材弱化了结构的体积感。
底部基座摆放以“共生形态”为主题的艺术装置,将“城市复杂几何元素”和“自然生态”结合,打造城市的记忆点。
往里移步来到深度洽谈区,这里集轻奢、童趣、自然的氛围为一体。在空间区域关系上,儿童手工区和艺术廊道相连。空间划分的最大特点是消除了洽谈区与儿童区之间的隔阂,保证视野的通透,让家长可以随时关注孩子的情况。
洽谈区的座椅在空间中组合在一起时,自成一幅安静温柔的莫兰迪色系画作。身处空间中的人们,可以在质朴温和的色彩环境中,放下都市生活的疲惫与压抑,感受片刻的美好。
现代生活中咖啡已经不单单作为饮品而存在了。在某种意义上来说,咖啡文化是现代都市文化的组成部分。
因此,洽谈区对面的水吧区就以咖啡为主题。整体色调为咖色。整洁干净的吧台环境,大理石、钢铁材质的使用打造出现代感。
儿童需要一个空间,不仅可以让他接近自然,还能让他锻炼动手的能力。同时,环境和家具的安全系数也很重要。
儿童手工台选用原木色的长桌,桌角圆形的处理方式,保证了儿童在互动过程中的安全。墙上不同色系绿色的铅笔艺术装置吸引了孩子的好奇心,看到这么多的铅笔,孩子的整个心都在雀跃。
戴着眼镜和耳机的艺术装置有着现代生活里孩子的模样。
手工长桌上的精致小摆件,对孩子是一种巨大的吸引。一些手工的小物件,让孩子在动手的同时受到美学的熏陶。
尽头是影音互动区,它的功能类似影院和艺术交流区,以影音为媒介,打造互动交流的公共艺术空间。空间整体氛围十分温柔惬意,挂画、艺术装置、艺术家具为空间赋予了独特艺术感。
同样的,在以互动为主的本区域内,依旧不乏植物元素和雅致的颜色铺陈。
选用温柔的原木,柔软的皮质及针织材质,予人舒适体验。透过落地窗射进来的阳光,让每个瞬间都充满自然的味道。
影音区侧面的隔间,布置成了自然植物元素丰富的花艺手工区,墙上的亚克力透明盒子内封存自然界内不同种类的植物标本,清新的绿色和接待前厅的花艺有着异曲同工之妙。
花艺是花朵摇身一变的手工艺术。首先,成为一个花艺师就要热爱每一片树叶,每一朵花,每一株草。唯有感悟自然之美,才能创造出美丽的花艺作品。
可以停留、休息和阅读的公共空间是现代生活不可缺少的重要部分。一个良好的读书区域,不仅要有丰富的书籍,还要有舒适的座椅,良好的光线条件,但更为重要的是,是能有个在阅读后进行精神交流的书友。
路演区满足了学习、演讲、商业品牌宣传的需求。木质的可移动矩形椅子,更能适应现场路演的情况。
羽果设计打破传统售楼处固有的设计思维,不仅在各个细节都彰显匠心,而且创造性地拓展空间属性,让这种新型社区模式的售楼处更能吸引人群的到来。
项目名称:理想城 4 X 社区运营体验中心
甲方信息:恒邦双林集团
甲方团队:王飞、牛兴涛、李发良、贾淞
项目面积:1100平米
项目地址:四川省仁寿县
软装设计:IF DESIGN羽果设计
硬装设计:KOYI DESIGN
IF DESIGN 羽果设计
Aesthetics / Life / Freshmen
联合创始人·创意总监:张 羽
联合创始人·设计总监:卢尚锋
合伙人·硬装设计总监:张殿臣
IF.DESIGN 羽果设计一贯坚持“美学/生活/新生”的概念。
不断跨越边界,保持设计的前瞻性与创新性。
尊重客户特质及文化多样性,
为美好生活注入永不满足的进取力量。

