是由日本设计师 Masaaki Higashi
和巴西艺术家 Esther Mir
创建的设计公司,位于巴塞罗那
他们的项目主张东西方文化之间的平衡对话
▲Masaaki Higashi – Esther Mir ©Carles Roig
就应用了这一理念,将 1924 年的古老建筑
打造为既包容又开放的独特住宅
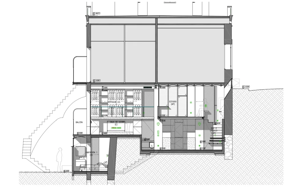
改造前,建筑内部状况极差
地下室和地面层的动线关系也非常混乱
设计团队重新对楼层关系进行梳理
改造为连接庭院的卧室套房
利用地面高度差创造明亮的挑空大厅
二三层是联通的跃层空间
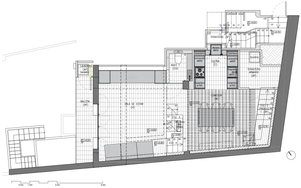
盥洗室与客厅在视觉上相互关联
空间中大量引入原木结构
同时赋予整个环境柔和温暖的气息
以及交错出现的饰面、收纳格
无不标志出结构之间的平滑过渡
从餐厅看过去,客厅光线充足
红砖地板之间的混凝土墙壁
这三种材质组合,构筑强烈视觉张力
拱形窗框标志着建筑的历史痕迹
和偏日系的原木摆在一起
形成不同设计语汇之间的沟通、融合
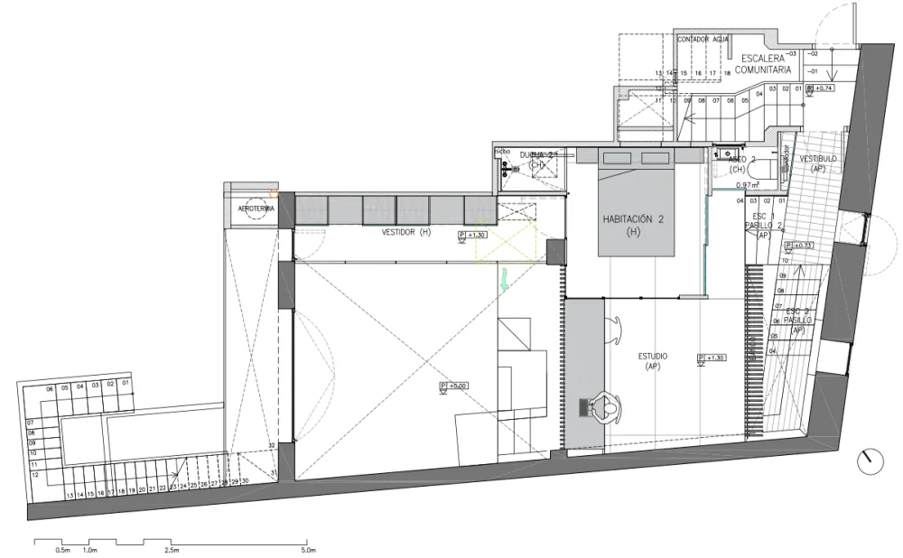
设计师将位于最上层的阁楼
打造为功能混合的卧室、办公区
透明玻璃隔断切分功能区
镂空的隔板与起伏连绵的天花形成呼应
每个角落都能享受到充足采光
与餐厅之间有一道狭窄通道相连
窗户特意设在较高的位置
拱形门自然而然地切分出功能区
滑动门做分割,开放式台盆
自然又低调的气质呼之欲出

