在中国浙江南部有一座小县城叫龙游,处在平原与山林的交界,从杭州出发坐高铁一小时可抵达,距离高铁站驱车五公里的后山头自然村,该村仍然保持着乡村特有的风貌,大片的水田和不远处连绵起伏的山脉,俨然是一副熟悉的旧时乡村风景。
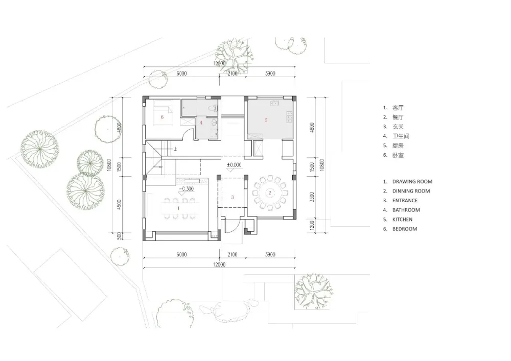
房子由一个一个12*10米的方块组成。前院可以眺望春意盎然的绿色,后院花香不断。一楼是餐厅,餐厅前院是7米宽的水泥地,做为室内活动的延伸。入口大门做为序幕,带连廊的通高序厅,通透不缺仪式感。
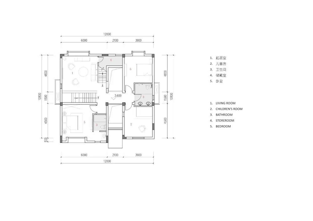
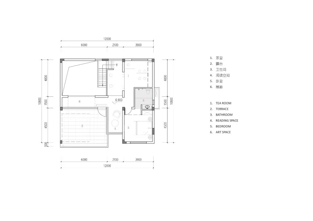
整个空间由—部魔方楼梯串联到一起,从一楼公共客餐厅,二楼立体家庭厅,三楼阳光茶室,后来到达半遮半透,适应天气变化而又兼顾屋顶检修的大露台。眺望远处的风景,室外的风景随着空间的移动而有不一样的风景,每一处都不落下。五个卧室被合理的分配在主线周围。
这样子的一栋房子在外面看很普通,但其实是内在丰富,外表朴实。诠释了江南乡村建筑对色彩素雅的喜爱。在节约造价的同时,也确保能耗超小化。双坡顶下接近黄金分割比例,适当设置部分老虎窗,天窗,丰富立面表情的同时改善了北向房间的采光。
首先入口映入眼帘的就是垂直到顶的玻璃幕墙,它做为立面的主轴,搭配各功能空间大小不同的窗户组合, 构成了建筑的几何美感。屋顶在混凝土屋面和传统木屋架大挑檐相融合,之间即留有空气流通层,木屋架又丰富了建筑细节,保温与美观结合。当地石材的基座和外墙掺入稻草的质感涂料表达了浓浓的乡村特色。
对于乡村的建筑一般都是田园风格,基地充足,空间较大,还要减少建筑周边虫子,便于打理,晾晒和各种活动等等。对于建筑的内部空间通透,便于交流。
露台与阅读空间 ©施峥
屋顶大屋檐的天窗,让阳光照射的更充足,增进与大自然的接触。如今大家的生活方式都有了很大的改变,大家都想要一个诗意般的家和现代生活想融合。将儿时熟悉的风景和当代生活相融合的一个全新的家。
建筑面积:400㎡ 用地面积:800㎡ 造价:95万 摄影师:施峥

