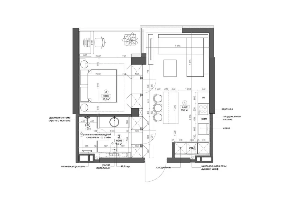
44㎡正方形的一居室,以深浅色对比表现出空间层次感,经过设计巧妙的布局,非常完美的拥有了一个明亮的玄关,一个舒适的卫生间,一个带着餐桌的完美厨房,一个卧室,以及一个客厅。
从平面布局可以看到,整个房子私人区(卧室和卫生间)位于左侧,而公共区(厨房、餐厅和客厅)位于右侧。
小客厅抛弃传统设计方法上的沙发、茶几和电视墙格局,转而使用两个懒人沙发和可移动电视架取代,为空间提供了多种可能。
主卧吊顶内嵌暖光灯带,和木格栅床头墙一起注入了无限的温馨感。
看起来一点也不小,面积大概5.3平方米,玻璃门隔开,干湿分离,简洁干爽
Veronika Mulieieva
Veronika Mulieieva乌克兰设计师,以极致的简约风格为基础,通过一些时尚的现代材质,及装饰细节来凸显质感,让平淡的空间显得更为精致,处处透露着不俗的品味。
APARTMENTS IN BUSOV HILL
这套扇形住宅设计,木色的地板搭配灰白色的墙,将空间的高级感展露无疑,时尚的布艺沙发搭配黑色大理石的茶几,在重量上达到一个平衡状态。
开放式的住宅,将客厅,餐厅、厨房都囊括其中。
大大的落地窗穿入的光线也就可以均匀的照入到每个功能区域内,其中吊灯非常抢眼,空间的色调一般舒适、安静,又不失大气。
厨房白色大理石厨房岛搭配木色墙面以及艺术灯特别的有质感且时尚。
餐厅是黑色与蓝的结合,增加了时尚之感。房子经常招待客人,所以设计师特别找到了一张六人桌。
入屋玄关,白色大理石的地板,几乎不使用过多的装饰,现代而简单的,才是最新的室内设计流行元素,光线与空间的结合形成一股典雅的韵味。
公卫以浅色为主,洗衣间也在这里。
主卧简约的现代风格,绿色的床很突出,但光线充足,凸显出室内的开阔感,空间软装搭配十分和谐,既有延展过渡,又有细节叠加,衬托出丰富多元的空间情感。
主卫白色粗糙的大理石,纹理丰富,木质的点缀,展现出空间美,远离都市喧嚣和家庭水疗护理放松的好地方。
儿童房空间,一个清爽舒适的儿童房搭配,能让我们从视觉到心灵感受到凉爽。
FAMILY APARTMENT IN KIEV
170m²家庭住宅,设计师以白色和木色为主的素雅装修,给人一种宁静舒适感!通过精致悦目的细节,使空间结构明确、外观明快简洁,活泼不缺矜持,洁净不显清凉,既有现代生活的简约实用,又富有温馨的生活气息。

