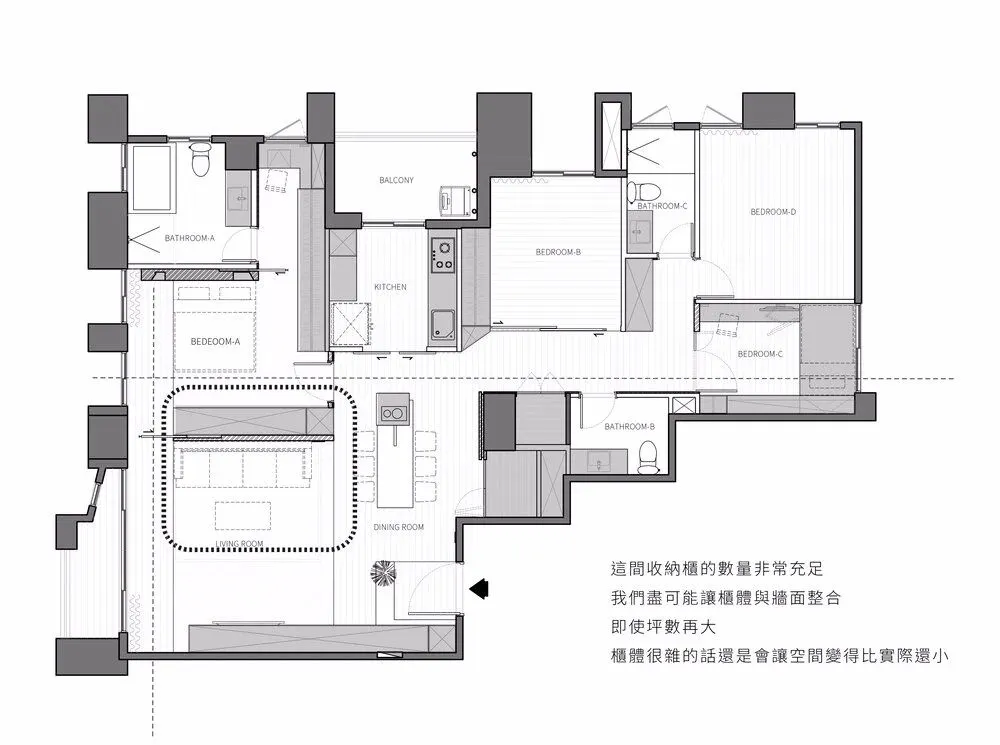
本案位于台中,面积约为的140平米,居住成员成员为一家三口,是一对很热情的夫妻,喜欢邀请三五好友来家里,所以希望有一个很大的客厅跟餐厅可以玩耍。
原始建筑平面本来就没那么方正(走道很多),设计师希望能够让走道感觉弱化一些,所以拆掉局部墙面,让走道宽一些也明亮一点,把主卧跟客厅餐厅用局部穿透连结。
用地板把客厅和主卧形成一个区块,窗边让出一个光廊用拉门分隔,室内走道把两间房间改成拉门,平常走道就不会觉得压迫,虽然布局不方正,但客厅经过整理布局后就变很完整了。
这间房屋的收纳空间非常充足,设计师尽可能的让柜体与墙面整合,即
数再大,柜体很杂的话还是会让空间显得比实际小。
入口换鞋椅与玄关柜整合,这样平米数以上的空间,柜子,墙,天花,桌子,灯具,每个线条比例,也都必须要抓的很精准才会美。
客厅用地板的厚度切割两个空间,整面电视柜利用上下的脱开感觉比较没那么压迫,不同灯光变化不同的感觉;
沙发背墙因为拉门形成回字型动线。
原始不方正布局一定会有过道产生,唯一能做的就是弱化走道感,用拉门让光线进来
屋内原始梁很低,所以用木皮折板修饰,从地板材料延伸到天花,让主卧跟客厅的隔间墙不到顶,打造一种墙板脱开的穿透感,窗边光廊动线留出,形成回字形动线。
收梁形成的天花木皮折板,是虫点子工作室常用的设计手法,在空间上让视觉上忽略了体积的大梁,是很加分的设计;天花板使用灰泥涂料,创造一种粗旷感,也很像天空的云彩。
岛台与餐厅相连,使原本局促的过道区域打造成超大餐厅,回字形的动线设计更加流畅。
这个角度看向客厅,折板变成一个框景,从而很干净的悬浮量体,加上顶面的云彩感涂料就感觉有很多种层次。
洞洞墙旁的隐藏门为储藏空间,大平米数还是需要一个储藏室放杂物。
天花木皮造型卧室,主卧刻意拉低墙面,上面用玻璃分隔,这样就会有一种内外穿透的视觉感,床头板设计了一些内凹,将衣柜跟墙面结合,产生不同层次的错落感。
更衣室拉门与穿衣镜整合,侧边收铁件把手;
化妆桌的部分在最角落靠窗位置,床后方的主浴则形成一个木头盒子的概念。
儿童房房天花板也刻意让梁露出,用斜板造型修饰形成光带。
另一个小房间,也是简单做个卧榻可以当临时房间使用,首次让卧榻用系统柜的方式做,效果也非常好。

