极唱声乐——声乐培训中心,在挖掘和培养在音乐方面的天赋和潜能,提高综合艺术修养。
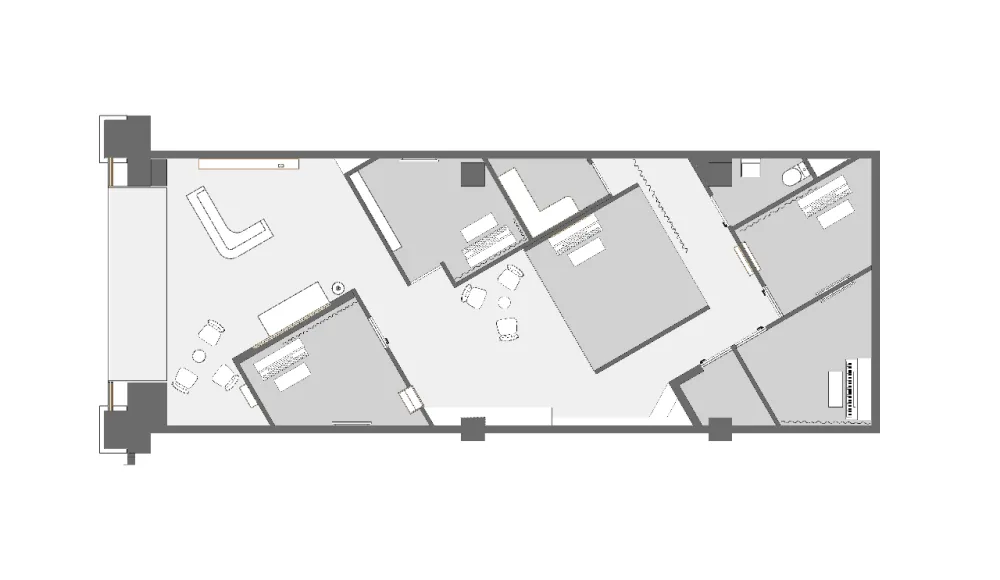
主要空间为公共休息区、教室、小舞台和工作区。
每间教室和走廊的镜面,这种“观赏”,自然地促进学员的学习动力与表演热情,让这个过程变得生动、有趣。环境中的“形象符号”也变得更有提示性的作用,这个符号时刻提示着人们身处于艺术创作与训练的氛围中,气氛安静而优雅。
这次设计,我们不谈网红打卡,不谈IP流量,我们回归于空间本体,利用好每一面墙体,安顿好每一束灯光,设计原则是去繁就简,为教育空间类型提供一次冷静的思考。
形式追随功能,不同人群的行为,决定了最终的形式,空间的转折
利用好每一面墙体,不同功能和表情,前台背景墙的小装置,可陈列奖杯,充满蓬勃活力与崇尚自然地气息,人与物之间的互动,让空格有了温度。
通过空间设计,突破固化得结构限制,实现开放、自由、灵活的现代教学环境,并让学员与空间产生亲密感,中间的小舞台好似一座半通透的小房子,根据使用需求呈现出多样的尺度与质感空间,让学员在亲切、舒适的环境中学习和表演。
音乐教室在同时满足隔音和吸音的声学要求。
极简的室内设计可以满足不同年龄的学员视觉感受。
在色彩选择上,我们以白色和原木色为主要基调,而作为辅助色的紫色,则增加了空间的趣味元素。
空间的核心区域为教室,每一件教室一侧配有整墙面的镜子,促进学员在学习声乐的过程中时刻注意自己的仪态,并搭配天鹅绒质地窗帘,增加空间色彩丰富性的的同时,起到吸音、隔音的作用,利于声音在空间内的反射。
走廊墙面为镜面,材料的反射可以增加空间的进深感,以提升体验的趣味,挖掘和培养在声乐方面的天赋和潜能,提高综合艺术的修养。
项目名称 | 极唱声乐 声乐教育培训机构
设计方 | 言昱室内设计有限公司
设计时间:2019年10月
完成时间:2020年1月
主创及设计团队 | 王言、任虹霏
项目地址 | 云南省昆明市同德广场
建筑面积 | 125平方米
摄影版权 | 形在建筑空间摄影
2018年与王言联合创立言昱室内设计有限公司
作为一名室内设计师,工作表现出一定的魔鬼般的呵护能量,同时始终以严格的比例,形式,颜色和纹理规划为基础,对旅行,建筑,设计和艺术充满好奇。对我们而言,开放的心态非常重要,要在办公环境之外进行体验,辩论想法的价值,并在心理上将我们所看到的东西归档下来,无论项目规模多大,我们总是从一个重要的基础构想开始,该构想告知物质,轻巧,舒适,质感并尽早为参与该项目的每个人设置过滤器。
我们的专长在于找到平衡点,视觉物质呈现出触觉特质、细节和耐用性,创造出能够感染人心的空间与氛围,充分自由的表达对空间独特的美学见解和品质细节的追求,也为了可以不断开拓创新材质以及空间发展规划的可能性与突破性。
我们对每个项目的创意开发投入时间,以及我们在整个过程中保持适应的能力,以确保对每个项目的需求产生共鸣的结果。我们高度重视人与人之间的联系和文化影响,以创造独特,引人入胜的功能性环境,为他们的地理位置做出积极的贡献,并丰富经历他们的感觉和栖息地。
确保为所有项目注入独特性,与所有参与者的紧密合作使卓越设计至为重要。具有实用,明智的分辨率的功能独创性一直是我们关注的焦点,信念设计应该行之有效,并且永远是美丽的。专注于设计的持久性,强大的性能和增值结果,这覆盖了言昱在交付方面的严格要求。

