这个住宅位于乌克兰基辅
由 Paloychuk Olga 设计
呈现出不同寻常的极简美学
▲Paloychuk Olga
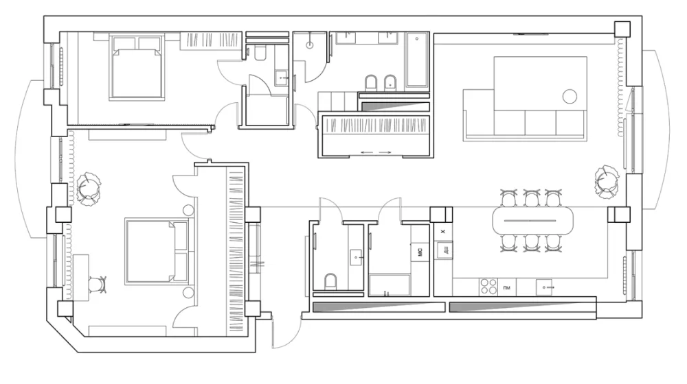
根据客户需求和生活习惯
设计师重新规划了室内格局
室内玄关的设计简约清新
原本沉闷的走廊在镜面的装饰下
顶部的球形灯在尽头的镜面中得到连续
遵循简洁美观的主要原则
这个住宅位于乌克兰基辅
由 Paloychuk Olga 设计
呈现出不同寻常的极简美学
▲Paloychuk Olga
根据客户需求和生活习惯
设计师重新规划了室内格局
室内玄关的设计简约清新
原本沉闷的走廊在镜面的装饰下
顶部的球形灯在尽头的镜面中得到连续
遵循简洁美观的主要原则
之前
