可旋转玻璃门© André Mortatti / Marcos Caldo
该项目旨在为圣保罗中心城区的公寓空间增添几分住宅的温馨,同时也保持与自然的联系。于是,团队保留了建材的自然纹理,增强了室内采光,并将空间基调定为与花园中的绿意形成对比的浅色系。
▼项目概览 © André Mortatti / Marcos Caldo
该项目就像是一次日本建筑元素的运用实验:轻巧的结构、对原材料及其自然纹理的使用,以及围绕tsuboniwa和shakkei两个概念打造的景观。Tsuboniwa是8世纪以来日本建筑中一种常见的元素,随着时间的推移而逐渐现代化。它可以被理解为一个设置在封闭建筑中的庭院花园。在本项目中,这一元素被应用在公寓的社交区域,充当客厅、餐厅与厨房之间的视觉联系。
▼客厅区域 © André Mortatti / Marcos Caldo
▼从玄关看向种满绿植的阳台 © André Mortatti / Marcos Caldo
当项目使用背景元素来丰富建筑和景观时,Shakkei便可以理解为“借来的风景”。在阳台上,住户可以看见来自户外的凤凰木树梢。于是项目团队便将此景作为设计理念,打造出一座贯穿整个阳台的花园。这片位于圣保罗闹市区公寓内的广阔绿地,为室内外空间构建了独特的联系。
▼花园阳台 © André Mortatti / Marcos Caldo
随着公寓的改造,社交区域成为了居民的大型生活空间。厨房、餐厅、客厅和电视都与公寓的花园直接相连。必要时,厨房还可以通过旋转玻璃门与其他环境隔开。而玻璃门在允许光线通过的同时,也挡住了房间内的视线。
▼餐厅与厨房 © André Mortatti / Marcos Caldo
▼可旋转玻璃门将厨房与其他环境隔开© André Mortatti / Marcos Caldo
▼厨房内部 © André Mortatti / Marcos Caldo
在社交区域,团队选用的美国橡木地板与Paricá的天然细木作相协调。立面的原始墙壁被剥离并涂成白色,让环境更显质朴。景观的绿色和装饰自带的色彩点亮了整个空间。除了整个公寓的木工设计,团队还打造了沙发和餐桌等家具。沙发既充当了环境整合和连接的中心,也为住户的放松、交谈和社交提供了多方面的支持。带日式细木工结构配件的桌子,设计简单而轻巧,能适应各种类型的环境。
▼沙发 © André Mortatti / Marcos Caldo
▼从餐厅看向沙发所在的客厅 © André Mortatti / Marcos Caldo
▼餐厅细部 © André Mortatti / Marcos Caldo
▼书房 © André Mortatti / Marcos Caldo
▼浴室,bathroom © André Mortatti / Marcos Caldo
▼设计草图 © Passos Arquitetura
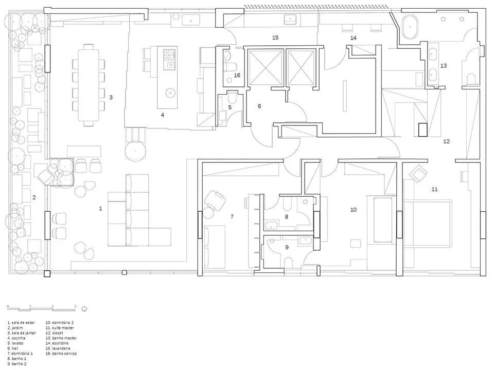
▼平面图 © Passos Arquitetura

