 
 
本案位于乌克兰基辅,项目面积156平方米,整体风格简约,使用多种饱和度较低的色彩,呈现这个不同寻常的极简美学之家。
 
 
本案设计师:Paloychuk Olga
Paloychuk Olga是基辅Paliychuk Olga Design工作室的设计师和创始人。他们的宗旨是
在设计中,创造尽可能最实用的人体工程学空间,
重视内部设计和线条和比例的纯度,
不应用多余的装饰堆满,保持空间的本质。
 
 
 
 
根据客户需求和生活习惯的深入研究,转化为独特的内饰风格和空间配置。
遵循简洁美观主要原则,没有不必要的
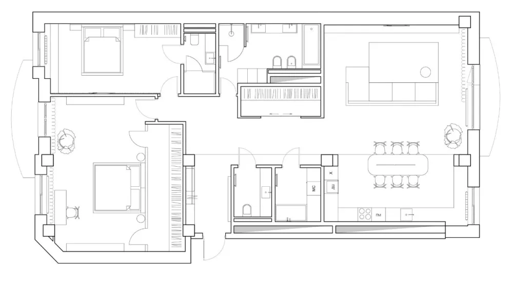
细节。原始户型由设计师打造成为一个拥有双衣帽间,多个功能区的开敞式大空间。
 
 
餐厨一体的设计使空间非常开阔,定制橱柜大面积使用黑色,墙面使用咖色条形砖,深浅色对比,现代感直入人心。
 
 
 
 
 
 
 
 
 
 
造型简单的餐桌椅位于空间的中央区域,也是厨房也客厅的区分。
 
 
 
 
 
 
客厅的金色边几,质感十足,搭配一抹绿意,使空间充满了活力。
 
 
玄关的设计简约清新,没有复杂的装饰,长条形换鞋凳,顶部的挂杆,设计虽简单,但十分贴心。
 
 
 
 
 
 
过道顶部的球形灯在尽头的镜面中得到连续,空间有了延伸感。极简的精髓,不舍弃装饰,只精选最合适的装饰,在这就是最好的诠释。
 
 
 
 
 
 
设计师在这个空间运用了镜面设计,在走廊里三处位置都有体现,原本沉闷的走廊在镜面的装饰下灵动起来。
 
 
 
 
 
 
卧室床头整面护墙板,墙上隐藏了两扇门,与地板颜色十分相近,减少了空间色彩繁杂的反差,让深色布艺在这空间里显得更加和谐。
 
 
角落里休闲区与梳妆台相连,墙面的壁灯设计感十足。
 
 
 
 
 
 
卫生间采用了深红色墙砖,半墙的深红搭配半墙的深灰,空间热情与沉静并存。
 
 
 
 
淡粉色地砖与白色大理石砖搭配,简洁清新。深灰色哑光材质柜体极致简约。
 
 
浅咖色墙砖与深灰色地砖搭配,极致经典。圆形镜面与台上盆的设计简洁美观,没有不必要的装饰。


