 
 
房地产经纪人及设计师Cheryl Eisen的独特概念源自对于买方决策的驱动力的独特理解。Eisen通过创造室内设计,公共关系,市场营销和活动策划的独特混合,重新塑造了传统豪宅的独特风格。她创立的公司Interior Marketing专门研究世界上最令人垂涎的豪宅与酒店,装饰和原始艺术赋予了他们独特的能力。
 
 
 
 
 
 
 
 
 
 
 
 
 
 
 
 
 
 
 
 
 
 
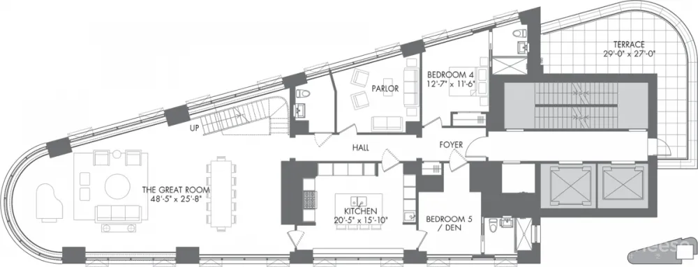
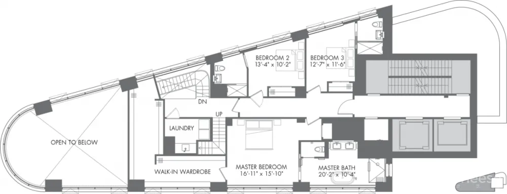
伍尔沃斯大厦的40A住宅是真正的独一无二的,6095平方英尺,横跨整个40层,在所有的方向上都可以看到不同寻常的景致。
 
 
 
 
 
 
在市政厅公园历史和世界级建筑上方516英尺高的地方,有高达14.5英尺的天花,巨大的拱形窗户被多色的陶瓦包围着,还有一个令人叹为观止的三重曝光的75英尺高的房间,有灵活的娱乐区域和丰富的墙壁空间给这位著名的艺术收藏爱好者。
 
 
 
 
通过一个私人的电梯平台,这个庄严的设计提供了公共和私人房间的完美隔离,提供了4间卧室和套房的浴室,整洁地分隔了娱乐室,包括一个正式的餐厅,大房间,和两个化妆间。
 
 
 
 
 
 
 
 
 
 
 
 
传统的伟大工艺继续与坚实的橡木人字形地板贯穿始终。一个阳光的厨房有定制的Dada橱柜,Calacatta Caldia大理石台面和集成的Miele设备。一个宽敞的、带有开放的城市和河流景观的宽敞的主卧套间,有一个巨大的步入式更衣室和一个主浴室,里面有超大的淋浴、浴缸、双洗手盆以及Calacatta Caldia辐射热地板。
 
 
 
 
房地产经纪人及设计师Cheryl Eisen的独特概念源自对于买方决策的驱动力的独特理解。Eisen通过创造室内设计,公共关系,市场营销和活动策划的独特混合,重新塑造了传统豪宅的独特风格。她创立的公司Interior Marketing专门研究世界上最令人垂涎的豪宅与酒店,装饰和原始艺术赋予了他们独特的能力。
 
 
 
 
 
 
 
 
 
 
 
 
 
 
 
 
 
 
 
 
 
 
 
 
 
 
 
 
 
 
 
 
 
 
 
 
 
 
 
 
 
 
 
 
 
 
房地产经纪人及设计师Cheryl Eisen的独特概念源自对于买方决策的驱动力的独特理解。Eisen通过创造室内设计,公共关系,市场营销和活动策划的独特混合,重新塑造了传统豪宅的独特风格。她创立的公司Interior Marketing专门研究世界上最令人垂涎的豪宅与酒店,装饰和原始艺术赋予了他们独特的能力。
 
 
 
 
 
 
 
 
 
 
 
 
 
 
 
 
 
 
 
 
 
 
 
 
 
 
 
 
 
 
 
 
 
 
 
 
 
 
 
 
 
 
 
 
 
 
 
 
 
 
 
 
 
 
 
 
房地产经纪人及设计师Cheryl Eisen的独特概念源自对于买方决策的驱动力的独特理解。Eisen通过创造室内设计,公共关系,市场营销和活动策划的独特混合,重新塑造了传统豪宅的独特风格。她创立的公司Interior Marketing专门研究世界上最令人垂涎的豪宅与酒店,装饰和原始艺术赋予了他们独特的能力。
 
 
 
 
 
 
 
 
 
 
 
 
 
 
 
 
 
 
 
 
 
 
 
 
 
 
 
 
 
 
 
 
 
 
 
 
房地产经纪人及设计师Cheryl Eisen的独特概念源自对于买方决策的驱动力的独特理解。Eisen通过创造室内设计,公共关系,市场营销和活动策划的独特混合,重新塑造了传统豪宅的独特风格。她创立的公司Interior Marketing专门研究世界上最令人垂涎的豪宅与酒店,装饰和原始艺术赋予了他们独特的能力。
 
 
 
 
 
 
 
 
 
 
 
 
 
 
 
 
 
 
Interior Marketing集团是美国最大,全方位服务的豪华室内设计和营销公司。主要是从事豪华和高端住宅房地产样板房设计然后出售。十多年来,他们的策划设计已经引起了顶级经纪人,房地产开发商和名人的关注。 由房地产经纪人及设计师Cheryl Eisen于2007年创立,Interior Marketing的独特概念源自对于买方决策的驱动力的独特理解。Eisen通过创造室内设计,公共关系,市场营销和活动策划的独特混合,重新塑造了传统豪宅的独特风格。 Interior Marketing广泛的豪华家具,装饰和原始艺术赋予了他们独特的能力,在12天内安装和改造任何规模的房屋。专门研究世界上最令人垂涎的酒店。 Interior Marketing还提供Turn-Key家具租赁服务,为长期租赁和永久居住提供相同的加急豪华内饰。全包式礼宾式出租服务满足贵宾的需求,而高端室内设计服务为客户带来了现代化的奢华,没有传统公司的长期交货期和过多的价格标签。


