 
 
| 张扬 个性 大胆 仙境 |
| 你会用什么词汇形容这间300m² |
 
 
 
 
 
 
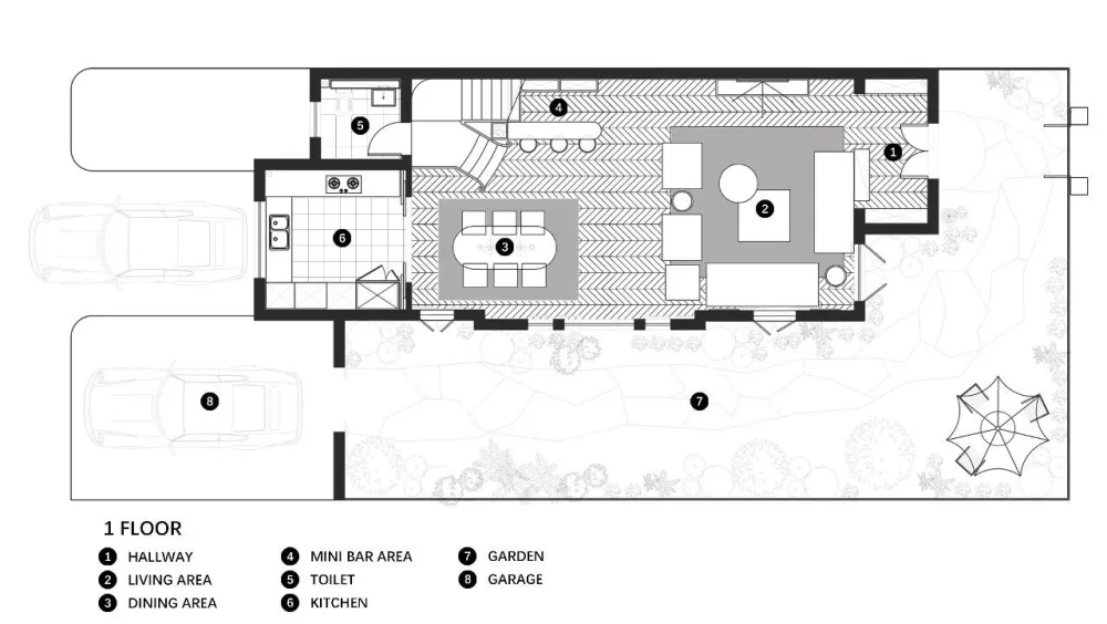
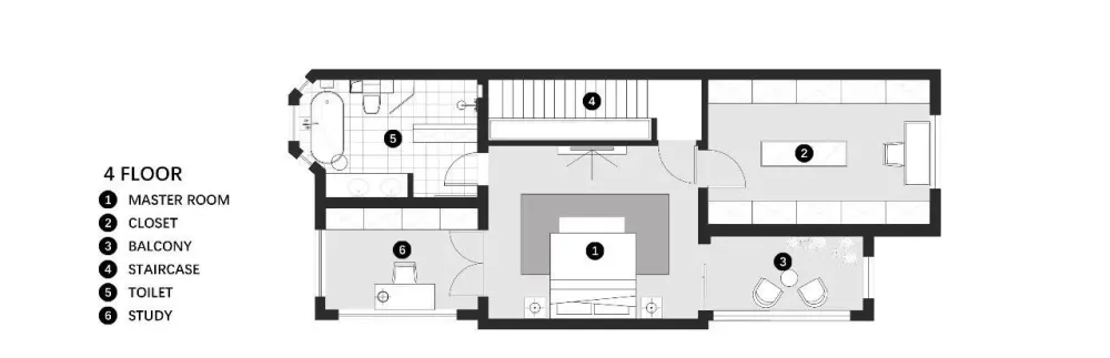
▲二层与三层平面布置图
 
 
1、作为老人房的二楼,大大的晾晒空间是屋主妈妈强烈要求的,接近14m²的洗衣房更是实用;
2、三楼两个儿童房,中间开放空间是两个小宝贝公共玩耍区域,在左边墙面涂了一面黑板漆,一整面墙的收纳格,玩完的玩具能装进收纳筐归位;
3、四楼一整层都属于主卧,属于女主的超大衣帽间,属于男主的独立书房,主卫设计了双台盆,可供两个人早上同时使用的主卫生间,当然在这层楼也保留了一个小阳台,无论是喝茶还是晒太阳都很舒服。
 
 
一进门给人一种眼前一亮的感觉,
玄关采用的全封闭式满墙储藏柜,
一整面的酒红色超大鞋柜,
新颖独特,算是了解整屋个性的第一眼,
大部分的鞋子都在进门的储物柜里,
旁边的玄关柜可以放一些常穿的鞋子,
同时也起到了装饰分区作用,
 
 
 
 
平时进出门换衣、换鞋、放随身物品,
一个玄关柜满足了屋主以上需求,
在玄关的位置设计师保留了原始挑空,
让光线更好的引入进来,
明亮舒适,无论出门还是归来都有好心情,
搭配现代感十足的吊灯也毫无违和感。
 
 
搭配一些法式的石膏造型,
红窗帘,绿门套,统统一块儿上阵,
独一无二的风格真是越看越爱,
把电视内嵌在壁炉中间,
带有简约线条的墨绿色壁炉,
高级又精致,再加上金色复古装饰画,
整个客厅的配色显得复古浪漫,
 
 
 
 
屋主家的大门也更换了,
所以玻璃门框和墨绿色壁炉之间,
听说屋主为它费了不少心思,
这样的木门夹玻璃我们在美剧里经常看到,
灰蓝色的大门配上墨绿色的门框,
有没有一点美剧既视感呢,
 
 
设计师特意将墙面护墙进行了分色处理,
薄荷绿和墨绿色深浅配衬,
让单一沉闷的墙面有了仪式感,
大面积的丝绒红窗帘是主色调,
小面积绿色沙发作为辅助色,
窗帘上点缀的小天使金色窗帘壁勾,
首尾呼应,营造满目复古风情,
 
 
 
 
餐厅采光极佳,大面玻璃门窗,
将室外光线和花园景色都“借”进来,
窗外的景色随四季而变,
大概就是最好的装饰画,
 
 
在餐厅的空间设计师留了一片粉色系,
足以满足屋主的少女心,
粉色吊灯和石膏灯盘搭配在一起,
充满趣味性又尽显浪漫风情,
北欧吊灯与法式元素的相互碰撞,
 
 
 
 
得益于客餐厅互通的敞开,
餐厅空间得到了有效的放大,
邻近MINI BAR空间的设计,
屋主即便在家里开十人Party,
 
 
 
 
餐厅与厨房自然过渡联通在一起,
担心开放式厨房可能会有油烟的问题,
所以加了极窄黑框玻璃门,
增加了整体空间通透感的同时也不失美观。
 
 
生活情调瞬间提升了一个level的区域,
一定属于家里的这个mini bar,
大胆配色简直精致爆棚,
紫色吧台,丝绒草绿吧台凳,
再和墨绿色楼梯石材配在一起,
竟然有种奇妙的化学反应,
小小一隅,从此也多了份戏剧感,
 
 
mini bar藏在楼梯下方,
虽然不大,但是五脏俱全,
吧台下方还藏有收纳柜,
精选的电热水壶和面包机,
和这个家的整体色调简直绝配,
给家里创造出这样的一个完美休闲区,
品品酒,聊聊天,谁能不爱!
 
 
三楼的开放玩耍区是属于两个小宝贝的,
在这个区域,设计了一面收纳墙,
将不常玩的玩具作为展示,
常玩的玩具都可以放在下面的收纳盒里,
这样每天他们在玩耍的时候,
也不会弄得很乱妨碍他人,
而且还能锻炼两个小宝贝的收纳技能,
 
 
 
 
每一层楼的墙面色彩都有所不同,
两个小宝贝这层楼以雾霾蓝作为整体基调,
这样的色调对于小朋友来说比较柔和。
 
 
儿童房只能用可爱清爽来形容,
由于这间房的空间比较大,
设计师考虑到宝贝可能会要住到成年过后,
所以为了同时实现居住储物学习等功能,
设计了一个独立抬高的衣帽间兼书房玩耍区域,
即使坐在房间都有单独交流和玩耍的空间,
 
 
 
 
黑白线条的儿童房很简约,
设计师铺贴了一圈树叶,
活力瞬间被提升了不少,
但久居于此又会感受到一种安静的力量,
 
 
 
 
儿童房省去了复杂的装饰,
只是在配色上大做文章,
设计师尽量让空间显得开敞,
让空间也能够随时间推移合理的成长起来。
 
 
 
 
从色彩跳跃的法式风走上楼,
会不会觉得来到了另一个国度?
仿佛一阵清新的度假风徐徐吹来,
主卧是套房设计,独占一层楼,
而且并没有因为空间大而忽略的精致,
估计会让看到这里的伙伴酸成柠檬精,
 
 
设计师将令人羡慕的层高,
也带来了不一样的空间视觉震撼效果,
抬眼低头间,与屋主购买的床相辅相成,
相互呼应增加主卧空间的艺术效果,
床头的雕花是屋主的心头好,
就连床头柜也默默配合,
 
 
 
 
装饰画、壁灯、床头吊灯、地毯等软装饰品搭配,
设计师都是根据屋主实际的需求喜好来选择,
增加卧室空间整体的视觉柔软度,
都可以组合出不同的风格倾向,
 
 
说的就是屋主的这间超大衣帽间了!
衣帽间这个承载屋主“江山”之地,
 
 
设计师将一整面墙都铺贴了镜子,
不仅让整个衣帽间空间视觉变大,
在衣帽间中间放置一个岛台,
下方的抽屉还可以放置了丝巾、领带,
这么多抽屉,收纳肯定是够了,
 
 
衣帽间所有柜体都安装了氛围灯光,
简直克制不住想冲进去剁手的欲望,
这大概就是把橱窗搬进自己家里的样子吧。
 
 
“安稳成熟”又带有“俏皮”气质,
是让人进来就想安安静静学习工作的地方,
窗上的百叶就是“光影的魔术师”,
阳光透过百叶窗映射进来,
坐在这发呆都是一种享受吧。
 
 
也是这套房子的亮点之一,
六边形转角墙体和经典的法式吊灯,
深棕色窗套腰线和灰色浴室柜,
都有着极强的时尚奢华感。
 
 
 
 
处处都有设计师的小心思,
为屋主打造的清晨洗漱最流畅的动线设计,
大到洗漱化妆沐浴空间,
小到女主人专用的化妆镜,毛巾环,
“一条龙”式梳妆区相当实用,
 
 
 
 
屋主淘来的五金件自带复古气息,
显得稳重又不失闪光点,
这般精致模样的卫生间想不爱上都难。
 
 
如果房间内就足够惊艳,
那一定是没遇到这样梦幻的花园,
琉璃花架在夜晚的灯光下泛着点点星光,
又可独享一方静谧天地,
炫彩又浪漫的花园正式亮相,
 
 
屋主沿着花园四周种植了各类花草,
等夏天来了,花草繁盛时节,
绿野式的花园形成一个天然氧吧,
傍晚坐这里纳凉喝茶倒也是惬意,
 
 
这一张特别有美剧的味道,
随时可以邀请三五好友一起喝个酒。
 
 
每个人的“港湾”都有无限风格,
也留给了设计更多的可能,
是屋主眼中的理想之家,
也是在外忙于奔波后能归回的温暖港湾。


