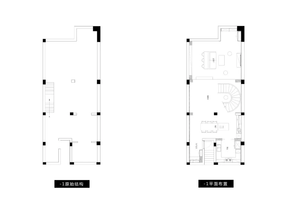
在本项目中,原地下室是密闭的,没有采光和通风,单跑型楼梯的位置设定局促,原本结构存在许多问题,所以设计师将整体结构重新布局理顺,调整到一个新的空间秩序后。
前期与屋主沟通房屋功能的过程中,了解到他们的一些生活习惯与喜好,并将4层功能进行划分。地下室是娱乐兼生活室,一楼作为亲子互动区,二楼是儿子与女儿的两个套房,三楼整层设计为屋主的大套房。
一楼是亲子互动区,这里更像是一种温暖、治愈的生活仪式,我们希望能在简约中融入其他的元素,喜欢现代简约,是因为它能带给空间纯碎,但不需要它的机械感,所以在家具软装的选择上,偏向中古风,使家里的每一处细节都能有时间沉淀。客厅沙发是围坐式的摆放,很随性,没有特定的位置,每件家具都有种20世纪中期的Mid-Century Modern Design的感觉,自由的生活模式即将开始。
光影随着时间的推移交错变换,丰富了空间的表情,为轻松自在的空间塑造出独特气质。
两种不同元素的混搭使空间如同会呼吸一般,呈现出复古感与现代美两种迷人的风采。
考虑到一楼较高的层高及整体的风格调性,我们选择了悬挂式的真火壁炉来协调空间的比例,同时提升一家人围坐在一起的氛围感。
地下室的设计很重要,因为浙江梅雨季节比较多,如果没有合理解决通风及采光的问题,它的潮气湿度会重,整个舒适度会降低很多,到后期往往变成不大使用的空间。
设计师考虑将原本的楼梯位,改造成一楼与地下室的关联点,这块的设计不仅解决了整个地下室的通风流动性,也将一楼的自然采光引入,同时它还能带来一定的生活趣味。
在中空部分,由一楼的顶面向下垂挂线性吊灯,光源正反面,明暗相交的光影,让空间犹如景观一般有着连续沉浸的体验。
考虑到在家吃饭的概率很低,我们将厨房、餐厅移到地下室,将整个地下室变成生活娱乐区。
本案的最大特色是楼梯改造部分,调整后的位置,是在整个家的中心点,无论去家里的哪个位置都是最便捷的。
设计师认为楼梯不仅仅是上下楼的一个工具,可以通过结构造型,使它成为居室内的亮点,同时丰富空间环境。
设计师为两位小朋友搭配出不同的色彩主题,构建属于他们的童话世界。但与传统儿童房不同的是,设计师摈弃了那些有着特定年龄局限的家具配饰,而选择了同样简洁大方的空间格局,让家,可以陪伴孩子一起成长!
女孩房以雅致的浅灰色打底,柔美的粉色窗帘,恰到好处的饰品轻柔地点拨,可爱的粉色浴室,氤氲出一个甜美梦幻的少女世界。
男孩房以米灰色作为基底色,温暖的色彩营造出舒适和休息的氛围,同时利用一些抽象卡通元素点缀,丰富儿童的想象力。变成孩子的记忆盒子与梦想乐园。
主卧以套房的形式,将各个功能区连接(起居室、睡眠区、衣帽间、卫生间等),纯白的主色调与质朴的木材带来清新自然的感受,细节由立面至顶面延伸,搭配定制的软装陈设,同时将窗景引入,使起居生活与自然紧密联系,让净、简、素的基底更具活力与生机。
卫生间选用了大理石铺设,水滴状的吊灯,柔和的光源设计让这里充满了雅致的艺术感。
后院是一个花园,让孩子与自然更加亲密的接触。天气好的时候,一家人会泡上一壶花茶,到院子里看看书,聊聊天。足不出户也能欣赏到大自然中最绚烂的色彩。
项目地址丨 湖州 · 奥园壹号
项目面积丨 450平米
主要材料丨 乳胶漆、成品木饰面、整屋定制家具、日立空调
辰佑设计·颜青软装品牌创始人之一
设计理念:精致·艺术·实用·人文
精致:每个细节都能经得起推敲
艺术:希望空间能够有艺术的氛围
实用:家庭设计的重心点是考虑生活的便捷性
人文:通过与屋主交流,将喜好及标志性的元素融入空间
一家集设计、施工、产品一体化的专业全案定制公司,致力于为各类室内空间提供创新、系统、专业的整体设计与施工服务。
多年来,我们坚持呈现优质实景作品的发展理念,本着诚信负责的经营态度对待每位业主委托的信任。如家人般的聆听与交流,以了解空间用户的需求,同时站在专业角度,帮助他们找到所想要的生活方式,希望透过空间的设计,描绘人文与环境交织的故事。


?