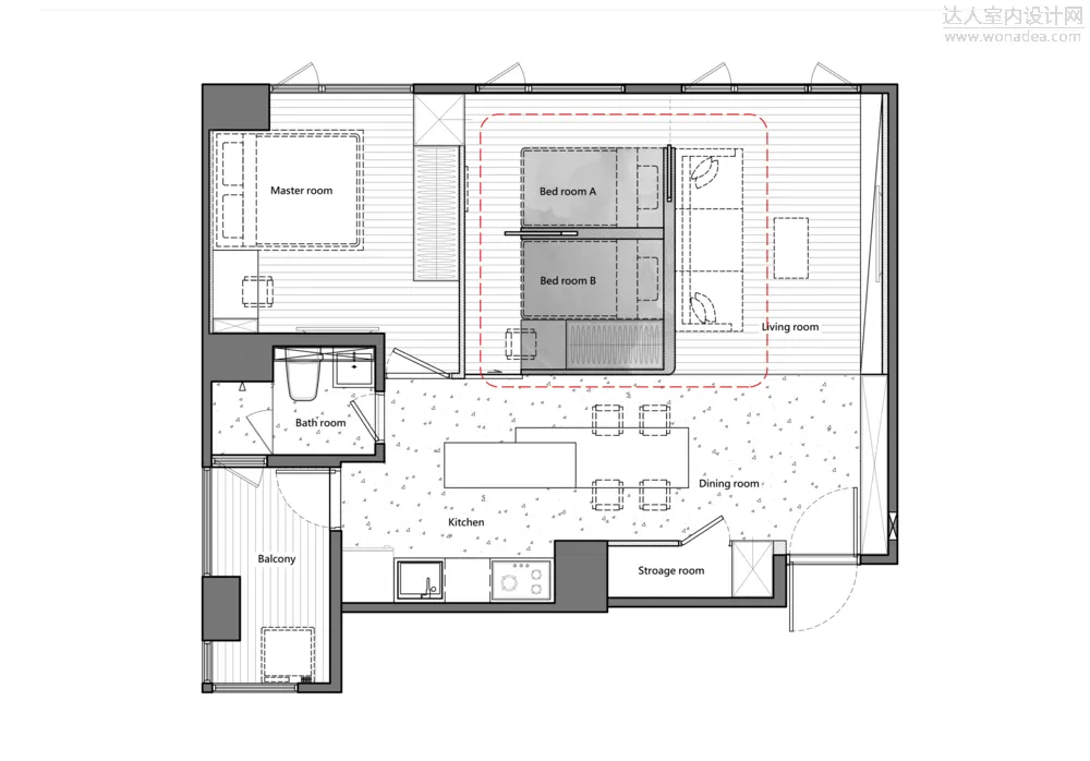
这是一个17坪的小宅,居住成员为一家四口,所以这次最大的课题是必须在这17坪空间中隔出三房,且两个小孩必须有各自独立空间,餐厅也需要有一个大中岛。概念上,我们在思考如何将公共空间极大化;原始为两房格局,因为都是轻隔间,所以我们从0开始思考,尽量让房间在採光较好的一侧,把其中一房变成两间小间的小孩房,房与房之间用拉门来区隔,让空间也变成一种回字型动线。
平面配置上,让收纳集中在两边,入口两侧为收纳柜及储藏室,厨房用中岛与餐厅整合,而房间集中在另一侧;我们用回字型动线破解牆体的区隔,两个房间中间加一道拉门,平时是一大房,当有需要时拉门关上就变成两房,这样既可以有三房,也可以让客厅餐厅维持一定的空间品质。
透视图很清楚表达,我希望让两个小孩房变成一个住宅的盒子,可以切成两块或是一大块,空间也因为拉门变得更流动。
这个空间我们也是走灰白色系,因为坪数不大,所以这样的色调很舒服看起来很明亮,在牆面及柜子转角用圆弧收边,沙发后面圆洞为小孩房的窗户 (可透光又与客厅有所互动),侧面下方的小圆洞里面则是放猫砂盆。我们在这空间用了几种圆型组合,从玄关的圆到储藏室的圆形把手,再到猫屋的圆恐以及房间的圆洞,最后用吊灯的圆形铁件来呼应。
玄关我们有设计可以拉出来的换鞋椅,底下也有收纳功能,而地坪由入口一路延伸到厨房,也跟客厅房间作为区隔。
厨房空间虽然不大,但我们还是规划出一个大中岛,由玄关视角看去,左侧为储藏室空间。
小孩房的其中之一入口在窗边,这样平常拉门拉开,光线也可以引导进来,这两个小卧室之间用拉门区隔,并利用一些圆形挖孔让房间增加一些透光,也可以变成一个有趣的互动装置。因空间有限,设计了可以收折的书桌,需要的时候在把它打开来,牆面为洞洞牆可以放层板或是挂些物品。
回字型动线-小孩房的空间变成一个大盒子,当拉门都打开时就形成一个流动的回字动线。
主卧化妆桌与化妆品收纳柜整合,牆面为硅藻土涂料。
浴室用两种磁砖色系将乾溼区界定,镜子边牆面与天花则用义大利矿物涂料处理交界。
房间的圆洞透光又可以很有趣,简单的进退面营造不同层次感;这裡每个空间每个过道都算的刚刚好,因为坪数不大,所以每一公分都要斤斤计较,虽然一般人看起来可能觉得这个房间好像很像胶囊旅馆,但在这样坪数限制下,不失也是一种空间解套的方式。
黎水仁佳设计 | slightly drunk 260㎡私宅 时光静好150㎡ 隐境300㎡
吴滨、孟也、黄全、唐忠汉、吴文粒……

