 
 
白色的是世界上最纯洁的颜色,美丽而又梦幻,今天我们一起去看看墨西哥和西班牙的五座白色建筑
House Nizuc 01
WEWI Studio
 
 
该住宅位于一个160平方米的转角地块上。利用这些条件,建筑师决定改变这种类型细分中常用的方案,将停车场放在后面,花园在前面,与现有的公园相连,产生一种延伸感。
 
 
 
 
 
 
项目的轮廓与地块的方向相呼应。服务设施,楼梯和游泳池位于西部,吸收下午的热量,而卧室和公共区域位于东部,并享四季的海风。建筑看起来像一个少了几块的白色大盒子,产生了私人露台和庭院景观。住宅的外观简约与室内形成对比,室内由两个两层高的交叉设计,形成三层高的对角线,通过窗户将住宅的各个空间连接起来,产生一种更宽敞的感觉,并使室内充满活力。
 
 
 
 
 
 
 
 
 
 
带有低矮天花板的走廊作为过渡,在向通高空间开放时产生对比。使用了限定范围的材料,试图通过色彩统一空间。在潮湿的区域和楼梯间使用ht木材,如杨树、石灰石和chukum(当地材料)。
 
 
 
 
 
 
Marina Senabre
 
 
该住宅呈现为两个建筑之间的对话。两个体量一方面代表了Menorca岛的特色建筑和建筑,另一方面代表了当代建筑。通过构图的美学使两座建筑互相对话与联系。
 
 
 
 
 
 
 
 
 
 
同样重要的是,纯粹的几何结构和围绕在房子周围蜿蜒曲折的自然环境之间的对比,建筑似乎以一种尊重的方式安放在景观上,同时融合并突出
 
 
 
 
 
 
 
 
 
 
 
 
 
 
房子的内部设计反映了同样的建筑的两面性,它是极简主义的,也很温暖,这得益于连续的材料,覆盖水平和垂直的表面,总是与传统元素接触,如天然木制品。几乎没有装饰的房子重视概念,比例和简洁性.
 
 
 
 
 
 
 
 
 
 
 
 
该项目分为两个独立的部分。起居空间,包括厨房、餐厅和休息室都位于较大的体量中。它们通过大开口和室内天井相互连接,这些开口和天井连接并照亮了更私密的房间。较小的部分用作辅助空间,一方面包含完整的客房,另一方面,包含进行体育运动的空间和一个小型室内游泳池,可以放松和思考与景观相联系的地方。
 
 
 
 
 
 
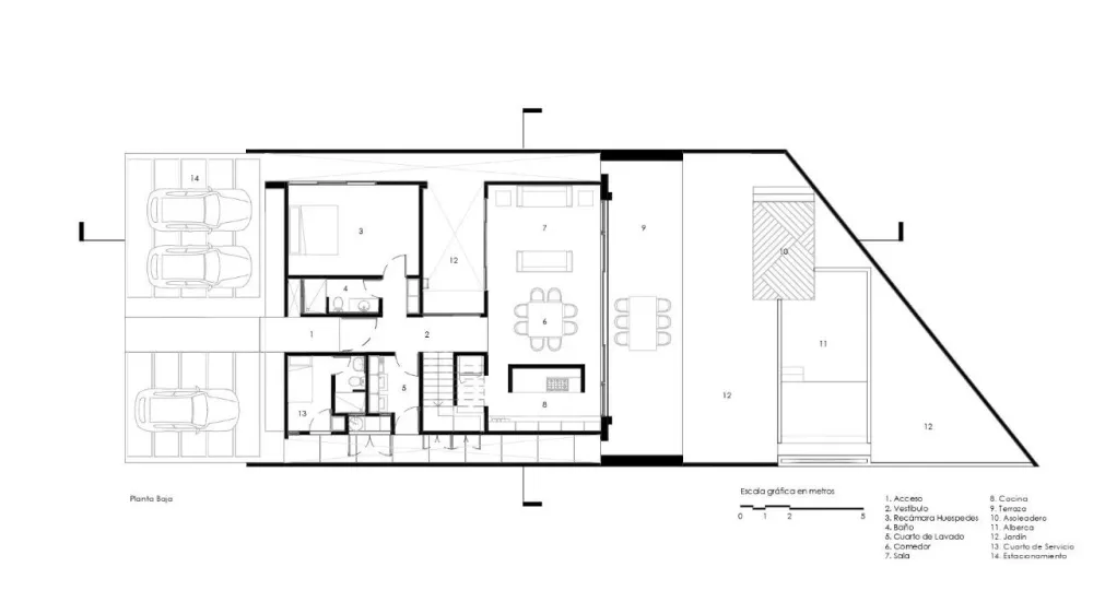
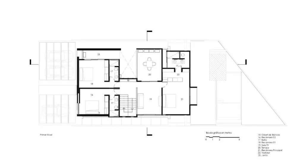
Venados 22 House
estudio AM arquitectos
 
 
Venados 22住宅的白色外墙与当地石头雕刻和手工制作的墙壁相形成鲜明的对比。
 
 
 
 
 
 
 
 
 
 
裸露的混凝土也存在于结构元件和窗框中,。露台和花园围绕着黑色大理石游泳池的木质平台,吸引着他们前来玩耍和休息,瀑布的声音更为空间增添了几分宁静。
 
 
 
 
 
 
 
 
 
 
 
 
房子的内部包括一个四口之家的功能区,一楼有一间客房,三间卧室,客厅和一处游乐区位于顶楼。大理石地板,镶板和白色墙壁使tzalam-wood的元素以温暖和自然的色调脱颖而出,这种由直线和简单材料构成的建筑是功能和设计的结合。
 
 
 
 
 
 
 
 
 
 
 
 
 
 
为了证明这所房子的存在是正确的,我们从一开始就把Casa JA想象成一条谨慎的、纤细的水平线,它突出了背景中的天空和山脉,太阳的的光芒在它们之间流动。我们不得不小心翼翼地将主立面隐藏起来,不让那些穿行在santa Barbara glen街道上的人看到。我们希望这所房子如此亲密而安静,只表明它的存在,避免任何它所在位置过多的装饰。
 
 
 
 
 
 
黑色的石头内饰墙面增强了空间的对比,突出了太阳、天空和山脉休息的水平线。在整个设计过程中,从它的位置感知到的神奇日落对我们来说是非常重要的。空间希望被这种光的美所影响,这种光除了产生一种特殊的魅力之外什么也不做。
 
 
 
 
 
 
 
 
 
 
房子被分成三个不同的楼层,通过宽阔的有顶和无顶的楼梯连接,形成一个连续的、流动的空间。花园、天井和广场组织了项目的其余部分,提供了一种内省和安静的自然的气质,使空间充满亲密感和回忆,让我们想起米却肯州一些城镇的前西班牙和殖民时期的建筑。
 
 
 
 
 
 
 
 
 
 
 
 
 
 
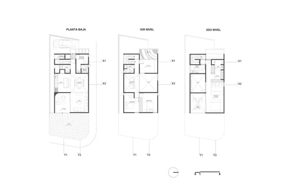
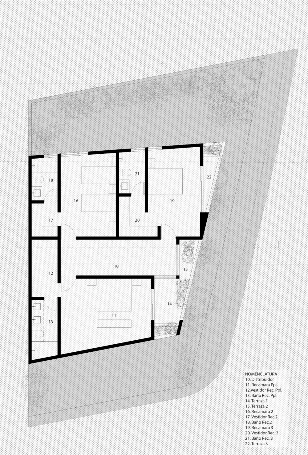
Almendro 22 House
Arqueodigma Estudio
 
 
项目位于Zapopan边界上指数增长最快的地区之一。拥有享有特权的绿色区域私人公寓,允许室内外之间的通透性,勾勒出了花园的视觉效果。
首先,住宅的设计基于其外部花园,其垂直流线创造了外部的视觉效果,解放了内部空间,沿着整个路线创造了露台和阳台。这些循环将住宅的私人区域与公共区域分开。一楼、书房和浴室被划分为房屋的休闲区,休闲区与室外区相连
 
 
 
 
 
 
在上层,室内设计带有露台和俯瞰花园的区域,从而为与植被相连的反射提供了空间。
 
 
 
 
 
 
 
 
 
 
屋顶上形成了一个露台,以腾出所有建筑空间,并利用这个特殊的地方提供给我们的景色和宁静。创造了一个休闲和休息的空间,使房子与周围环境融为一体。
 
 
 
 
 
 
 
 


