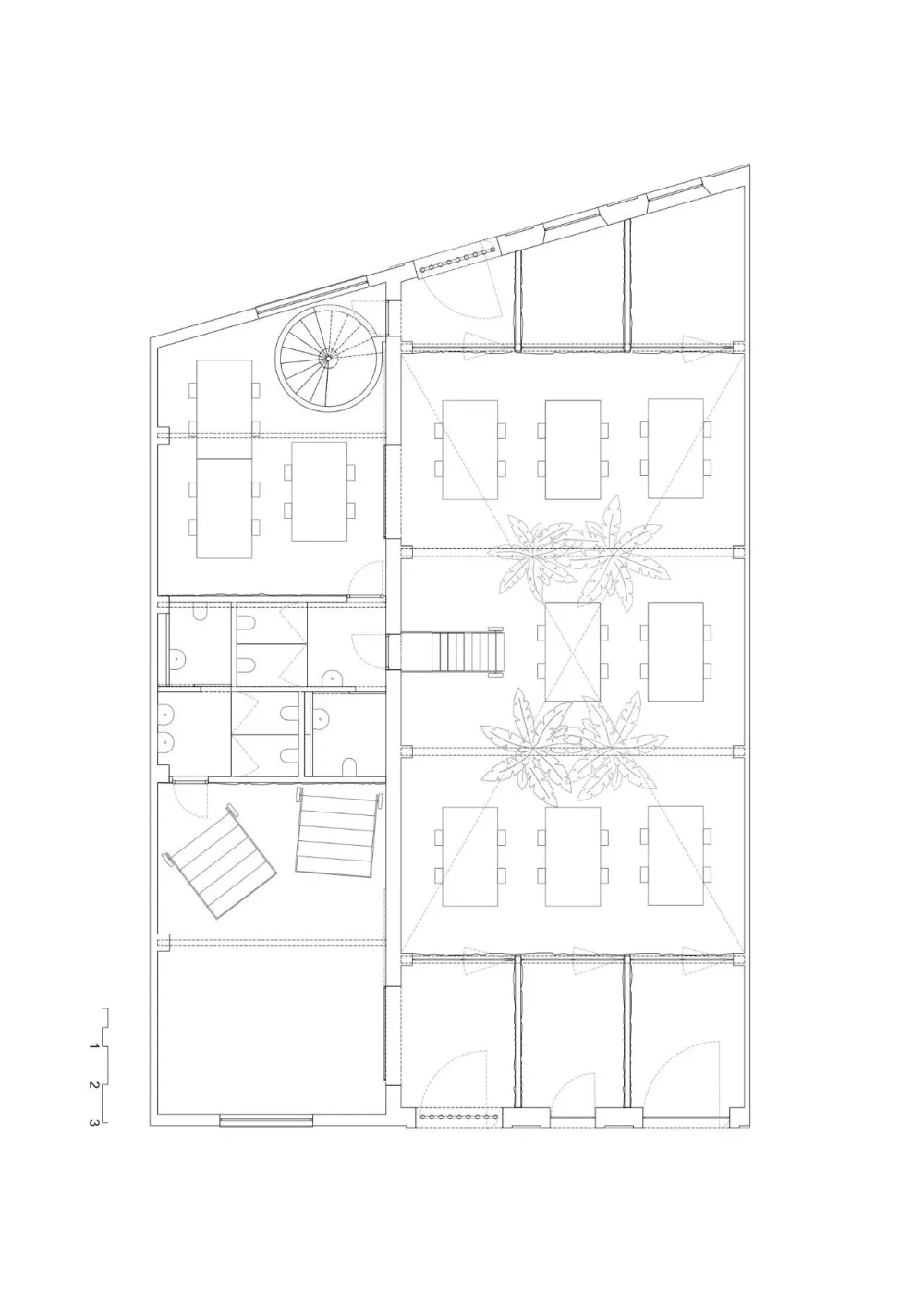
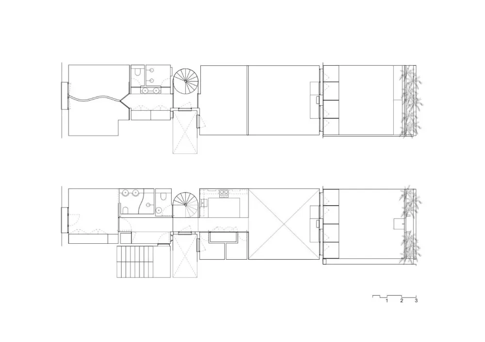
ARQUITECTURA-G是一家位于巴塞罗那的建筑工作室,主要致力于建筑和教学。
2006年,由建筑师JonathanArnabat,Jordi Ayala-Bril,IgorUrdampilleta和Aitor Fuentes创立了ARQUITECTURA-G。
他将自己的活动视为团队合作,其中个性化为多种行为方式。专注于材料领域的研究。ARQUITECTURA-G的工作方法是用最佳的个性化的定制的解决方案,帮助客户完成他们的愿景,并在相互信任的基础上建立长期的合作关系。
ARQUITECTURA-G的作品已经在国内外的各种媒体上发表,并且屡获殊荣,包括2013年ASCER室内设计奖,2015年密斯·凡·德罗(Mies van derRohe)新兴建筑师奖、 2016年第十三届西班牙建筑与城市主义双年展、2016年威尼斯双年展西班牙馆的入选作品,2016年赫罗纳滨海艺术中心奖和第十四届西班牙双年展奖2018年的建筑与城市主义。
ARQUITECTURA-G 在包括CCCB,马德里Matadero,纽约Cooper Union,列日大学,柏林Udk和ETSAB UPC在内的多家著名机构和大学发表了演讲。
2008年,ARQUITECTURA-G创建了ESCRITOS-G作为一种学习工具,并改进了他们的专业活动,目的是建立批判性的论述并引发有关当代建筑的争论。ESCRITOS-G是ARQUITECTURA-G的成员和各种建筑师之间关于建筑的对话的汇编,他们的工作激发了人们对专业、社会和媒体的兴趣。

