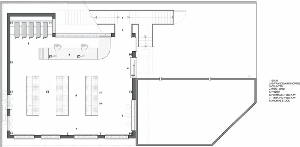
项目名称:Dr. Jart 旗舰店
Betwin Space
摄影:Yong-joon Choi
版权声明:本文内容由用户自行发布上传或投稿由设计芝士代为发布,版权归原作者所有,设计芝士不拥有其著作权,亦不承担相应法律责任。如果您发现本站中有涉嫌抄袭或侵权的内容,请点此提交工单进行举报,一经查实,本站将立刻删除涉嫌侵权内容。
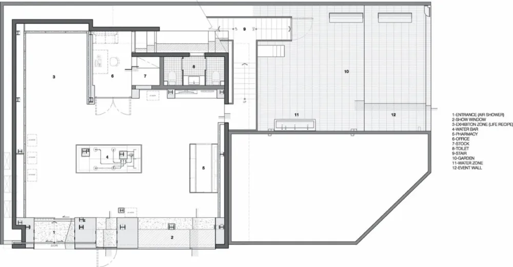
项目名称:Dr. Jart 旗舰店
Betwin Space
摄影:Yong-joon Choi
之前
