©Stijn Bollaert
比利时代因泽的Leietheater是城市中重要的公共空间典范,在扩大代因泽文化遗产影响力中起着关键作用。TRANS建筑实务所及V 事务所的协作团队,在竞赛阶段提出了更换项目场地的建议,以此拓宽项目空间,创建出延伸至Leie河畔的大型城市公园。这番举措也使得剧院得以坐落于重要的城市轴线上,成为更突出的城市地标。建筑改造自被纳入Oude Leiearm公共开放空间的代因泽Leiestreek博物馆,使其再次成为代因泽的文化中心。
▼建筑外观 ©Stijn Bollaert
▼建筑坐落于大型公园中 ©Stijn Bollaert
场地中的公园由Marie-Josée van Hee建筑事务所设计,与剧院之间相隔的是由Tony Fretto建筑事务所设计的市政中心及Leiebocht中心广场。该地段附近还有Stedelijke学术中心。在该学术中心深造的有才华的年轻人,有很大几率会从这儿登上Leietheater的舞台。
▼区域总平面 © TRANS architectuur stedenbouw – V
▼剧院与周边建筑 ©Stijn Bollaert
代因泽博物馆就像画里的建筑一样。建筑一角设有咖啡厅,使得剧院在开放时间以外也能成为受欢迎的公共空间,不断地激发城市活力。超大型礼堂及塔楼使剧院建筑拥有独特的外轮廓。建筑外立面上釉面和哑光的白色石材排布成整齐的装饰图案,在不同天气条件下,反射出或柔和或明亮的光,就像一幅埃米尔·克劳斯(Emiel Claus)所作的油画,静静地伫立在那里。
▼礼堂与塔楼组成建筑独特外轮廓 ©Stijn Bollaert
▼开放式廊道 ©Stijn Bollaert
▼博物馆仿佛一幅安静伫立的画 ©Stijn Bollaert
▼外立面细节,白色石材排布成整齐的图案 ©Stijn Bollaert
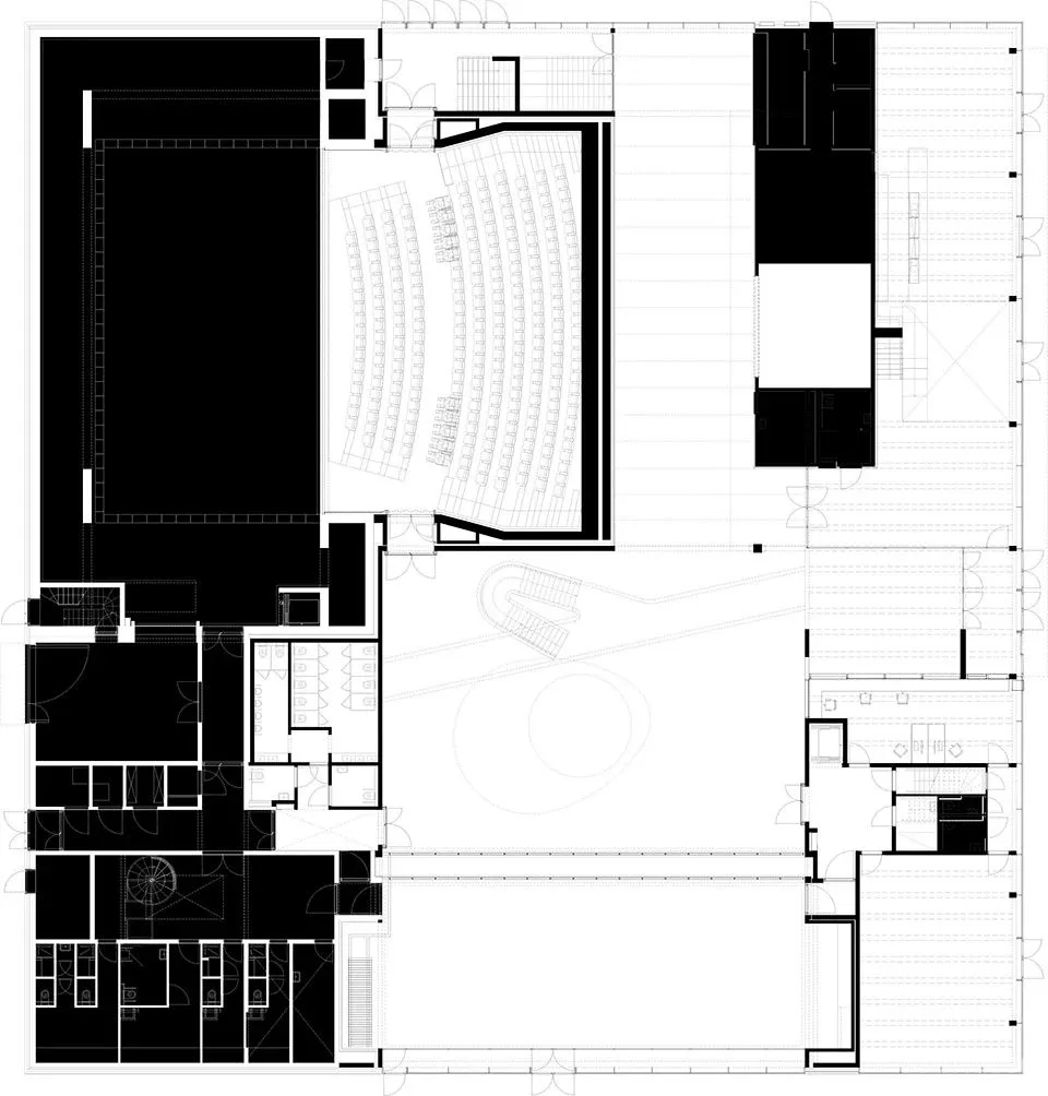
项目整体布局呈方形,其内各体块围绕一个带有巨大天窗的大厅排布。大厅与多功能厅间的隔断墙可以被移除,以拓宽大厅的空间。
▼带有巨大天窗的大厅 ©Stijn Bollaert
▼移除大厅与多功能厅间的隔断 ©Stijn Bollaert
▼大厅中的楼梯 ©Stijn Bollaert
▼旋转楼梯 ©Stijn Bollaert
▼剧院观众席 ©Stijn Bollaert
▼建筑平面图 © TRANS architectuur stedenbouw – V
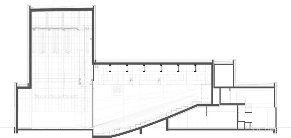
▼剖面 © TRANS architectuur stedenbouw – V
Project name: Leietheater Deinze Design: TRANS architectuur | stedenbouw – V Design year: 2015 Completion year: 2019 Leader design – team: TRANS architectuur | stedenbouw – V Project location: Brielstraat 8, 9800 Deinze, Belgium Gross Built Area: 3500 m2 Photo credits: Stijn Bollaert Clients: City of Deinze Budget: € 9.250.000 Status: completed Commission: internatoinal competition, 1st prize
Partners Structure: Ney – partners, Techniques: studiebureau Boydens, Acoustics: Daidalos Peutz Theatre equipment: Theateradvies


😊