看惯了门是门、窗是窗的别墅设计,今天就带大家看一套与众不同的独栋建筑,
这套 Jalan Seaview House 位于新加坡,总建筑面积为 9,300 平方英尺(约 864㎡)。
由新加坡建筑事务所 EHKA Studio 负责设计,
受到曲线之美的启发,建筑外形颇具流动性。弯曲的外墙是在现场用纤维增强混凝土面板制造而成,大面积的玻璃使其看起来无比轻盈。
别墅从外到内都给人以柔和的视觉效果,洋溢着设计师对曲线的极致追求。
就连外围的穿孔金属板都是波浪的形状。
从下往上望去,雕塑般的建筑外缘既让人感到宏大的空间感,又突出了曲线的感性魅力,达到一种微妙的平衡。
由于地面位于低洼区域,因此必须使地面较之道路高度再上抬 1.5m,于是便有了这如同波浪般的台阶。
台阶以其弯曲流畅的线条,弱化了石材的坚硬感,增添了一份亲和力。
两根门柱如同高跟鞋的鞋跟,平滑且柔美。
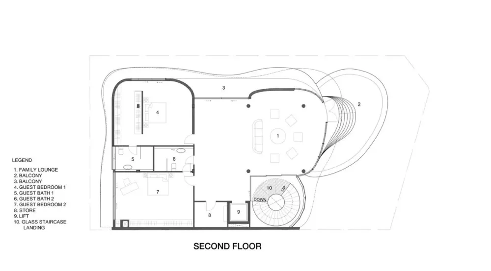
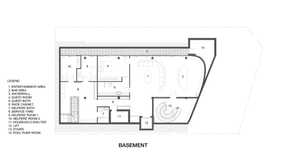
整栋别墅连同地下室,共有 4 层。
旋转楼梯贯穿始终,洁净的白色加上大面积的玻璃扶手,洋溢着简约精致的现代气息。
地下室内主要包含了酒吧、休闲区域以及保姆间。经典的白色家具加上大理石地面彰显出低调的奢华。
一楼也是入户层,开放式的空间无比通透。
由于新加坡属于热带地区,客户又要求使用大量玻璃,所以设计师在「降温」方面也是用足了心思。
除了必备的吊扇和超宽的屋檐,低反射的玻璃立面可以最大程度减少热量,并且可以滑动至完全打开,进行通风。
用餐区域的玻璃门外还有一个可滑动的铝制屏风,用来阻挡西晒。
一侧的泳池也可以起到冷却周围环境的作用。这样一波操作,让室内即使不开空调,也可以保持舒适的感觉。
位于一楼中间的夹层楼,是设计师为客户创造的一个额外的空间。
通过旋转的楼梯抵达,可以发现地面也是由玻璃制成。
这样的设计使楼下的厨房区域依然显得高大,消除了实心楼板的闭塞感。
这里用以放置客户收藏的古董和一些设计师家具,对于楼下的空间一览无遗。
夹层楼还拥有一个弧形的户外阳台,在这里可以尽情的享受阳光。
再往上走,便是比较私人的二楼,包含一个家庭起居室以及两个客卧。
同样拥有大面积的户外阳台,透明的玻璃扶手让视线毫无阻碍。
主卧位于顶层的阁楼,这里还容纳了无比宽敞的衣帽间和主卫。
楼梯旁是阶梯型的玻璃窗▼
主卧外也设置了超大的露台,可以尽情远眺,享受极佳的阳光和风景。
当夜幕降临,灯光透过玻璃门窗向外扩散,整个建筑更显通透。
这栋别墅既包含了热带建筑的传统概念,又融合了当代的建筑形式,满足了居住者对采光和通风的要求,兼具可居住性和雕塑美感。无论从哪个角度看,都如同一件艺术品。

