这是位于巴塞罗那Sarrià-SantGervasi的一座私人住宅,上下两层的空间都可以享受到充沛的光线,当地著名的设计团队Arquitectura-G接受了此次的改造邀请,他们发挥了大胆而创新的思维,决定使用一种颜色覆盖整个房屋,以此带来时髦、独特,令人震撼的视觉效果。
▲建筑拥有优越的采光,阳光可以从露台尽情的洒入室内,为了保证光线的穿透,室内外的隔墙被尽量拆除,天花板也改为了金属网格板。
▲充沛的光线成为了设计的灵感,最终设计师决定以象征阳光的黄色调晕染室内,从布艺沙发到马赛克墙砖,与白色调形成了鲜明却又温暖的视觉感受。
▲厨房区采用了开放式的布局,保证可以照亮室内的每一角落,从地面的马赛克砖到木质的柜门再到金属网格板,即便是相同的黄色调,设计师也通过不同的材质塑造了丰富的视觉感受。
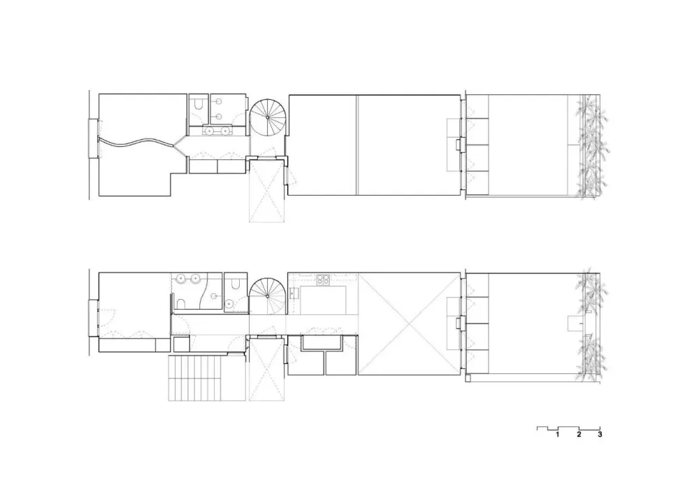
▲通往上层的旋转楼梯,设计师也选择了同色调的钢板,穿孔的设计避免了金属的厚重感,保证了楼梯间的光照,也将上下层空间相连。
▲上层为私人空间,设计师大胆的舍弃了传统的双人床,而是通过模块化的软垫营造出更为灵活的睡眠区。
▲除了材质上的变化,设计师也通过直线与曲线的交织,将视线代入下一功能区,也增添视觉上的丰富感。
▲设计师对于细节的把控十分精细,即便是金属护栏或是木门把手,都全部使用了黄色调覆盖。

