空间是生活的容器,这个容器如果能够呼应、合乎我们的作息方式、需求与愿望,生活便能真正安定安稳、舒适舒坦;同时,认真专注徜徉其中,有滋有味、自在自得。
这是一个屋主对于家的理解、需求。我时常在想,生活方式、习惯能否可以改变?答案是肯定的,但同时是否定的。有些习惯、方式可以被重塑,但根深蒂固成为理所应当的却非常难。
举个栗子:小户型中烘干机代替部分晾晒功能,优化阳台功能。年轻人非常容易接受,但年长的大多接受不了。
所以每个案子开始前,我总是有意无意会和客户们聊些生活,我会很在意细微细琐的枝节,这些对于业主来讲是习惯、无意识,而此时客户讲诉重点在与没有尝试过想实现或希望改变。
18年底我承接了这套案子,19年底才算真正完成。本案是我北欧风案子中具有代表性的,因为它的纯粹。
北欧风很多人存在一定误解, 某些主流媒体时常看到:XX今天告诉你关于北欧风的秘密,喜欢北欧风的赶紧点关注”等等这类视频和文案。
这些内容总结一下基本就是:北欧风=性冷淡=宜家=廉价
我有尝试点评,但基本上掩埋在几千留言和几万点赞中,突然好想感叹下自己的卑微和渺小。
最早接触北欧风是在大学时期,非常喜欢阿尔瓦·阿尔托。他的作品带给我很多的设计灵感和对北欧人文以及设计史的认识。
北欧风和现代主义风格有千丝万缕的联系,北欧风不单具有现代主义的简洁实用,更多了些亲和感与人情味,也是本案中我最想表达的。
对于本案业主,首先我要表达对她的感激之情。感谢她大力出资支持我的设计,设计中、实施中给予设计充分的尊重,包括但不限于我。
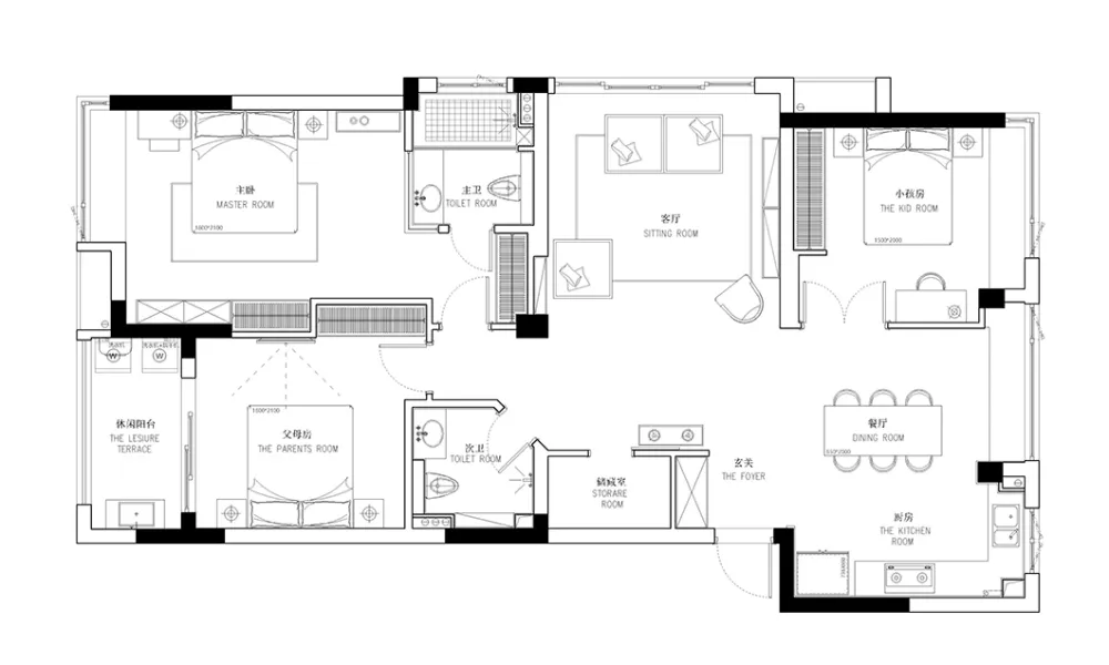
空间破题与处理,天光、窗景与生活、格局动线之间呈现的联结和交映。这些是我首先思考的问题,幸运的是原始户型和业主给出的中心思想没有南辕北辙。
和业主交流中,明确了以下几个需求要点:
光:空间必须明亮。感觉业主对于阴暗空间厌恨到了视若寇雠的地步。
简洁:家有小精灵一只,刚好是在他探索世界的年龄。
环保:对于材料的环保性、节能设计上有着极致的追求。
说来,这稿最终稿之前我自己还构想了4稿方案。怎么样优化动线、收纳布局、自然光…
户型东面是没有采光的,所以我把不需要采光的储藏室放置在了东面。紧接着给玄关和客厅空间引入更多的自然光,把厨房的隔墙进行拆除。
最终,客厅、餐厅、厨房三个空间形成了光线交互。即时,整体空间属性也有了明确的区分,客厅、餐厅、厨房、小孩房为正空间,主卧和老人房为负空间。
地面采用全屋地砖,地砖有着更好的导热性,节能环保;有小精灵,那么地砖会比地板有着更好的耐磨性;易打理;
模块化沙发相比起常规的沙发,它有着灵巧的体积;可以自由组合、分隔;空间更加的休闲和随意;
拍摄当天天气非常好,所以照片均是拉着窗帘拍的。(不拉窗帘照片容易曝光,空间的采光非常好)
来自班班GALLERY 定制装饰画,业主夫妻的旅行照。
来自LIVE ART -DEFINO装饰画,夸张、抽象和白色形成鲜明的对比。
极具包豪斯风的藤编单椅是我非常喜欢的单品,来自VERDON。还有非常可爱的小推车,来自北欧风情。
餐厨空间其实和客厅空间没有区分的那么明显,好似一个整体。
被一根柱子切开的中厨和西厨,整体7.2米的台面。我想只要是爱烹饪的小伙伴应该都会留恋这样的餐厨空间。
MUUTO 的餐厅吊灯也是我非常喜欢的,特别是灯罩的造型,工业气息爆棚,细腻的磨砂质感也是品质的保证。
特地挑了一幅米奇的像素画,我希望空间呈现相较于现代风格的简洁,还有亲和感和人情味。
本案全屋白色涂料都选用了Alpina品牌。这款涂料相较于普通涂料有着耐污、可反复擦拭、硬度高的特点。至于环保那是最最基本的,蓝天使认证。
首先迎面而来的是我们的主卧空间。晨起,掀开被窝两足下地,即使没有踩中拖鞋也一样暖暖的,打开卷帘登时大片开阔明媚的窗景和天光迎面而来。
舒缓、宁静我想是对于卧室最好的形容,蓝色的背景给人宁静安定的空间情绪。
次卧空间,我想这应该是很多人喜欢的简单美。
细心的朋友会发现我整个案子中没有使用大理石,主要是出于两个方面的考虑。
第一:大理石基本就两种光面和哑光面,光面的东西我不想出现在北欧风里面。
第二:哑光面的大理石非常不好打理。所以最后用砖和木板代替大理石的使用。
又到了结束的时刻,这套案子总共给大家展示了50张照片,几乎整套房子都完整的呈现在你们面前,我觉得每个空间都是平衡、美的。我很喜欢北欧风,因为它的设计往往都是直达原点,这可能就是纯粹的力量。最后再次致敬我亲爱的业主,感谢遇到你及你对于设计的尊重。
房屋位置 | 萧山世纪新城
房屋面积 | 130㎡
设计支持 | 墨菲设计团队
墨菲空间研究社1号研究员
设计理念:空间,是生活的比喻!
奖项:2018拓者杯居住空间设计大赛 金奖

