隐没在闹市水泥丛林中,宁静独立。
有书、有咖啡、有人文气息弥漫、有爱书
大家在此读书、享受、交流,
通过书店的空间让大家在此相遇相知,
你有多久没静下心细细品读一部著作?你是否还记得,双手翻书后留下的点点书香。
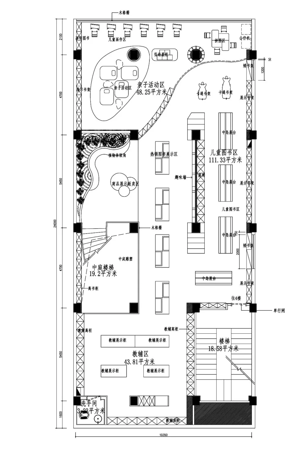
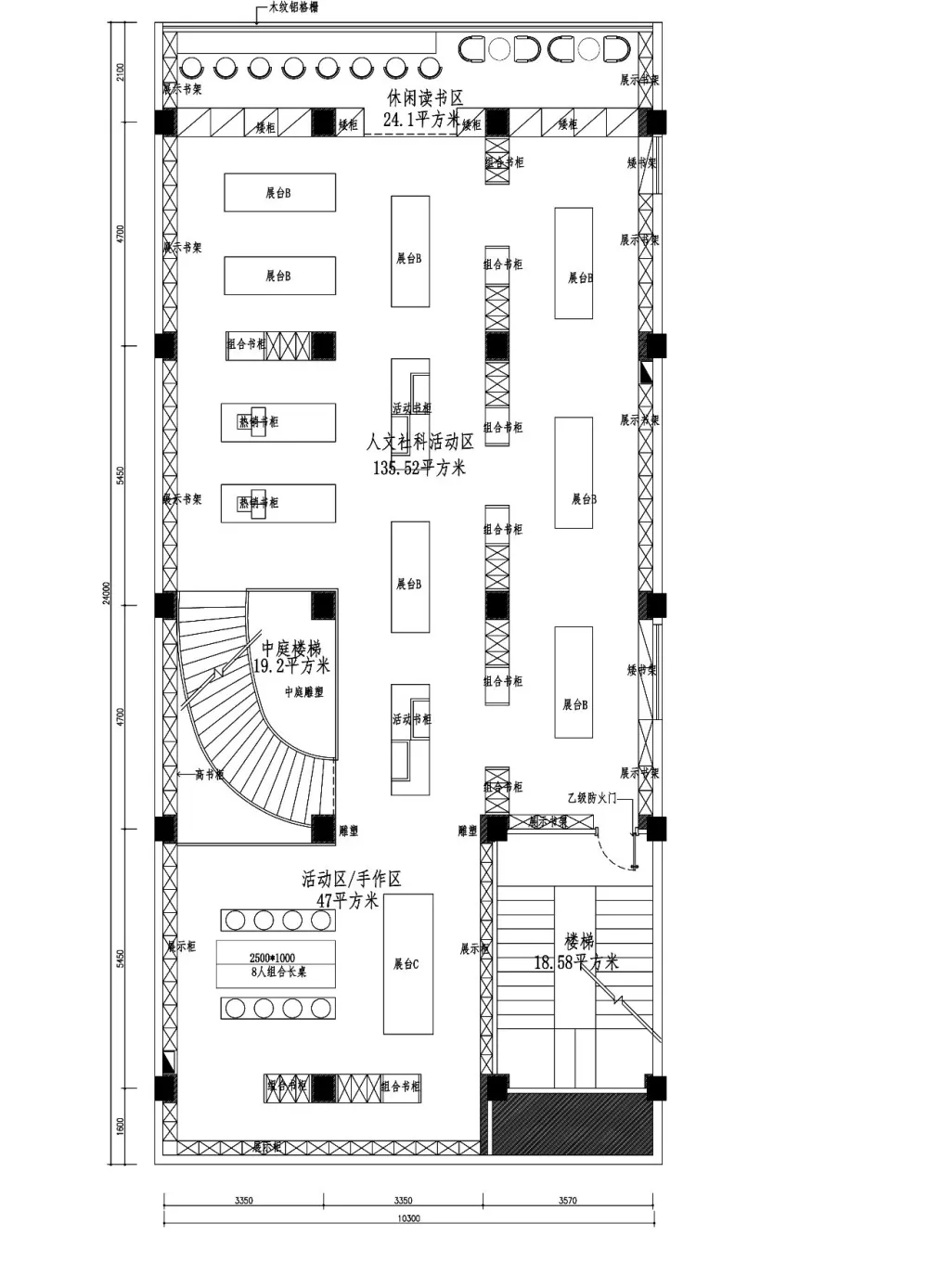
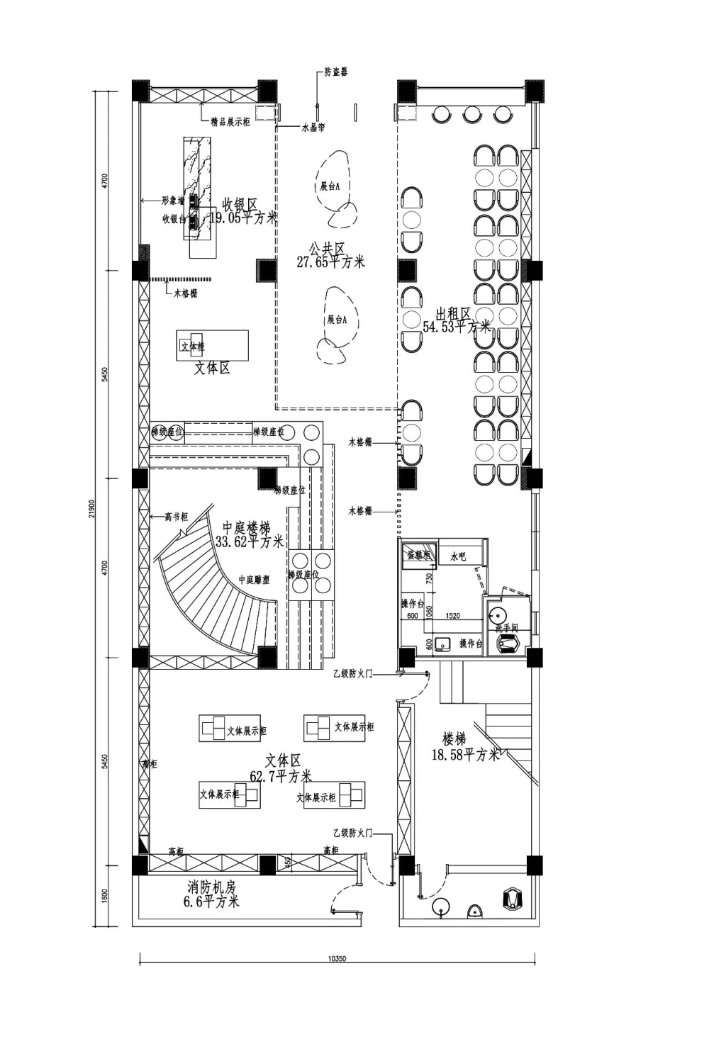
书店的中心围绕着天井展开,楼梯位于天井之中,联系着三个不同的楼层,确保充足的日光到达地下,让自然光充满了内部空间。
设计上的巧妙心思,都旨在增加书店与读者的互动,重新唤起人们对实体书本的阅读体验。同时,书店要能让人有一种舒适感,如同在自己家中一样放松,能够好好看书的地方,而不是一张晒朋友圈的照片或者拥挤的景点。
给自己一点回归自我的空间,不忘在忙碌生活里放慢脚步,去发现生活中的美。当一个人投入到身边美好的事物中,随意而自我的去从事自己喜欢的事,你忽然发现,原来,生活如此简单而美好。
满架的最新摄影、设计和建筑类书籍,包括中国当代艺术、设计、建筑、装饰、摄影、画册、外文杂志等。对于热爱文创的人,这里就是最美妙的天堂,他们各取所需,然后去发掘更有价值的东西。
“岁月静好,现世安稳”大抵是人间最好的境界,在这钢筋水泥铸造的城市穿梭许久,徘徊于灯红酒绿,疲惫于人心险恶,你是否愿意放空身心,给自己一个重拾书香的机会?
读书,是人一生中持续增值的事情,每位读书人对阅读的热忱与挑剔都值得尊重与深思。
书店,是一种慢生活,在它接入了文创,沙龙,体验之后,它最终会成为城市的一种生活方式。
项目名称:广东新华发行集团陆丰新华书店
项目地址:汕尾市陆丰东海镇陆城建设路1号
设计团队:叶智杰 吴华荣 廖力红
叶智杰 PAUL YIP
2017年荣获广州国际设计周红棉奖
从事室内设计工作超过10年,拥有丰富项目经验,擅长设计书店、餐厅、酒店、商铺、会所、售楼部、商场等商业空间。
品集设计以完善的设计服务体系满足市场需求,以精准的手法呈现作品价值。并致力推动室内设计全程化服务,带动相关业务链条板块。从前置的环境评估,整体规划,空间设计,家具配置,再至软装细节等,将空间作品推升至艺术层次。


现在这个浮躁的世界,能细心整理一些东西发上来的越来越少了。要么就是敷衍的图片,要么就是枯燥的文字。之后就是AI生成的预制菜类的打包便捷快餐了。感谢楼主的分享,让我能在大智能无人化来临之前,看到同类发出的项目。有幸与您互动,缘分2
是不是一直复制,人就会变懒,变笨,第一次的复制粘贴,可能还略带羞赧,第二次再复制,内心的自责就少了一分,第三次毫不犹豫的ctrl+v 是那么的心安理得。回头一看,重复的留言已经700多条了。心安理得么?得到了什么呢?
人生本就短暂,走了除了家里三代人能记得,谁有会记得谁呢?反倒是这数字世界会多多少少留下我们的印记,然而周而复始的评论终究无法让人看上一眼,注定成为网络垃圾。
宝剑锋从磨砺出,梅花香自苦寒来。