“以空间为始,至自然而终。内与外的界限已然模糊,似离而合的格局形成一种连接,让空间融入自然的不绝力量。”设计无界,释放的是更多可能。
 
 
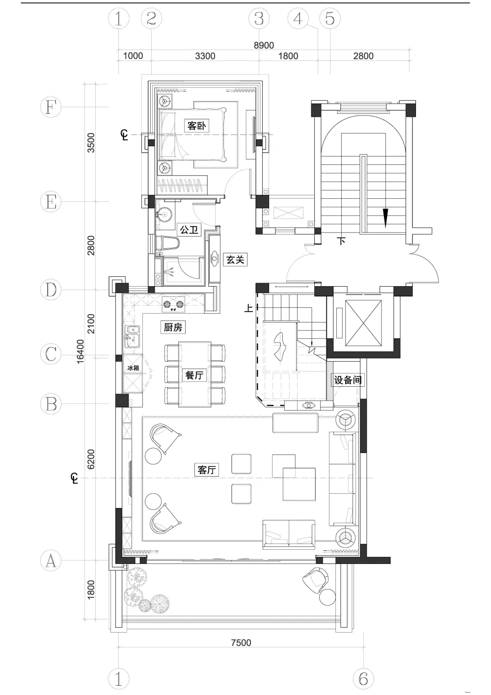
一层公共空间完全开敞,恢弘大气。在楼梯位置设计抬高地台及景观,丰富空间视野感受。
以天花材质的区别划分空间,增加层次感,凸显精致感。
 
 
 
 
 
 
自然的木质家具,写意的山水画,干练的线条,并运用现代块面的设计手法,营造出一种中式优雅之美。化繁为简,注重细节及比例美感,强调空间合理布局与使用功能的完美结合。
 
 
 
 
电视背景墙以对纹鱼肚白大理石搭配雅致金属博古架,提取中式文化的精髓的同时注入现代生活的气息,营造出一种简约贵气的美感。
 
 
 
 
楼梯装置以通顶金属网为隔断,视线未被完全阻隔,客餐厅与景观阳台隐约窥见。整个门厅收放有序,以东方理念的当代演绎,将喧嚣褪去,让所有感官在静谧中自由舒缓。
 
 
 
 
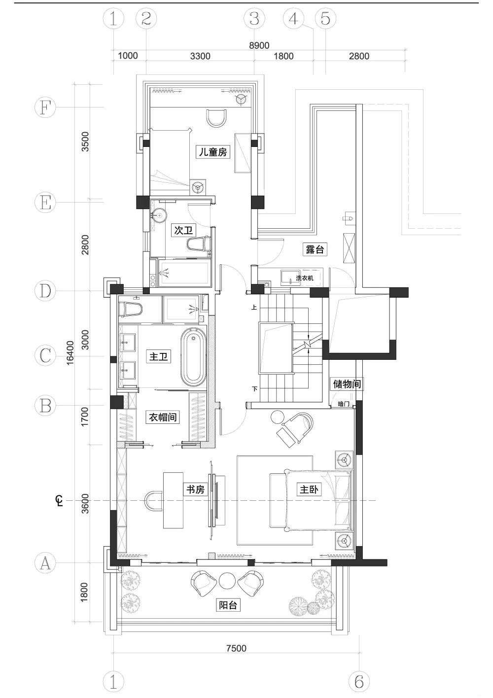
二层主卧套房包含书房,衣帽间,主卫等功能空间,藏有夹心移门的墙体与书房隔断,在主卧排列出新的秩序,让空间保留围合的同时,也可以自由呼吸。
 
 
 
 
 
 
 
 
爵士白、黑白根大理石与古铜拉丝不锈钢的搭配相得益彰,对比鲜明,散发出通透简约的高贵质感。
主卧设计半透明衣帽间,增加实用性及通透性。
 
 
“高莽渺无界,夏木独森疏”,当代的诗意,是在喧嚣的年代,做安静温暖的事。本案通过实用性与艺术性的融合,打破生活、空间、艺术的边界,迸发出现代美学的哲学之美。
 
 
 
 
案名:成都北大资源·紫境东来府上叠样板间
设计团队:宋启玉.宋美儒
设计单位:上海茂联建筑设计事务所
单位地址:上海市延安西路1590号1S室
设计面积:189.2㎡
设计时间:2019/2
完工时间:2019/10
 
 
1981年史南桥先生在台湾创立高能设计公司,为台湾大型房地产公司提供设计服务,因擅长空间利用,被称为空间魔术师。1998年将总公司迁至上海,更名高迪设计公司。经由二十数年的努力,公司业务已拓展至土地规划、产品定位、建筑设计、景观设计、室内设计、软装设计等系列性操作,设计内容也从样板房、售楼处、会所扩展至商场、酒店、休闲、娱乐等各项业态。
由于公司在空间处理、风格把握、技巧运用等方面的优势,受到业界的充分肯定,为全国一线房地产公司处理了数千楼盘的设计。
应东方卫视《梦想改造家》节目组的邀请,史南桥先生连续参加了六期节目,为这些家庭完成了一个又一个不可能实现的梦想。在史南桥先生的带领下,整个团队着眼于更高的视野和更广阔的角度,业务已扩展至美国塞班岛、加州以及马来西亚,公司的国际化已然踏上征程。
 
 
元禾大千 | 这缕东方“骨感美”,气度不凡,彰显高级!
 
 
CCD | 北京三里屯顶奢豪宅设计!
 
 
孙华锋 | 隐逸雅奢大宅,美好生活典范!


