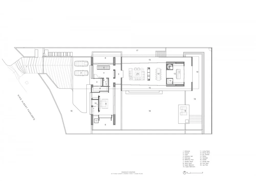
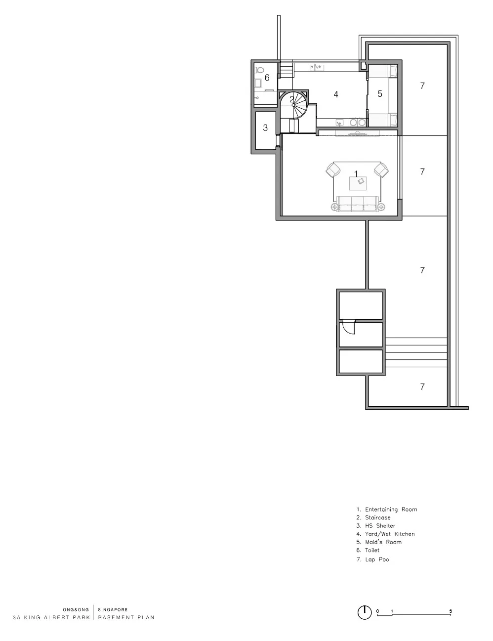
KAP House坐落在新加坡一个装潢高雅的住宅区中,坐落在从旧马来亚铁路残骸生长出来的野生草原后面。该宅邸曾经是一个经典的殖民地黑白平房的广阔花园,被想象成是现代热带生活的典范。









KAP House与环境完全相互协调,旨在捕捉其奇妙的自然环境,因为建筑师精心调整了房屋的位置,以强调绿色走廊的借用景观。由于设计团队考虑了风向和太阳能定位等因素,因此优先考虑了元素因素,并引入了可持续的设计框架,该框架允许在房屋计划中实施被动环境控制。















为了实现建筑,室内设计和美化环境之间的内在整合,采用了整体方法。精心设计的材料调色板进一步突出了整体设计-反映在石材和木材的外墙,波澜不惊的蓝色泳池和水路以及郁郁葱葱的花园绿化中,这些赋予了KAPHouse无可否认的美学品质。














