太湖之滨,山水名城,婉转流连的江南声色,与深藏千年的人文底蕴,共同赋予了苏州这座城曼妙又浑厚的独特气质。苏州富力天鹅港•华庭售楼处落地苏州太湖一侧,我们意图由艺术的感知视角出发,通过摄取城市山水景观片段,演绎苏州城市的当代风度,并以此瞭望它的未来图景。






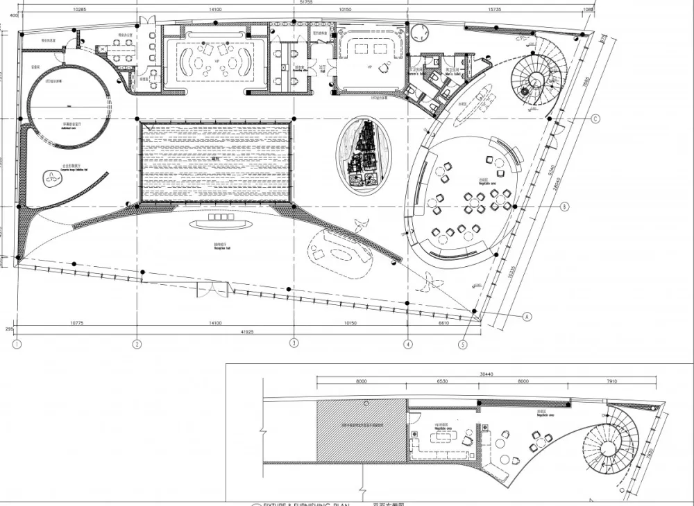
受建筑的“园林式框架”启发,我们的设计立意以造景的方式,在空间内部呈现苏州园林具有当代感且艺术性的设计风貌。于是,一篇“当代游园记”出现了。由入口进入室内,一个极富艺术感的“锦鲤”空间形态引人深入。锦鲤往往是园林造景中不可缺少的主角,而在空间中,同样有着妙用。我们用抽象化的演绎手法将空间的块面关系切割成了一只类似锦鲤的造型,整面覆盖的金属材质,将空间柔化,同时也利用鱼群的游动方向将空间的动线梳理出来,引起来者的好奇心,从而开启了一场当代游园的探索之旅。入口小径蜿蜒,企业展示区域伫立着一座城市的缩影,我们将苏州城的形态抽象化处理,浓缩到这个圆形的装置内,通过艺术装置,似乎窥探到这座城市,渐渐地深入,了解他,慢慢揭开这座古城的神秘面纱。














由相对封闭的影音室走出,两面巨大的落地玻璃窗陡然令空间变得豁然而开敞。正对的多功能室,选用了米色的淡漠铺陈空间,淡绿色,盈盈一抹,用来调和。绝佳的自然天色,令天井地面的水波得以阳光的作用下反射到空间墙面,并与墙面的艺术装置呈现出动静相宜的灵动感。素雅的色彩、自然的材质、质朴的肌理,体现一种静态的时间流逝,让身处其中的人们感受到一份宁静的淡雅和沉淀的安然。与多功能室不同的是,VIP室采用了另一种方式诉说空间的气质。我们通过重新组合、装饰当代装置摆件,使惯常所见的烛台、太湖石、瓷瓶等器具,演绎出时尚而优雅的气息。舒适的丝绒材质家具,略带反光的特性,凸显客人尊贵的身份。洽谈区造型简约的艺术装置吊灯,环动的灯光与古人流觞曲水有着异曲同工之妙,仿佛在洽谈区这个大园林中,也参与了一回古人的风雅趣事。






我们将室外的绿色引入洽谈区,方寸之间,让奔波于城市中忙碌人群能拥有一片远离城市的喧嚣,收起浮躁内心的宁静之地。同时特意将幕墙前的空间留出,让室内空间充分与户外园林交互,身心与自然交融,让灵魂在此刻享受片刻的放松与自由。旋转楼梯为一层与二层的媒介,由一楼初步洽谈空间转为深入洽谈区域,独具心思的艺术装置让空间更为精致,家具的材质,地毯的自然肌理呈现出尊贵的体验感,让人感到舒适与身份的双重满足。





