 
 
 
 
他以其独栋住宅的建筑和室内设计的卓越品质而在巴伦西亚建筑领域独树一帜,它对每个客户的具
体需求做出了完美的回应,在每一个案例中都体现出独特的建筑风格,但有着共同的对细节的极致追
 
 
 
 
 
 
 
 
 
 
 
 
 
 
 
 
 
 
 
 
 
 
 
 
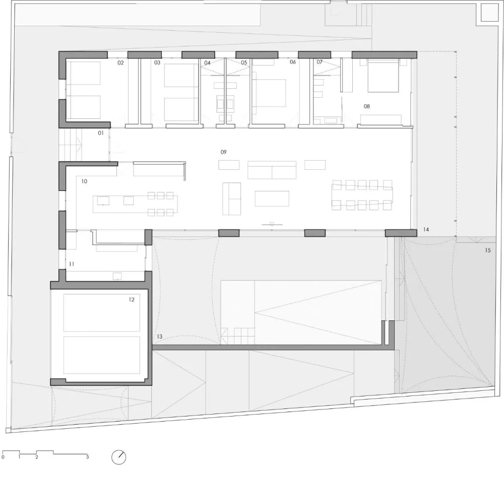
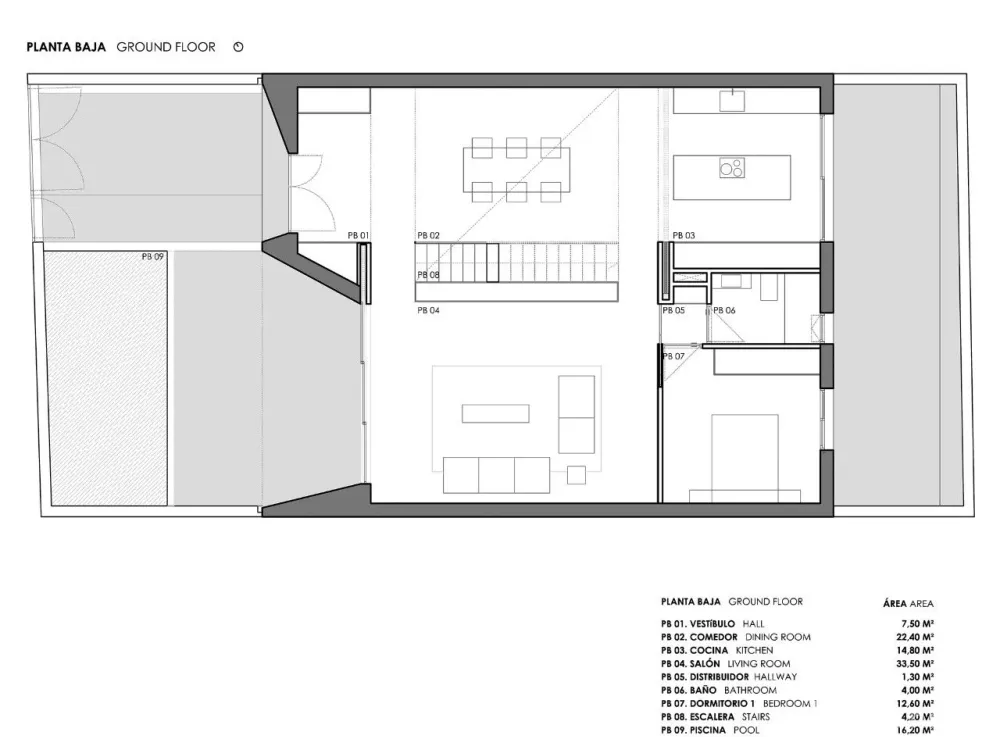
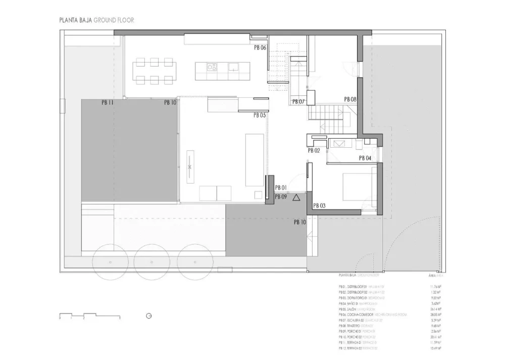
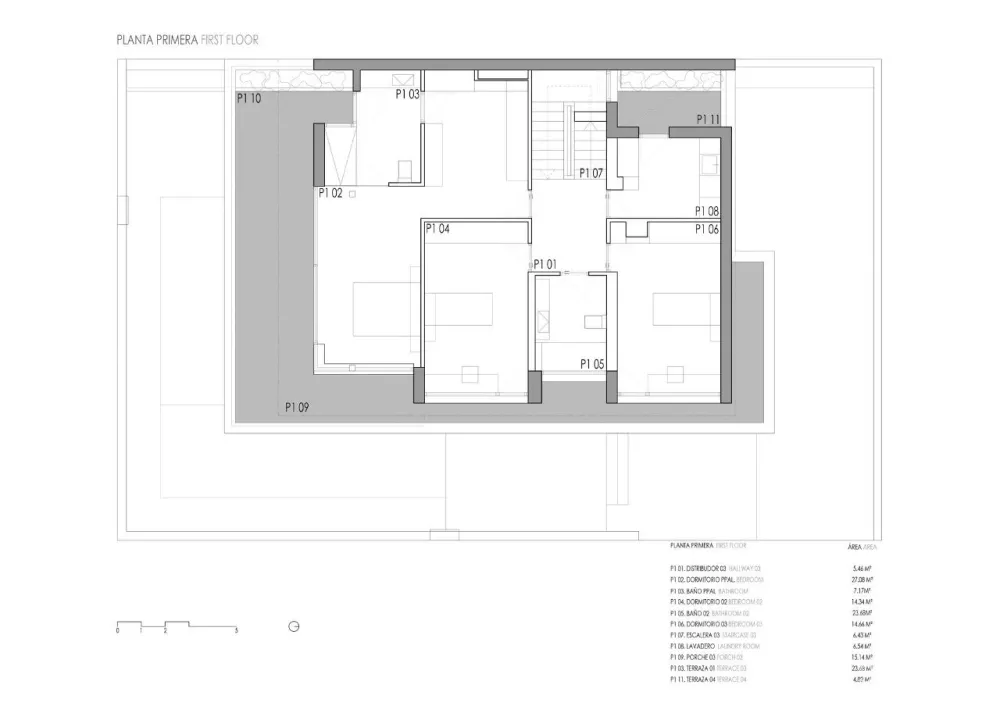
建筑从来都不是一个抽象的概念,而是在特定的环境中实现的一个非常具体的形态现实,它涵盖了客户的诉求,无论如何,该项目必须满足客户的使用功能、空间和成本需求,才可以做出完美的作品。
 
 
 
 
 
 
 
 
 
 
 
 
 
 
 
 
 
 
 
 
 
 
他们的理念是创造超出客户期望的空间。项目的质量与成本无关,而与项目的设计有关。一个好的设计更多的是在特定的条件下试图达到最好的状态。
 
 
 
 
 
 
 
 
 
 
 
 
 
 
 
 
 
 
 
 
 
 
 
 
 
 
 
 
 
 
一个项目的成功在于与客户和专业团队的合作,他们都有着共同的目标。一个由建筑、城市规划、结构、设备、室内设计、工业设计等方面的专家组成的团队,营造一个共享创意、激励人心的环境。
 
 
 
 
 
 
 
 
 
 
 
 
 
 
 
 
 
 
 
 
 
 
 
 


