住宅北侧外观 ©Hiroshi Tanigawa
项目基地位于Nagakute市郊地带的一个历史悠久的住宅区内,毗邻着名古屋。住户在观念上较为保守,希望拥有一座由清水混凝土打造而成的住宅空间。因此,建筑师在室内空间中采用了白橡木材料。入口到起居室的距离被刻意拉长,平面布局强调了室内的层高。起居室向东侧的外部环境打开,配合着白橡木窗框,限定出一个如画般的框景。
▼住宅东侧外观 ©Hiroshi Tanigawa
▼住宅东侧外观近景, 采用白橡木窗框 ©Hiroshi Tanigawa
▼住宅东北侧外观,由清水混凝土打造而成 ©Hiroshi Tanigawa
▼住宅北侧外观 ©Hiroshi Tanigawa
▼住宅入口,到起居室的距离被刻意拉长 ©Hiroshi Tanigawa
▼通向起居室的楼梯 ©Hiroshi Tanigawa
▼起居室,清水混凝土墙体与白橡木地板相辅相成 ©Hiroshi Tanigawa
▼开放式餐厅兼厨房 ©Hiroshi Tanigawa
▼餐厅兼厨房享有室外景观视野 ©Hiroshi Tanigawa
▼起居室,向东侧的外部环境打开 ©Hiroshi Tanigawa
▼起居室沙发细节 ©Hiroshi Tanigawa
▼起居室 ©Hiroshi Tanigawa
▼室内楼梯和盥洗室 ©Hiroshi Tanigawa
▼二层寝室空间 ©Hiroshi Tanigawa
▼空间细节 ©Hiroshi Tanigawa
▼门把细节(左),灯具细节(右)
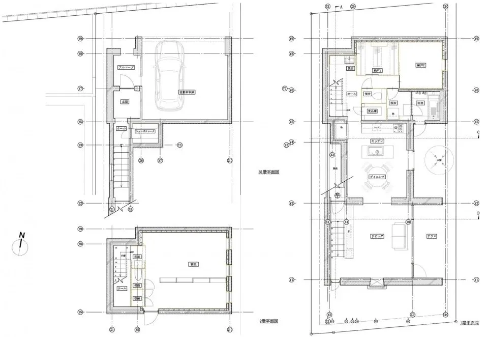
▼平面图 ©Tomoaki Uno Architects
▼立面图©Tomoaki Uno Architects
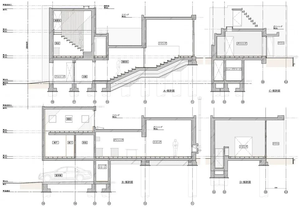
▼剖面图 ©Tomoaki Uno Architects
Project Name: Sagamine House Architecture Firm: Tomoaki Uno Architects Completion Year: 2016 Gross Built Area: 153.27m2 Project location: Nagakute, Aichi Pref, Japan Lead Architects: Tomoaki Uno Photo credits:
Hiroshi Tanigawa
, Yasuko Okamura

