/ When you travel, the stimuli you receive are more intense because you are more open to them. You also feel a sense of solitude that leads you to capture more intensely. It is hard to work in your usual environment because your experience of everyday knowledge somehow exhausts the surprise factor.
—— Álvaro Siza /
1933年6月25日,Álvaro Siza(阿尔瓦罗·西扎)出生于葡萄牙北部的Matosinhos。1949-1955年在波尔图大学建筑学院学习,1955-1958年在Fernando Távora事务所工作。
Siza原本的职业理想是雕塑家,但在彼时的葡萄牙,雕塑家属于收入较少的职业,他的父亲并不支持他的雕塑家梦想。他最初考入了波尔图美术学院的雕塑专业,但为了避免与父亲的争吵,二年级时他便转入建筑专业。Siza的建筑空间总会给人带来意想不到的体验,但其形式并非为了取悦视觉,更多来自于对于相关事物的诠释和呼应,例如地形、历史中的物质要素、场地上的特征物以及动线的创造等;而且这样的形式自由是建立在功能组织完善的基础上。
文章较长,不想看文字的话随意看看图就好。
A. Boa Nova Tea House 1958-1963 / 2014
Casa de Chá da Boa Nova
位于Matosinhos的海边茶室可以说是Siza的第一个建成作品。项目最初由他的老师Fernando Távora在1956年通过竞赛获得,但Siza并不满意最初方案并提出新的方案。后Távora将其转交给Siza,自己便出门旅行了。建筑中的诸多细节可以看出Alvar Aalto对Siza早年的影响,以及他对于建筑和场地关系的理解。
2014年,Siza对建筑进行了修复,将其由茶室转换为餐厅。在更新过程中,Siza认为其早年的作品还有很多不成熟的地方;但因为各元素之间有着内在的联系,只要更改了一处细节,它将引发一系列的变动,最后改变整个设计。因此他选择不加过多更改,保持建筑原有的设计,主要集中于材料更新以及家具的复原等。
在进入建筑前,Siza用挡土墙创造了一条迂回的向上流线,最初视线会被墙体遮挡,随着观者的向上,海平面逐渐在眼前铺开,再一转身便看到红瓦白墙的建筑安静坐落于礁石之中。建筑主体为两层高,为了最小限度改变原有的场地地形,餐厅与茶室被置于地上,嵌在礁石之中,为了使建筑高度降低,厨房则埋于地下。
建筑的屋顶出檐深远,且檐口压低,几近触碰到周边的岩石,建筑看起来似乎匍匐于岩石当中。建筑的外观一定程度呼应了葡萄牙的传统建筑,包括红色的抹灰墙面、红色瓦片以及烟囱状的体量,烟囱顶部锯齿状的形式在波尔图郊区随处可见。
从室内来看,Siza常用不同位置的窗口来创造一种视角的重叠,同时利用控制线引导视线,将建筑内外不同的部分联系起来,使观者可以感受到多个空间的同时存在。在入口处,观者从压低的屋檐进入建筑内部,人的视线一瞬间变得开阔,中间这一空间是左侧茶室与右侧餐厅的连接门厅。在与视线平视的位置有一长窗,可以直接看到海平面,往下的大窗仅仅指向海边的礁石,而屋顶的天窗投泄下来的柔和光线暗示了天空的在场。入口的空间里,Siza利用了三扇窗户,将周边的环境分开并同时呈现,如他本人所描述,他希望在这个建筑里人们通过窗口只能看到环境的一部分,但并非全部。
从入口往下进入餐厅的楼梯与旁边的墙壁略微脱开,并在平面上倾斜了一定角度,指向下部大窗旁的门扇。走下楼梯后左转进入茶室,茶室的三面开窗方式均不相同。
右侧为低矮的水平长窗,前方的窗户有着复杂的几何分割,透过左侧的高窗可以隐约看到远处的灯塔。三种方式均有一定的引导性,试图通过开窗来强调景观中的局部,只有坐在椅子上才能同时从三处看到大海、礁石与天空。但是与入口处的并置相比,此处的做法固然可以强调三者的在场,但致使开窗过于复杂,观者似乎同时收到了三条指示性的命令。
受到Alvar Aalto的影响,餐厅内的材料多为木材,主要是红色的桃花心木,创造出一种温暖的氛围。为了在建筑中形成一种新与旧的平衡,除了代表传统的木材外,Siza也选用了混凝土作为柱子的材料,同时也是其主要的结构材料。天花板与柱子的交接处,木材被作为一种装饰材料,锯齿状的细节表示着Siza对于传统的回应,但他在后来的修复中表示现在并不喜欢这样的处理方式。
在北侧的餐厅中,面海的落地窗可以完全下降藏入地下,在天气好的夏季,室内外的空间被完全打通。此处让我联想到了Geoffrey Bawa在Galle的Lighthouse Hotel,同样也有礁石上的平台,都朝着海面打开以将环境纳入建筑当中。但斯里兰卡的炎热气候使大厅可以成为完全室外的空间;由于高差的原因,住客乘车到达后需要通过楼梯向上走入大厅,奇异的楼梯给了住客足够的前序铺垫。同时,Bawa选用了有轻微反光的自流平地面,由于室内相对昏暗,加之大厅的面积较大,地面的反光仿佛被微风吹过的海面。当人从楼梯进入大厅时,一瞬间仿佛看到海水漫入了大厅内。而在Siza的房子里,压低的屋檐给予了视觉聚焦效果,人们的视线更多会停留在远处的海面。站在室外的平台上,还能看到不远处礁石上雕刻着Antonio Nobre的诗句。
▽ Bawa的Lighthouse Hotel
餐厅落地窗的对面有一系列高窗,从室内来看,分段的高窗间夹着与屋顶连为一体的通风装置;而室外看该位置却是连续的长窗。“假”的长窗是为了回应室内外不同的空间需求,Siza在解决室内通风时希望营造出有趣的光影效果,同时也需要考虑到外观的整体感,不破坏建筑横向延伸的匍匐姿态。
建筑中还有很多微妙的小细节强调材料或构造的交接处,例如壁炉石材与墙体、木地板的交接,窗户边框形式,室外屋檐的方向等。
或许因为这是Siza的第一个建成方案,因此一众细节堆积于一个小房子内。其中虽可以看出早年Siza的思维方式,但行走其间感觉各个空间稍显冗杂。
B. Quinta da Conceição Swimming Pool 1958-1962
Piscina da Quinta da Conceição
Quinta da Conceição游泳池
游泳池位于Fernando Távora设计的公园内,该公园位于1481年修建的圣母修道院的旧址,遗留的修道院回廊、大门以及喷泉散落在公园当中。
Siza将建筑放置于高地上,人们需要通过台阶逐渐深入建筑内部,仿佛进入某种隐秘的空间。以此将泳池与公园人群隔开,保证其内部功能私密使用。将建筑置于高处时,泳池里人们的视野中只有白墙背景下无尽的天空和柏树林。
C. Leça Swimming Pools 1961-1966
Piscinas das Marés
在Siza的早期作品中,墙体是重要的元素,墙体并非空间的结束,而是建筑与环境的边界。如同Martin Heidegger所描述的“边界不是事物发展的终点,而是像希腊人的观点那样,事物的存在从边界开始。”
在入口处,Siza对于流线进行了组织,他似乎总喜欢将重要的内容置于曲折的流线之后,给人以戏剧性的序列体验,同时也创造了城市与自然之间的过渡。
横向延伸的坡道增加了入口的深度,在城市与泳池之间创造了一个过渡的空间。坡道内的围合方式在人的行进过程中不断变化,使海面与天空不会一览无余,明暗的错落和空间的开合创造出宛如戏剧般的起承转合。
泳池包括靠海的矩形泳池和较小的儿童戏水池,其墙体的布局来自于地形的几何抽象,安然嵌于原有礁石中,模糊了海水与泳池的界线。
*泳池正处于修复当中,预计2021年左右开放
D1. Carlos Ramos Pavilion 1985-1986
Pavilhão Carlos Ramos
建筑位于波尔图建筑学院北部的花园内。建筑围合形成了一个梯形的院子,梯形的元素在Siza的建筑中常常出现,这样的空间会带来一定的性格,在此处的梯形使院子成为建筑的内部,也成为花园的延续。建筑的外墙采用封闭的态度,避免建筑的使用者受到花园里的人群和高速公路的打扰,而内院的透明界面为不同的教室创造了视觉联系。建筑背部的悬挑看上去似乎是形式操作,实际上是为了保护转角树木的根不受到建筑物基础的影响。转角处的凸出入口门厅暗示了建筑与周边场地中的新建筑的关系,即波尔图建筑学院。
建筑的立面元素组成了抽象的人脸,仿佛Paul Klee画中的抽象轮廓。这样的形象并非Siza有意为之,据他本人所言,或许在建筑中总会有些与人体的无意识的联系。
D2. Porto School of Architecture 1987-1994
Faculdade de Arquitetura da Universidade do Porto – FAUP
场地位于Duoro河边,其边界紧靠一高速公路。在波尔图,为了葡萄酒相关的种植业,河岸边往往会形成多层阶地;但这样的形式一延续到城市中就会被房地产项目粗暴地打断。因此在该项目中,建筑的排布尽可能尊重原有的地形,保留河岸边的阶地。
建筑体量分为南北两部分,从Siza的手稿中可得知体量的角度由场地周边的控制线生成,并形成了中心的三角形广场,两部分建筑在三角形的端点交汇,成为一系列建筑的主入口。北部主要为行政空间、礼堂、半圆形展览和图书馆,建筑体量被拆分为彼此相连的三个部分,连续的体量将学校与北边的高速公路分隔开来。南部包括学生教室与老师办公室,其空间处理与北部略有不同,五个独立体量创造了面向Duoro河变化的开口。但其间断的白色长条形式在视线上依旧保持了三角形广场南边立面的围合感,保证了广场空间的紧凑。
(来源:El Croquis 68/69 95 Alvaro Siza 1958-2000. Madrid: El Croquis, S.L., 2000.)
为了尽可能减少对于原场地标高的改变,将建筑嵌入场地当中,南部的独立体量通过比三角形广场低3m的长向走廊连接。此举保证了抬高广场上面对河面的南侧开口,也将功能连续的建筑连接成一体。建筑立面上悬挑的雨棚与西边的鱼鳃状墙体保护建筑不受到过多阳光的侵入,变化的开窗则呼应了内部空间的需求。有人认为立面的开窗与人脸有一些对应关系,猜测是否为Siza独特的幽默感,还有想象丰富者认为其中一个房子的立面来自于Siza的老师Távora,但Siza本人表示设计中并未有这层深意。同时,建筑的各立面与课程的安排也有联系。一年级学生的教室面对内部庭院,二年级面对社交空间,三年级面对河面;如此可以让学生面对不同的方向体验学习。
西侧建筑群的入口处,也是三角形广场交汇点的延伸处,亭子标记着入口序列的开始,室外的缓坡一直延续至室内,再与半圆形展览的坡道相连,引导人们走向具有“神圣”氛围的图书馆。图书馆内的阅览室采用了有仪式感的中心对称,位于中心的长条棱柱状天窗仿佛漂浮在空中,为室内提供了充足但柔和的光线,其竖向的轻微倾斜加强了房间的视觉深度。棱柱一直穿透墙体,连接了相邻的研究室。一明一暗的两个空间中,天窗都成为其重要的控制元素,营造出一种圣洁的氛围,在其中学习似乎都会多出几分强烈的使命感。
E. Church of Santa Maria 1990-1997
Igreja de Santa Maria
在当代社会,由于仪式的方式发生变化,某些新建教堂似乎已经被简化成内部设立了十字架的报告厅。而Siza希望能创造出拥有教堂氛围的场所,在过度抽象与过度解读中寻找到合适的方式来重新诠释传统的教堂空间,恢复其中人与空间氛围的联系。
该建筑所在场地周边原有一教堂,但面积较小无法满足当地居民日常的宗教活动需求,来该地曾多次尝试建造新教堂,出于各种原因一直未能实现。直到1988年新的神父到来,重建的话题又一次被提起。此时葡萄牙的经济处于极速发展的状态,政府也开始加强基础设施的建造。这一切都为新教堂的建设创造了条件。
当时的Siza因为修复里斯本的Chiado区域而闻名,同时1992年Siza刚获Pritzker奖,因此当地教区选定了名气正盛的Siza作为新建教堂的主建筑师。
/ trying to capture signs, points of view, references and anchors to help structure the building, creating unique conditions so that the architecture could belong on that site. /
建筑所在的Canaveses城内多为快速廉价建造带来的低质量建筑,文脉在此地显得格外模糊。而紧邻场地的是一条繁忙的车行道和一丑陋但直白的现代居住体量;且场地地形复杂,有多种不同的标高。面对这样的现状,建筑似乎需要建立一种新的秩序来重新整理与周边的关系。
为了解决场地复杂的高差,Siza将建筑布置在两个主要标高,分开设置入口。高处为教堂的主入口,较低标高处为殡仪礼拜堂(mortuary chapel )。在仪式前,人们可以聚集在底层礼拜堂前的回廊里吸烟、聊天,用以抵消直接遭遇死亡而造成的巨大悲痛。
因为建筑矗立在城市高地的室外平台上,进入前人们会从较低的道路上仰望其全貌。此时位于高台上的教堂如卫城般,人们需要经历朝圣式的迂回台阶才可到达。这也是Siza一贯的做法,在建筑入口前利用路径埋下铺垫,仿佛正文前的序章,让人满怀期待并有所准备。
教堂最终呈现出的白色抽象体量为该区域创造了一个新的宗教中心。建筑的抽象体量与传统教堂形式迥异,Siza并未使用具有象征意义的符号来诠释现代教堂,但我们依旧能从抽象的几何形式中看到教堂的意向,立面上内凹的弧线与Borromini的四喷泉圣卡罗教堂略有相似之处。
白色的体量虽看上去圣洁,尤其在晴天时,建筑仿佛会消失在阳光中。但仅有这样的形式会与周边格格不入,建筑看起来过于轻飘,没有成为中心的力量感。于是,礼拜堂前的实墙与回廊将其与马路隔离开的同时,与平台连为一体,花岗岩建造的底层仿佛土地的延续,为教堂提供了立足于场地的基座。
上层平台中,教堂与一旁的教区中心形成了楔形的广场,面对远处的群山打开,成为重要的仪式区域。
教堂与周边的对话不仅仅限于其外部体量形式,在被看的同时,室内朝向室外的视角也同样重要。当人们在祈祷空间内坐下,视线会被右边的水平长窗吸引,进而看到远处起伏的山脉。只有天窗的封闭体量或许更像传统的宗教空间,但Siza认为教堂并不必须是一个完全与世隔绝的隐秘空间,他试图将这样的仪式空间与城市日常生活联系起来,而使用的人们可以选择各自的关注点。如同他在Colombia的Cartagena看到的教堂,教堂的回廊中的市场与人们的生活有着直接联系。
我们从教堂一侧的偏门进入中殿,当天是阴天,光线安静地蔓延至室内,整个空间安详而圣洁。
教堂西北侧墙为双层墙体,内墙为曲面,西侧墙体的顶端有巨大的方形洞口,光线均匀地漫射进室内,其形式与Basilica中殿旁的侧高窗有些类似。传统的教堂中,由于建造技术的限制,光线往往需要通过厚重的墙体进入室内,而如今的混凝土墙体在此会显得过于轻薄。于是Siza设计了西北面的弧墙,增加窗户的厚度,人们可以观察到光线如何漫射进室内。
祭坛后的两个洞口内一直通往下层礼拜堂的垂直通高空间取代了传统教堂的后殿,用缝隙与光线代替了后殿中的壁画,成为祭坛的背景。其两侧的弧形凹陷是传统半圆形礼拜堂的倒置,人们可以在室外的凹陷空间内停留交谈。
正立面上的两个突出体量分别是洗礼池与钟楼,洗礼池所在的通高体量顶部,光线通过侧高窗进入。此处使用了具有轻微不规则表面的手工瓷砖,会有特殊的反射光,瓷砖上的壁画表示着基督受洗的场景。在略微凹陷的洗礼池处,会有不断的滴水声,细微的滴水声使教堂内部显得更为安静。
教堂中的家具也是设计的一部分,受到Cathedral of Seville的影响,西扎放弃了长排座椅的想法,选择了带有跪台的单个座椅。在使用过程中,人们不断站起坐下的动作会让座椅形成一种微妙的状态,创造家具与身体和使用的联系。
F. Serralves Museum 1991-1999
Museu Serralves
塞拉维斯当代艺术博物馆
此处在20世纪30年代为Vizela伯爵建造,原府邸建筑在20世纪末期被作为展览空间使用。这座由Siza设计的新博物馆建筑位于原果园内,且独立于原有建筑。为了充分尊重原有花园的存在,建筑延续了原菜园内小径的的南北向轴线,南部不对称的两翼和北部“L”形体量形成了南北两个性格不同的院子。北部内院通过一条单面开放的廊道与城市道路相连,成为建筑的入口内部庭院;南部院子则向着花园打开,院子两翼端部扭转的体量使建筑渗透进花园当中。
为了更好地组织流线,建筑的门厅置于中部。与街道相接的入口处,人们沿着压低的廊道经过一开阔草地,通过一变窄的开口到达宁静的内部庭院再进入主建筑。这一序列将人们从喧闹的街道逐渐过渡到建筑内部,两个“门”状节点加强了这一序列的空间层次。前序的流线被处理成游园的小径,人们仿佛正在走进一座花园当中的展览馆。
北部的入口为场地的高处,建筑最终呈现顶部高度一致,向下嵌入场地中。此举使总面积较大的建筑物看起来并非庞然大物,建筑依旧像是“花园中的房子”。
Siza并未刻意区分常设展厅与临时展厅,他希望博物馆在不断保持活力时,其空间能为参观者带来一种连续的体验。悬挂式的天花板为展览空间带来了柔和的非直射光,屋顶似乎漂浮在空中,让人不禁猜测光的来源究竟是人工还是自然光线。和一般展厅一样,建筑物内的开窗较少,为数不多的开窗不仅仅是为了采光,也如画框般展示花园中的景色。
G. Bouça Housing Complex 1975-1978 / 2000-2006
在20世纪60年代初,葡萄牙已经出现了住房危机。此时葡萄牙政府不断将财政消耗在非洲的殖民战争中,加剧了国内矛盾,住房紧缺的情况也愈发严重。1974年4月25日,葡萄牙的部分中下级军官发起政变,推翻了当时的独裁政权,但也带来了两年混乱的“过渡时期”。在这一时期,葡萄牙的政府频繁更替,而SAAL正是这一过渡时期中政府试图解决住房危机而全面推行的政策。
SAAL是一项由政府出资、建筑师主导并强调公众参与的实验性住房改善计划。政府将负担住房建造1/4的资金,剩余的部分由居民组建的联合会向政府申请贷款,贷款每月分期偿还,偿还时间约为25年。在项目推进过程中,各地将设立“Brigade”作为民众与政府之间的技术沟通中介,同时居住者会参与到整个过程当中。在设计阶段,居民提出需求以作为建筑师设计的参考;建造阶段,SAAL推行“劳力资源”(sweat equity)的做法,居民可以通过自主建造来减少政府对于住房的财政支出并减轻居民自身的财务负担。但由于部分地区认为自主建造会影响建筑的建成质量,同时居民认为这是资本家对于他们的剥削,“sweat equity”并未顺利推行。
在SAAL开始后的两年,葡萄牙交替出现了六个临时政府,最终在1976年7月选举出了民主政府和新的内阁。新国家政府决定将SAAL项目交予各区域政府机关管理,这意味着原不受政治因素影响的“brigade”模式走向了结束。由于各区域政府受到了资本家们的影响,为了房地产市场的发展,SAAL中多数项目停滞,只有当时已经开始修建的项目才最终建成,但其建筑质量大多也不尽人意。至此,SAAL计划暂告一段落。SAAL虽未完全成功,但他无疑开启了人们对于革命后居住状况的思考,如何应对政治、经济巨变对于城市及建筑的影响,成为葡萄牙建筑师们实践的重要议题。
Siza设计的Bouça社会住宅正属于SAAL,在1970s仅建成原计划的1/3,三十年后才有机会将剩余的部分修建完成。
SAAL在里斯本与波尔图的情况有所不同。在里斯本,原有的工人聚集区多集中于城市郊区,新建部分多为多层社会住宅。而波尔图的工人聚集区一般位于市中心区域,俗称“island”,常出现在街区的中部和中产阶级住宅附近的空地等;面对中心城区复杂的周边环境,建筑师通常会基于场地特点与周边居住原型来推进设计,因此与普通多层社会住宅相比,波尔图的遗留项目才有了后期继续自主建造的可能。
面对中断了三十年的项目,Siza认为新修的部分应与原建成部分组成一个整体。但修建工作受到了一定的阻碍,此地的居民并不情愿“与世隔绝”的生活被打破,其主要原因是他们不希望此地的租金会因此提高。同时三十年过后,当地的居住需求发生了改变,涉及到第一阶段方案中并未考虑的问题,例如车库、新社会背景下公共与私密空间的分隔和新的住房规范等。
Bouça社会住宅的形式来源于当地的“island”,在“island”内最常见的是一种狭长的公寓住宅,单条体量沿街设有一个开口并深入街区内部,居住单元由走廊连接。Siza选用了这一常见的形式,在提高居住条件的同时用理性而简洁的体量回应了场地中的居住原型。每一条体量包括上下两种跃层户型;下层户型可从地面直接入户,也可以通过独立设置于室外的楼梯进入二层;上层户型通过三层的公共走廊入户,在四层设有阳台。除此以外,建筑群中红色的使用也来自传统“island”中常出现的颜色。
(来源:El Croquis 140: Alvaro Siza 2001-2008. Madrid: El Croquis, S.L., 2008.)
(来源:El Croquis 140: Alvaro Siza 2001-2008. Madrid: El Croquis, S.L., 2008.)
四条居住体量看似相同,其间的半围合内院性格却略有不同。两侧的内院为了保证底层入户的私密性,设定成草坪;中间由室外楼梯围合的内院则设定成活动的硬地,一直与北边的平台相连,两侧的室外楼梯也成为公共交往的空间,甚至可以想像人们坐在楼梯上边聊天边看着场地上孩童玩耍的场景。
为了维持住宅的“孤岛”状态,又不过于突兀,场地的各界面采用了不同的应对策略。场地北面一堵四层高的混凝土实墙将居住区域与Lapa站地铁轨道隔开,减少了一小部分地铁的噪音,并阻止地铁带来的大量人群从建筑群内经过。除此以外,混凝土墙的二层走廊也将分离的条形体量连接在一起。有趣的是,与铁轨平行的实墙和与场地平行的居住体量直接相撞,二者在体量上遵守着各自的原则,相交处的冗余空间通过内部的功能安排来化解。条状的居住体量面对南面的街道打开,在与街道的相接处,每条的端点上都设置了独立的公共设施,包括社区图书馆、洗衣房和商店,虽然现在功能已经发生了改变。这些独立的建筑仿佛句点,为街道创造友好边界的同时宣告着居住体量的结束。
这个原本为联合会成员设计的房屋却并不被接受,他们一度认为该建筑施工质量过差,质疑为何不在墙体上贴瓷砖,因为他们想要的是房地产开放商所展示的中产阶级住房。但它很受学生、年轻教授和新生家庭的青睐,在我们前往Bouça时还发现某些居住单元和设施用房成为了一些建筑事务所的办公之处。
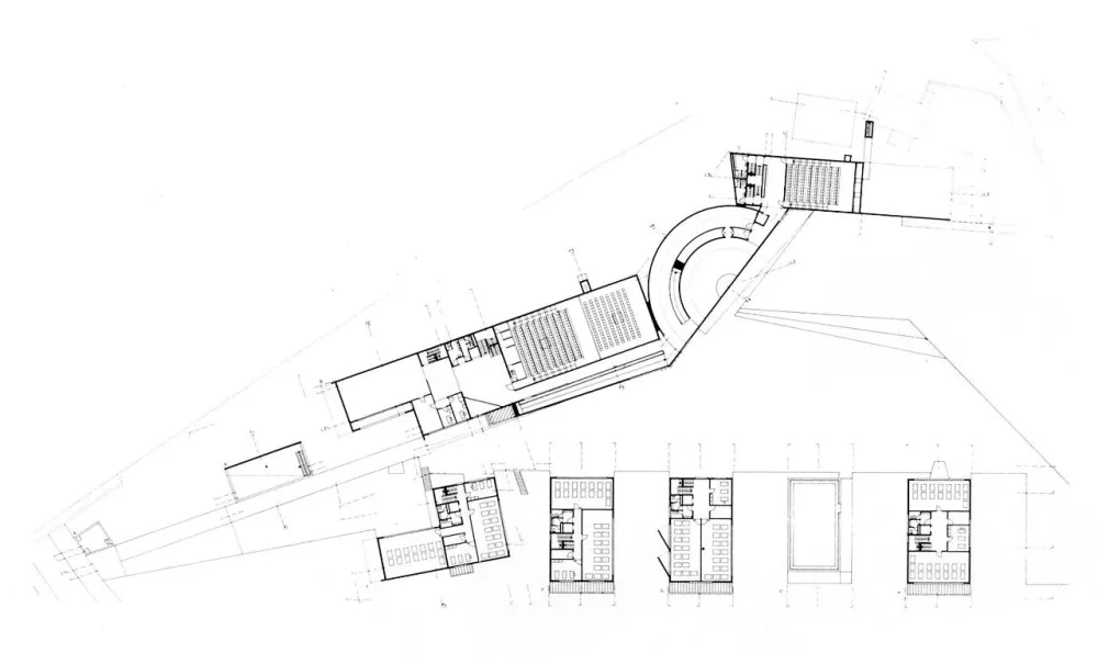
H. Setúbal School of Education 1986-1993
Escola de Educação de Setúbal
该学院位于里斯本南面的Setúbal,处于城市的外围边界。在设计的初始,考虑到东西两侧都有大量人流进入建筑,同时东西侧有着天然的高差,于是建筑的公共门厅被置于中部,两侧有尺度与性格均不同的两个院落。
东侧的教室与入口门厅形成了较大的内院,两侧的教室前的连续柱廊加强了院落的形式,其柱廊让人联想到Heinrich Tessenow的State School以及Giorgio Grassi的Student Halls。Siza采用了简化的几何体量,柱子的截面呈半方半圆,与光线通过柱子留下的影子有些相似,细长的柱子与薄水平屋檐减弱了和古典比例的相关性。对称的整体布局通过细节的不对称来消解,位于院子中心线上的栓皮栎树,以及两侧柱廊中不对称的柱子方向等。二层的阳台成为立面的水平分割,可以清晰地看出二层的高度高于一层,以此来反映二层为主要层。
院落北部为剧场、音乐室和体育馆,Siza为了适应不同尺度的空间要求,选择以强烈的院落形式为基础,将变化丰富的体量置于建筑外侧,建筑呈现出蔓延至场地内的姿态。西侧的院落较小,根据地形而略微抬升,该院落北部的建筑体量与主体建筑略微分离,形成了从辅助入口到门厅的一条小的路径。
学院的东南侧有一轨道交通站,会有大量的南北向穿越人流,Siza便顺势在靠近轨道交通站的一角设置了一条红色墙面围合的走道作为前序,东侧的独立亭子作为入口,引导人流从侧面穿越学院的公共庭院。屋顶的缝隙强调了亭子与主建筑功能上的脱离,亭子内部的支撑柱为圆柱,亭子南侧入口左侧及其对角线端点为方柱,在靠近庭院的一侧还设立了一根倾斜的圆柱。端头方柱回应着倾斜圆柱,使亭下成为动态的空间;斜柱仿佛箭头,而方柱正是箭头指向的端点,暗示了亭下空间的结束与一段新路径的开始。屋顶的下凹似乎是为了与对面屋顶形成对位关系。
I. Portugal Pavilion 1995-1997
Pavilhão de Portugal
葡萄牙馆位于里斯本1998世博会的园区,由于场地的特殊,在设计的最开始Siza仅有一些模糊的概念:拥有一定秩序的覆盖空间,与邻近的Tagus河有所联系。
基于功能的需求,建筑设定为两个主要部分,一个可以容纳仪式活动的室外空间和一个具有展示作用的室内办公空间。在与工程师商量之后,室外空间最终由20cm弧面混凝土屋面覆盖,其内部由钢筋张拉,两侧厚重的基座承受屋顶的作用力并帮助建筑抵御风和地震荷载。基座墙体与屋顶的交界处连接钢筋直接暴露出来,可以为屋顶减弱因地震带来的振动,也使光线能进入覆盖下的空间。两侧的柱廊提供了一些小尺度的公共活动空间,柱廊的封闭强调了覆盖空间的方向,并围合中心空间。具有重量感的基座与帐幕般的屋顶形成的开放空间与水面有着微妙的互动,似乎呼应了世博会的主题“The Oceans: A Heritage for the Future”。
在葡萄牙馆中我们可以发现一些矛盾却又稳定的关系。例如建筑中轻与重的对比;联想到Siza在Canaveses的Santa Maria Church,无论是通过材料或是结构来实现建筑的“轻盈”都需要对应的“力量感”;尤其对于此类具有纪念感的建筑而言,他们已经成为了某种象征,他们需要通过一定的方式稳固于地面之上。此外还有对称与对称的消解;看似对称的葡萄牙馆中,Siza利用柱廊的韵律为严谨的对称空间创造了一丝活力,此举与他在Setúbal College of Education中的设计相似。
/ The ambiguity which I feel is psent in this building is not the result of an attitude. It comes from observing and going into a real ambiguity which exists in the project itself, as well as in a moment in architecture. Ambiguity is a result, not a wish. /
在滨水区域, Siza用直接的结构语言创造了面向水面打开的柱廊,连续的石柱兼顾了透明与纵深感。在葡萄牙馆旁边的花园里,一系列平行的矮墙提供了穿越花园的不同路径,并加深了空间的层次。
在每个设计的开始,Siza通过回应建筑所在环境和相关问题,来让建筑自然地生成。在这过程中,他总是试图为传统的文化、空间寻找新的诠释方法。其地域性的思考往往会被人以“地域主义”一语概括,但事实不能以如此简单的方式去理解,我们应该更加微观和具体地去分析各建筑所呈现的最终结果,包括场地、人的行为、亟待解决的问题和文化等。Siza并没有一个预先确立的风格,也不依赖于某种特定的类型或者形式,而是用基本的元素与语言来实现空间的层次变化,以达到他认为在场地上最合适的状态。
除了场地上的元素外,其他相关的文化、场所也会影响设计的最终呈现。Siza曾说过去的经历对于他的设计有着重要的影响,“I do not set out to create something ‘new’ for its own sake, and it is evident that memory plays a crucial role in my process of invention.”他认为自己所做的并非创造新事物,而是从记忆和潜意识中转化已有的事物。因此他建议其学生,若条件允许应多亲身前往实地体验,只有在场才能真切感受到空间的氛围、序列,并了解到空间形成所依赖的物质元素及其材料。

