本项目是位于西安的一套顶层复式公寓,由HAN 设计工作室设计。
在大唐芙蓉园景区附近,一位演员购置的家就在这个中国现有的典型小区建筑中,就在景区路线旁。
设计灵感来自东方的宁静,挖掘客户深层精神需求,旨在打造一个让人舒缓灵魂和摆脱城市生活烦恼的住宅空间,“HOME BACK HOME”的回归让客户和设计团队达成共识,希望这个家抹去无意义的装饰,低干预痕迹设计,剥离表象,直达质朴的本质。极简的纯粹生活,意味着过一种精挑细选、真正成熟的生活方式。
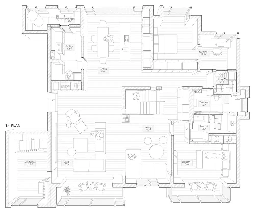
以中空的客厅延展设计情绪,限制内的色彩和材质关系将功能有机的统一。巧妙的塑造各楼层的机能空间,恰如其分的营造出生动、不俗的居住氛围。位移的楼梯重新定义了格局,走廊和客厅之间的大部分墙壁被拆除,以建立贯穿公寓的视觉轴,通过干净的线条和中性的白色墙壁凸显空间的流动性。首层除会客、起居、餐厅及附属功能外,是以两个未成年孩子的生活为中心,有适宜高度的儿童活动室,独立的卧房及贴心设计的儿童独立双卫生间,在受限颇多的原始结构中将功能和布局运用至恰到好处。双起居室其中层高较低一间兼作投影室,顶部隐藏着家庭电子设备。中西厨分开的西厨配合餐厅,为社交烹饪提供了充足的空间。
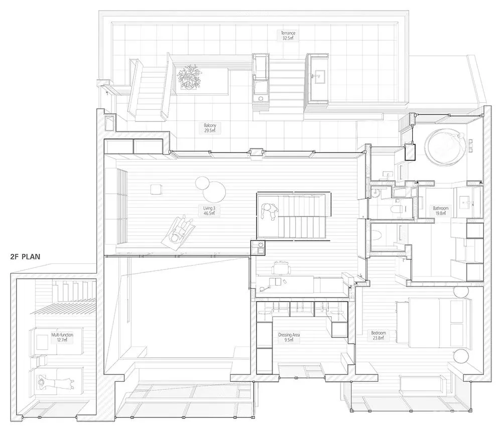
上下楼之间的空间具有视觉上的连续性,空间由大面积玻璃连接起来,新的过渡空间和中央楼梯确保了垂直的视觉和界面连接。
二层以主人房套间为核心,阳光下的卫生间和书房更好的利用了顶层的位置优势。各个空间内克制的材料应用,再次体现此次低干预痕迹设计和“HOME BACK HOME”的精髓,和谐简要的还原家居本质。
简约和舒适是这间公寓的属性,豪华被重新定义,并通过内敛的设计得以体现。
随着接触的视界越来越广阔,我们的一生会经历很多次审美和功能的革命,每个阶段对物件的主观看法也会不同。有过浮夸,或者空无一物“HOME BACK HOME”让这些都成了一个家所有成员审美的平衡点。 主要项目信息 项目名称:西安现代风格公寓(F14) 项目位置:西安 项目面积:320㎡ 项目类型:住宅空间/极简主义公寓 设计时间:2018 完成年份:2019 主创人员:韩越 刘平岗 设计公司:HAN 工作室(Xian) 联系邮箱:hanstudi0@163.com 配合单位:苏坊装饰 摄影:任东

