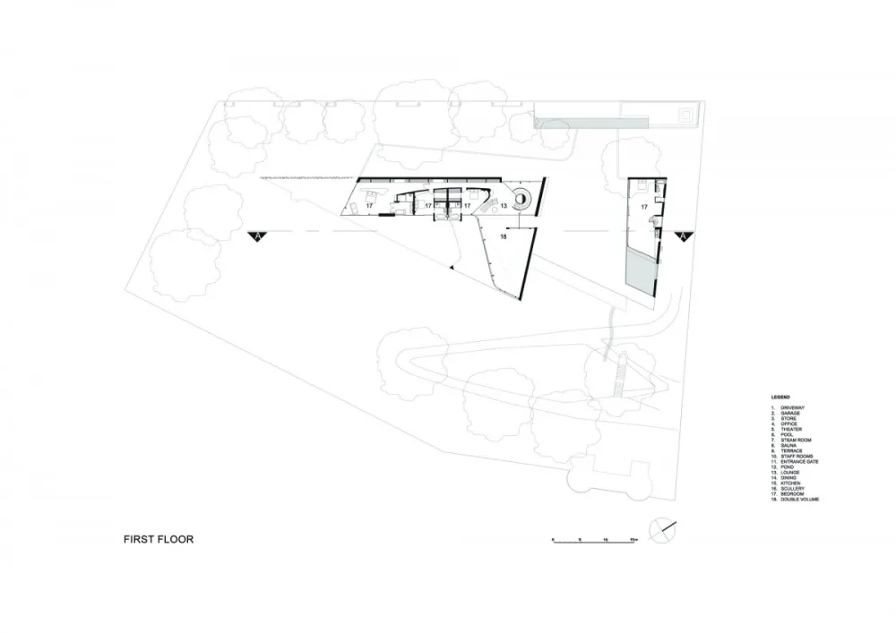
这个位于日内瓦湖岸边的家庭住宅和办公室,由SAOTA设计的建筑和ARRCC设计的室内,是为一位在瑞士的成功塞内加尔商人设计的。该住宅借鉴了业主的遗产,在其雕塑形式、材料和纹理质量方面推进了一种新兴的非洲灵感美学。引人注目的湖滨基地的三角形形状,加上严格的规划参数和禁令,对设计施加了相当大的限制。回应是从基地的三角形足迹雕刻建筑形式,并创建一个圆形边缘立方体和三角形块体的“Reductive”雕塑设计。
对于ARRCC的主管Mark Rielly来说,这种大胆的形式直接影响了他的室内设计。与业主密切合作,Mark采购范围广泛的南非和国际装饰和家具品牌。Mark说“当代建筑空间定义了设计方向,产生了一种现代的方法,为装饰选择了不同来源的品牌。”



现在这个浮躁的世界,能细心整理一些东西发上来的越来越少了。要么就是敷衍的图片,要么就是枯燥的文字。之后就是AI生成的预制菜类的打包便捷快餐了。感谢楼主的分享,让我能在大智能无人化来临之前,看到同类发出的项目。有幸与您互动,缘分2
是不是一直复制,人就会变懒,变笨,第一次的复制粘贴,可能还略带羞赧,第二次再复制,内心的自责就少了一分,第三次毫不犹豫的ctrl+v 是那么的心安理得。回头一看,重复的留言已经700多条了。心安理得么?得到了什么呢?
人生本就短暂,走了除了家里三代人能记得,谁有会记得谁呢?反倒是这数字世界会多多少少留下我们的印记,然而周而复始的评论终究无法让人看上一眼,注定成为网络垃圾。
宝剑锋从磨砺出,梅花香自苦寒来。
重复的点评论做任务,发现已经开始有已经评论过的帖子出现了,越来越频繁。看到自己千篇一律的水贴突然感觉很羞愧啊。再这样下去,给我水贴完成每日任务的帖子就不多了。