这个项目位于美国纽约的切尔西市
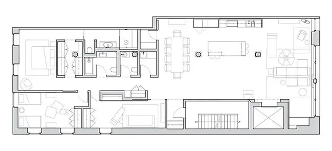
整个阁楼部分面积为 204 ㎡
建筑部分的翻新和设计由 Worrell Yeung 负责
室内设计则是由 Colony 的 Jean Lin 策划
这是一个充满艺术气息和设计感的项目
设计师保留了建筑内的一些原始结构
宽大的木柱和横梁承载着满满的历史
私人的区域被集中在公寓的北侧
使得公共空间能够拥有最充足的采光
公寓内使用了经过回收的古董松木地板
Noguchi Akari 吊灯的搭配恰到好处
多样的几何形状中和了强烈的建筑线条
起居室中央放置有藤编的 Cassina 茶几
古老的摩洛哥地毯增添了丰富的纹理
中性色调带来无与伦比的平和感
公寓内还放置了许多业主的收藏
画作与雕塑为整体的艺术感做出了贡献
厨房占据了公寓的中心位置
巨大的水磨石岛台十分醒目
黑白灰的配色稳重而优雅
岛台两旁还设置了吧台区
厨房内包含了大量的储物空间
整个灶台也嵌在墙体里面
上方的橱柜做了倾斜的设计
Marcel Breuer 设计的经典悬臂椅
经典的现代气息扑面而来
一旁的白墙用大胆的抽象画进行装饰
填补了空间内大面积的空白
上方内置的圆形顶灯简约却不单调
边上的衣帽柜也非常实用
也包含了大面积的储物柜
卧室内依旧保留了宽大的木梁
不同大小的艺术画彰显出业主不俗的品味
带有纹理的背景墙消除了单调
黑色的床头灯通过反射光散发出均匀而柔和的光线
卫生间内用玻璃隔断进行干湿分离
石材的运用从地面延伸至墙面
与灯带搭配起来十分和谐
儿童房的设计也比较简约
选用了充满童真的多彩家具
这样等孩子长大也便于更换风格
公寓内包含另外两个卫生间
其中一个铺贴了大面积的明黄色瓷砖
而另一个小卫生间则以暗色调为主
墨绿色大理石台盆质感十足
上方的不规则吊灯也让人眼前一亮

