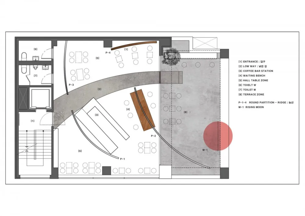
 位于韩国的水原一家极简主义餐饮空间,由当地的室内设计工作室Studio Maoom设计。这是一个描述城市里的旅行者寻找失去的童真故事的项目。日常生活的梦想像一个童话故事,因此人们首先绘制不同的情感和词语之间的空间,然后再思考艺术家Jiyoung Park的画作《路径》(path)。
       位于韩国的水原一家极简主义餐饮空间,由当地的室内设计工作室Studio Maoom设计。这是一个描述城市里的旅行者寻找失去的童真故事的项目。日常生活的梦想像一个童话故事,因此人们首先绘制不同的情感和词语之间的空间,然后再思考艺术家Jiyoung Park的画作《路径》(path)。














Studio Maoom | Cuore Espresso Cafe , 旅行者的归处
                
    位于韩国的水原一家极简主义餐饮空间,由当地的室内设计工作室Studio Maoom设计。这是一个描述城市里的旅行者寻找失去的童真故事的项目。日常生活的梦想像一个童话故事,因此人们首先绘制不同的情感和词语之间的空间,然后再思考艺术家Jiyoung Park的画作《路径》(path)。
            
                版权声明:本文内容由用户自行发布上传或投稿由设计芝士代为发布,版权归原作者所有,设计芝士不拥有其著作权,亦不承担相应法律责任。如果您发现本站中有涉嫌抄袭或侵权的内容,请点此提交工单进行举报,一经查实,本站将立刻删除涉嫌侵权内容。
    

