编译:专筑网王帅,小R
用玻璃和石头装饰的爱丁堡别墅
Archer Braun建筑事务所在爱丁堡翻修了一栋维多利亚风格的别墅,建筑师在建筑上增加了红色砂岩包层的釉面扩建部分。
扩建的部分被命名为爱丁堡亭,它与原有的B级建筑形成强烈的对比。
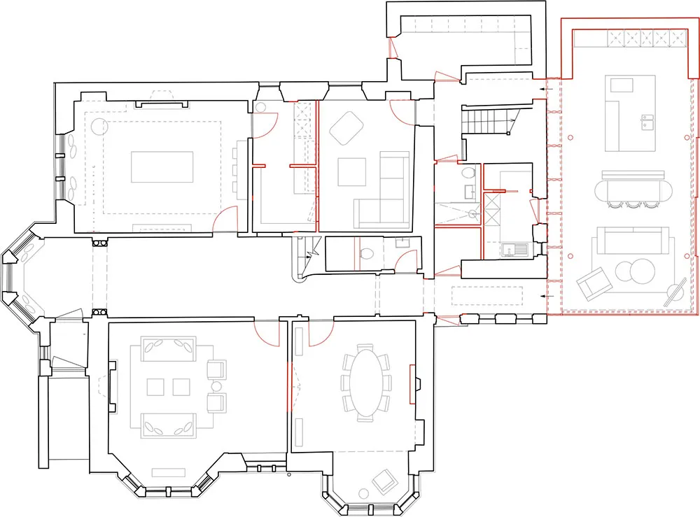
主建筑内部为一系列正式的房间,这些房间装修得很好。 Archer Braun事务所设计的部分是一座通体空间,没有隔墙。
延伸部分的北侧外面覆盖着坚硬的科斯山丘石,这是一种红色的砂岩,在苏格兰的许多建筑之中都有应用。 这种砂岩在原有建筑的石瓦和屋顶瓦上都能找到。
建筑师说:“当代的石雕作品重新诠释了传统的石匠技术在现有建筑上的应用。” “扩建亭子的一个立面被打磨过,而亭子的侧面和后面是原砂砾的感觉。”
精致的红色金属元素构成了扩建部分的釉墙框架。 扩建部分的结构被钢柱包围,这样可以保持空间中心的开放。
由玻璃和金属制成的侧面连接到现有住宅的东立面。 新的扩建体量限定了原来的石墙和门。
在扩建部分的南面是中央走廊,它是进入新生活区的通道,是这座富丽堂皇的主建筑的中心轴。 建筑师使用了现代轻型配件,还有一个海湾型窗口座位区。
简单的白色天花板强调了现有的石墙和新金属结构之间的对比。 对于现有住宅内部的调整有助于合理化其布局和改善房间之间的连接。
扩建部分的内部布置着简单的餐岛、餐桌和沙发。 玻璃墙上的推拉门让扩建部分与周围的花园畅通无阻。
建筑外铺着石头地板,既形成了露台,又可以作为道路,道路延伸向树篱遮蔽的花园区域。 Archer Braun事务所由Stuart Archer和Sarah Braun创立,该事务所在伦敦和爱丁堡设有工作室。 Tasmanian事务所Bence Mulcahy最近在斯图亚特山的一座历史别墅上添加了一座钢结构玻璃屋子,手法极其相似。 摄影:David Barbour
项目信息: 建筑设计:Stuart Archer 和 Sarah Braun 执行建筑师:16X 承包商:Elite Property Solutions 工程设计:SDC 景观设计:The Landscape Lady 室内设计:Hen and Crask 录像:James Morrow


现在这个浮躁的世界,能细心整理一些东西发上来的越来越少了。要么就是敷衍的图片,要么就是枯燥的文字。之后就是AI生成的预制菜类的打包便捷快餐了。感谢楼主的分享,让我能在大智能无人化来临之前,看到同类发出的项目。有幸与您互动,缘分。