多元且国际化的设计创意,敢想、敢做、做到的作风
发起全球设计界一个又一个的冲击
历年来,获得近70件国际设计大奖
引领华人设计走向世界舞台绽放耀眼光芒
The CEO designer Tommy Wang concentrates his design
on the relationship between men and environment
Sophisticated textures.
Listening to the nature sound. Observing seasonal changes.
地理位置Geographic Location
河流是一座城市的幸运,浩荡的江河
更是一座城市的福祉。即便是在流离中
我也总要寻求被这种福祉荫被,若有人邀我去他的城
我必然问一声:“你那里有河么?是否宽阔?”
——韩松落《怒河春醒》
这里的风吹起来特別温柔,那是一种很在地的浪漫。项目位于竹北头前溪前,因地势南北低,西北临海峡,形似「喇叭状」,这样的「风口」造成一年四季多风。得天独厚的环境也为生活带来了记忆。让风轻轻的吹拂脸庞,溪水从雪山缓缓而下,滋养著大地,缓缓步行水岸边,感受波光粼粼。近10年来人口快速成长,除了邻近竹科、高铁等地利之便,更吸引人的不仅是工作机会、生活机能和品质,更是这ㄧ片土地的美好。设计师意图通过风与河建立空间与在地文化的特性关联。尝试以作为切入点自然中的「动与静」结合,宛如河道的曲线 似风的云淡轮廓。
不曾 但看木叶舞枝头 便晓风穿过 谁曾见过风?
你我皆不曾 但看万木垂梢首 便晓风吹过。
寓所空间Residence
Living Room
境迹LEE HOUSE位于新竹县竹北市头前溪水岸第一排,临水而居的姿态坐拥美好的山河,享有城市无法复制的人文气质。远观光景,悠然辉映;近观时光,内敛优雅。设计师王中丞希望延续感知形式,让生活成为向往的轮廓。
LEE HOUSE的概念是创建一个「动与静」流通灵动之宁静与平和。项目中最重要的两个意象弧与线,分別用在了天花板和各种家俱陈设上。既保留艺术性,又包含了人文气质,不同轴向的流线梳理出戏剧性的变化。
揉合简约、慢活,把生活过成诗,才是最高级的仪式感。
美好的大理石被赋予了一种摩登精致的面貌,搭配简约低调的金属柜脚,呈现艺术层次的质感。在细节里总会找到一种感动,是我们生活方式的缩影,也是一门美学,更是一种文化。
异材质碰撞出料里的酸甜苦辣,水泥纹透露著朴实气息,如同食物的「原形」,来一场视、听、味、嗅、触的五感体验。不同材料有着对比与碰撞,色彩上通过深浅制造出不同功能的空间范围。
「若从美学的定义来看「感官」就如同视觉、空间的感受、艺术的欣赏等直觉,而情感讲的则是内心层面。」。他说,融入感动的元素这才是‘居’的第一层要义。
「弧」,圆润的包覆著空间中的故事,诉说着与众不同的场域,创造出立面视觉的跳跃感
墙面采用了大面积的留白,运用矿物涂料镘刀涂抹,拉出山水般的飘逸轻柔,手作的精细搭配深色木门纹路同时带来更多温润感,材质与材质之间进行美学上的交流,擦出纯净、自然、质朴氛围 。
餐厅保持理性而精简,强调一种简的高级感,不增加多余无用的装置,餐桌与电视墙对话,沉浸在自己的世界里。
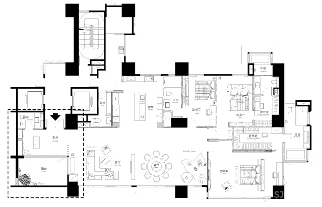
Entrance-Balcony
「线」,俐落的穿梭著时光中的横与纵,非等距排列或疏密变化,勾勒出可塑性和稳定感。
窗外上演著四季的一片静谧,挹注著漫漫日常。如诗如画的一片景,都收藏在时光的口袋中。人和环境的关系透过光的仪式感,创作最适合当下的感官设计。这里是王中丞认为的居的另一层要义,一种回归的原味。
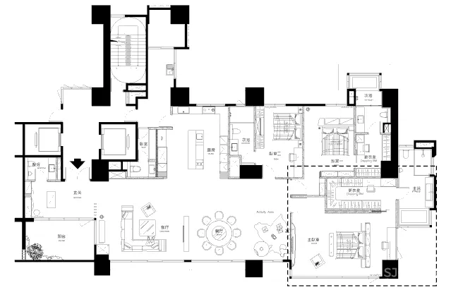
马鞍皮与车缝线演绎著隽永的订制感,平添一种奢华简约,处处显露著材质混搭的精工。每一个缝线和皮料都经过时光的工法有所呈现,有柔有刚的压条与皮革优雅体现在细致的线条与细节上。臥室空间,床头柜墙的另一侧被设计为为书房空间,让其具有足够的开放性,即能满足阅读功能。融合了展示格、书籍收纳层架以及抽屉,并加入亮橘点缀,营造视觉的惊喜和动感。
主卫的设计,整体采用浅色为基调,简约大器之中不乏考究匠心,安放灵魂的所在。大量使用的石材,本质与纹理让生活更加接近一种原的状态。
让我们享受人生的滋味吧。如果我们感受得越多
我们就会生活得越长久。——(法国作家)法朗士
人字拼接不同颜色的深浅,增加了空间的动感,另外各种家具天花和曲线的结合,也寓有着别样的气质。不规则曲线的半腰床头板墙,将睡眠区与阅读区分隔出来,引窗外天光至此,善利用转角处创造床头光。以圆曲线造型规划出衣柜,曲直互补增加了臥室柔和,空间流动互相呼应。
细节处展现出轴向之间的线条与量体切割呈现丰富的变化,透过比例、排列、交织、延伸,赋予每一条框线可简约,可繁细,也可以温柔。线条与生俱来的强大的视觉,往往能带给人平衡、纵深,置身其中一起探索。
延续整体空间氛围,为本身增添了宛如艺术品一般的独特气质。
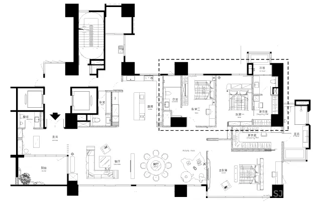
次臥更衣室延续木质温润基调,打造机能十足的空间,区隔卫浴又具有穿透感。借以延伸、穿透、借景和复合。
生活痕迹 Life Style
时不时的眺望,从白昼到黄昏
观察夕阳西下光影的关系。
Learning to live in harmony with Nature
居住者为一对年轻夫妻及其儿女,屋主热爱大自然及摄影,希望小孩能够住在一间较为接近大自然的房子里,并希望在生活中能培养孩子对美的探索。磅礡的视野、无穷无尽的生命力,居家环境里也能享有休閒氛围。吹著微凉的风,写著生活的盎然惬意,户外始用了菱格纹座椅搭配木制茶几素雅却又不失时尚,喝杯茶、晒晒太阳、点亮蜡烛让每一个角落都充满香气的故事。设计简约俐落,明亮且宽敞的动线切入结合连贯的元素,包括线条、色彩、材质、比例并延揽窗外山河的美景,时不时的眺望,从白昼到黄昏,观察夕阳西下光影的关系。
设计亮点/Design Idea
Circle and Line
「弧」,圆润的包覆著空间中的故事,诉说着与众不同的场域,创造出立面视觉的跳跃感。视线一直延伸至天花板,天际线也可以有更多艺术的动态效果。圆弧减去了直角带来的锐利,带来了线条的柔和。空间借由圆弧巧妙的串联,交错、叠合出生活中的另一种层次。「线」,俐落的穿梭著时光中的横与纵,非等距排列或疏密变化,勾勒出可塑性和稳定感。细节处展现出轴向之间的线条与量体切割呈现丰富的变化,透过比例、排列、交织、延伸,赋予每一条框线可简约,可繁细,也可以温柔。线条与生俱来的强大的视觉,往往能带给人平衡、纵深,置身其中一起探索。
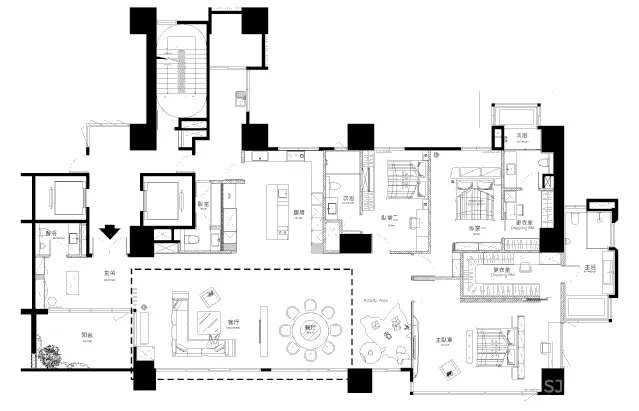
项目名称: 境迹堤岸美学公寓 LEE HOUSE
设计面积:244平方米
完工时间:2020年3月
主案建材:涂料 马鞍皮 木饰烤漆
摄影: 游宏祥摄影工作室
设计公司:王中丞設計事務所
设计重视人和环境的关系,了解观察外部空间必须充分填入室内,透过光影和风感与空间结合的人文精神,创作最适合当下的感官设计,探索设计本质的丰硕成果。多元且国际化的设计创意,敢想、敢做、做到的作风发起全球设计界一个又一个的冲击,2001年创立顶尖精品设计事务所
团队由国内外年轻且学经历丰富 建筑及室内设计师组成,
有著全面性的顶级设计服务,乐于在每段设计构思时将创意发挥至极致,

