来自日本的设计师出口勉和冈本庆三于2012年合作成立“
”,他们坚信“设计要反映出现代人的生活状况与生存环境”,所以他们的设计都以“尊重他人的文化”为宗旨。
然而在多元文化交汇的今天,将古典文化直接反映在设计作品上已经远远不够。
“单一文化已不符合时代的特征,对不同文化的相互理解,这才是在现今社会最重要的能力。
”因此,无论是城市规划、建筑设计还是室内设计,odd(Okamoto Deguchi Design)都追求以最新、最现代的技术和手法,用作品去阐释不同文化的独特魅力。
北京的桃峪口农家小院、鼓楼胡同住宅、南池子四合院法律事务所,都可以看到odd运用多元文化的娴熟与其独特的视角。
经过了几年的沉淀与积累,odd凭借旧屋改造与商业项目设计作品为主荣获了很多国际大奖,并渐渐为众人所知。
目前他们以北京为基地,在中国各地进行着能够改变生活模样的设计创造
ID G国际空间设计大奖/ 餐饮空间设计银奖
中美国际设计/ 家居空间类国际创新设计奖
韩国ASIA DESIGN PRIZE 2017 WINNER
意大利A’DESIGN AWARD / A’street Furniture Design Winner
AD100 2017年最具影响力100位建筑,设计精英/ 餐厅人气奖
AD100 2017年最具影响力100位建筑,设计精英/ 最佳餐饮空间奖
北京东方金融中心 x 涵.日本料理
: odd(okamoto deguchi design)设计事务所
: 出口 勉 \ 冈本 庆三 \ 王朗旭
: 北京市朝阳区东方金融中心
: 锐景摄影 —— 广松美佐江/宋昱明
位于北京丽都东方金融中心的涵·日本料理,是由odd设计完成的高端日本料理店。
此次我们尝试以新的形式展现设计想法,与其说在做设计,不如说是在讲一个关于“礼物”的故事。
在一个纯黑的空间,点亮六个似裁月镂云,形态各异的方盒子,灵感来源于日本传统的重箱,这是一种只在重要节日或者仪式中使用的食物容器。在这个概念上我们巧妙融汇了自大唐起源,又在日本发展衍化的漆艺技法——
,使其再次升华,并赋予它们新的生命,取名为远方的礼物。
传统的工艺手段是将金属粉末和漆料混合,再由工匠描绘在木材的泥金漆画。
此次设计在保留原有视觉不被破坏的前提下,改变传统材料和技法,通过新的科技手段转为玻璃夹画工艺,完美呈现了传统艺术的光辉岁月。
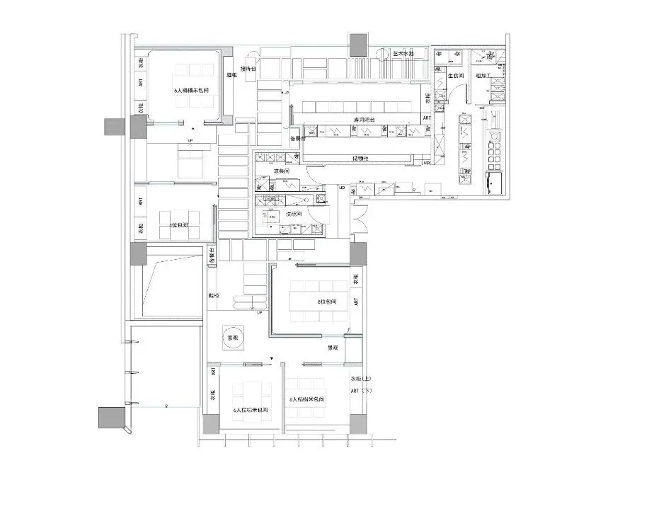
这六个“礼物盒”错落有致的分布在一个“T”形的黑暗空间中,包括五个独立的包间和一个半开放的板前料理区。
运用巧妙的设计手法,使其达到悬浮与落地的独立错落感,彼此分隔相互眺望。
我们在沿着客人的体验路线布置枯山水景观,希望体验者可以随着渐入空间内部,慢慢探索并发现新的趣味。
而墙面别出心裁的观景窗,不仅打破了内与外的僵硬界限,还在客人享受美食之余带给其另外的观景喜悦感。
如果说什么是料理艺术的绝佳呈现,毋庸置疑必是板前料理区。
为保证后厨的新鲜食材第一时间传递到主厨手中,我们将厨房与板前区连接一并设置在入口处,并以半开放的形式展现板前区域的特殊性,也是唯一被我们打开来呈现的“礼物盒”。
轻清者上浮而为天,重浊者下凝而为地。
浅色木线条具象了远处的云,黑色的木花格栅与水磨石抽象了近处的山。
主厨吧台后的壁龛使用纹理独特的深色艺术大理石,与整体的浅色形成强烈对比,不仅提升了空间的庄重感,更为整体色调起到了点缀。
左:板前区入口 右:板前区 沿着起伏的黑色的石材踱步其中,这里每一扇门后面都是我们准备好的礼物,它们独树一帜别具一格,诉说着不同的故事。
灯光照耀到的地方,星星点点的金粉自下而上散布在黑色的墙面。
作为商务宴请的两个包间,我们希望它更加沉稳的同时也增添一丝活力。
运用更多的金属元素,减少木质材料,使空间个性鲜明,对比强烈。
四人包间天花与立面弧形连接,延伸了相对较小的空间。
墙面我们将质感细腻的自然石材,融入新的线条语言,雕刻成若干的小块石材,使得整体空间虽小但不失精致。
空间深处的两个六人和室,相近的材质,不同的表达方式,与其他包间相比,虽少了耀眼的金色,却另显质朴。
深色的木格栅线条,若草色的榻榻米席,米黄色的粗疏漆料和白色的哑光和纸,无不诉说着别致的优雅,简单又不乏生气。
每个包间都有属于自己的格调,每位食客都有属于自己的故事,正如每个礼物都有属于自己的意义。
南京万豪酒店 x 宙.SORA日本料理
项目名称:宙·SORA日本料理
建筑事务所:odd (okamoto deguchi design)设计事务所
出口 勉 \ 冈本 庆三 \ 李恒
江苏南京市江宁区景枫万豪酒店一层
锐景摄影 —— 广松美佐江/宋昱明
灯光设计:Lighting Planner Associates
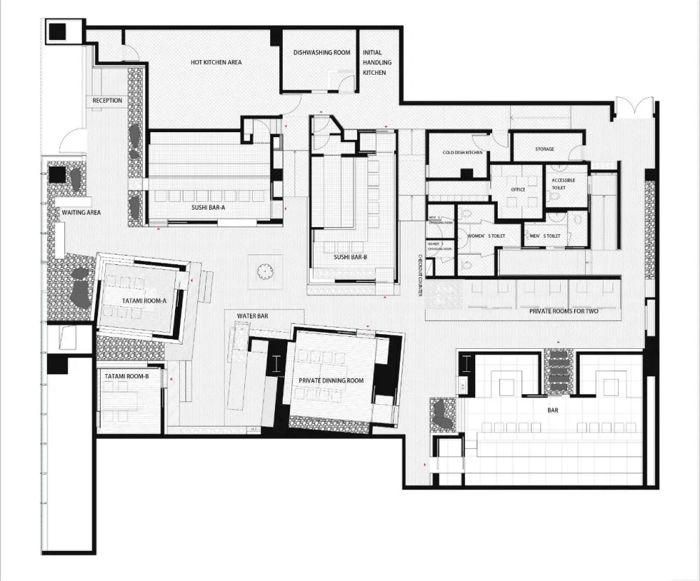
宙·SORA是odd设计事务所设计的一个高档日本料理店,项目位于江苏南京市江宁区景枫万豪酒店一层。
空间使用均为包间形式,由两间8人寿司包间,两间6人榻榻米包间,一间8人包间,三间2人包间等组成,还包括一间私密的威士忌酒吧包间。设计师尽力于每个独立空间中打造出不一样的亮点,各个空间彼此独立又统一于整体氛围。包间之间以日式枯山水景观分隔,丰富了空间的内外互动。每个包间配有单独观景窗口,给予客人别致的用餐感受。
这次设计的空间虽是以黑色为主基调,整体却也不显沉闷,主要得益于设计师采用了丰富的用材和合理的灯光设计。大堂软膜灯光由两侧墙体延伸至天花,柔和的光线洒满整个空间。公共区域墙体大部分为精致的镂空木雕花格,整体花格以日本江户时期云海为素材图案,排列形成一幅灵动的画面。利用空间的高度优势,水吧台与两人包间上方错落排布悬空盒子,表面赋予木质木花格云海般波澜壮阔图案,让整体更加丰富,灵动。空间内部天然粗糙的毛石墙面与精工细作的木花格形成显著的对比。
A寿司包间,自然,温馨。寿司吧台背景柜体花格雕刻,形成的图形纹样与整幅天然大理石花纹之间相互呼应。空间无需更多其他装饰,从而体现日料文化的纯粹和职人精神。
B寿司包间,新颖,活力。区别于传统寿司吧台,这里采用黑色镜面不锈钢,突出吧台的体量感。材料的反射,赋予空间更多鲜活的质感。而墙面柔动的线条肌理,中和了吧台的坚硬冰冷,凸显这个独立空间小却精致。
A榻榻米包间,凹凸的天然花岗岩,让墙面层次更加丰富,质朴。
B榻榻米包间,空间的浅色肌理涂料与深色木饰面的形成显著的对比。
威士忌酒吧,吧台处墙面特殊的图案造型搭配灯光设计,呈现出了烟雾缭绕的效果。
光影变化制造空间的流动感,也赋予人一步一景的空间体验。两侧的镜面又使空间得以延申。

