 
 
Atemporal是一个由建筑师组成的多学科工作室,2011年在墨西哥城成立,旨在通过从建筑、家具设计到视觉识别的不同领域的整合来创造新的空间美学。
 
 
Xaman Tulum
Area: 783 m²
 
 
该空间位于图卢姆(Tulum)丛林中,就像它在墨西哥城的姊妹屋一样,与周围的其他地方不同,并且隐藏了入口,只是为了让那些真正在追寻不同体验的人注意到它。
 
 
 
 
 
 
 
 
 
 
 
 
 
 
 
 
 
 
 
 
该项目根据组成该集合的模块来划分它的区域:两个独立的亭子作为用餐者区,卫生间隐藏在一个混凝土建筑的后面,酒吧是了整个空间的中心,并将厨房和其他服务空间巧妙的隐藏在建筑的后侧。
 
 
 
 
 
 
 
 
 
 
 
 
 
 
 
 
 
 
 
 
 
 
 
 
通过基本的构造要素:圆柱,楼板,直墙,弯曲的墙以及这些高度的差异,创造出不同的空间体验,并且始终以其最纯粹的表达与空间保持联系。
 
 
 
 
 
 
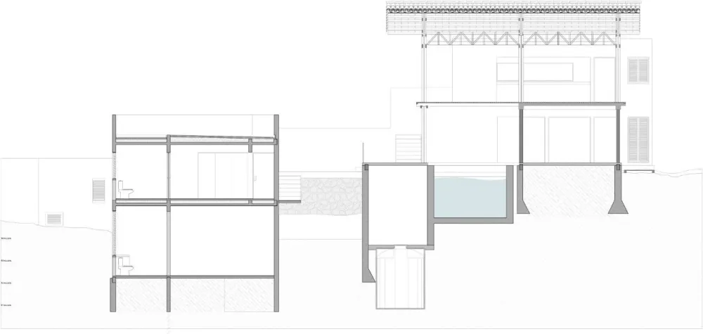
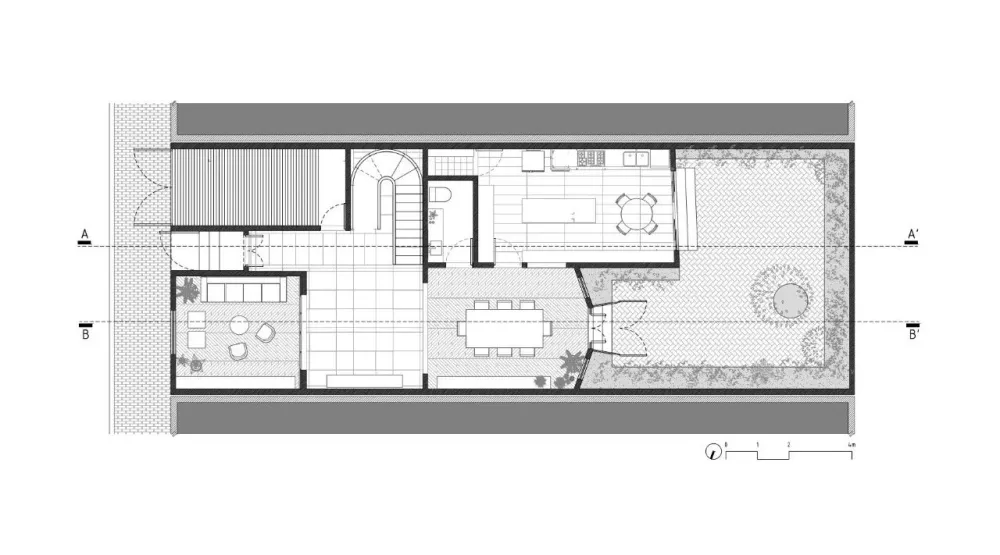
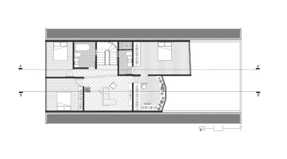
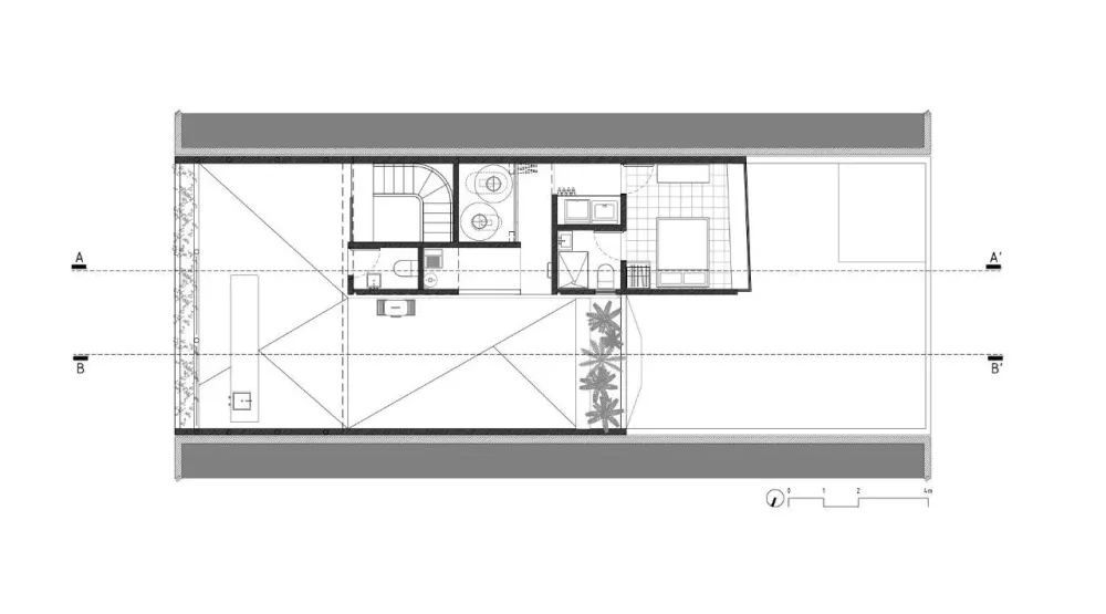
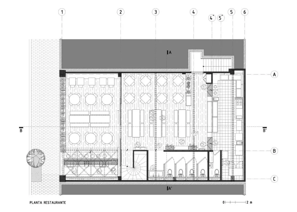
Casa Mermejita
Area: 355 m²
 
 
这座山中别墅,是我们深思熟虑和对山上的树木和技术进行分析的结果。该项目是通过使用该地区典型的石墙、石灰饰面和木材完成的,该项目旨在思考每一个空间该如何舒适的居住。
 
 
 
 
 
 
 
 
 
 
别墅的体量和周围环境营造出一种美丽和安静的空间氛围,并且丰富了我们的感官体验,创造了一种强烈的归属感。
 
 
 
 
 
 
 
 
 
 
 
 
为了尽可能地自给自足,该建筑专门做了收集水和废水处理的功能,并且还可以自己发电,并重新使周围的植被变得密实。
 
 
 
 
 
 
 
 
 
 
 
 
 
 
CASA MILTON
Area: 227 m²
 
 
该项目的最终阶段是修复一栋世纪中期的住宅,该住宅曾在2014年至2016年间分进行阶段进行了改造,其中二三层分别被改造为临时公寓和露台。
 
 
 
 
 
 
 
 
 
 
 
 
 
 
 
 
 
 
 
 
该项目的三个阶段的每一个阶段都旨在重新诠释房屋建造时期的比例、氛围和主题;将原始元素与新的色彩融合、共存,并产生新的空间体验。
 
 
 
 
 
 
 
 
 
 
 
 
Area: 224 m²
 
 
这家名为“campobaja”的餐厅由estudio atemporal公司与despachodurango合作设计,为墨西哥城的克罗拉罗马(colonia roma)带来了一份巴哈美食。空间被分成两层:下层是通向有屋顶的门厅区域的小街道入口。沿着餐厅的楼梯向上走,你看到一个充满活力的仓库风格的用餐区,这里有造船厂的废弃木材重新制作而成的地板、桌子、置物架等,还有从从巴哈教室回收的椅子为丰富了空间的色彩。
 
 
 
 
 
 
 
 
 
 
 
 
 
 
 
 
 
 
 
 
 
 
 
 
 
 
 
 
 
 


