本项目靠近湖南广电中心和长沙世界之窗,是集聚年轻人的位置。方案表现为从天真滑稽到怪诞离奇等不同情趣,展现各种富于个性化的文化内涵的孟菲斯风格设计。就像夜幕降临后长沙人的生活态度。超大分贝的音乐加上美味的各种洋酒、鸡尾酒,他们的个性,不受拘束将白日的烦恼抛至九霄云外。
 
 
孟菲斯风格设计与长沙的夜文化这两种同为不羁、个性的文化,它们的结合让长沙这座城市充斥着鲜活的色彩。
 
 
/风格的定位/
横向:同市场竞争
传统束缚的中式设计,极简朴素的简约风格,低调内敛的现代风格,占据着地产的巨头。
 
 
纵向:同品类竞争
狭小不流通、空间没法利用、布局不合理的同类公寓。
 
 
/设计理念/
近几年,伴随着人们的情感需求和对个体独立性的日益重视,注重人文和个性的孟菲斯风格逐渐回潮。
 
 
孟菲斯这种无厘头不按常理出牌却又极具表现力的属性契合了现如今年轻人的价值观,同时也对那些固有的传统设计思维进行了重新定义。
 
 
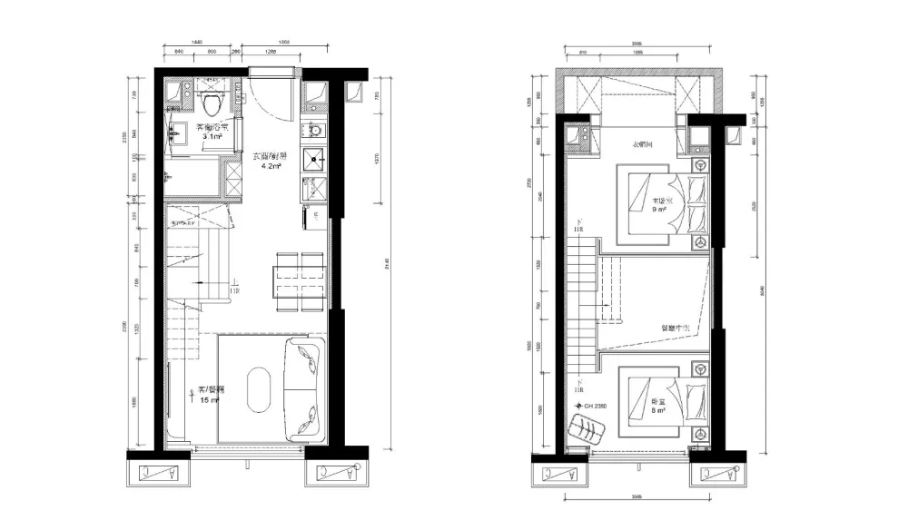
本案在原有的建筑条件上,将空间布局进行了重新梳理,打造一个60平米的惬意loft两居室,将不必要的家政空间完全打开,拒绝固有的闭塞 , 以创造明朗开敞的起居空间,自由地承载着多元化的生活方式。
 
 
/客厅/
本案空间以当代青年的审美视角将空间具化为兼具功能性和艺术创造性的生命。设计师将霓虹交织的夜色融入到整体背景墙上,同时将孟菲斯独到的配色哲学蔓延到当代都市生活空间中,旨在呈现个性不羁的生活气息,制造生活的趣味和不凡气质。
 
 
 
 
 
 
/餐厅/
孟菲斯这种无厘头不按常理出牌却又极具表现力的属性契合了现如今年轻人的价值观,同时也对那些固有的传统设计思维进行了重新定义。
 
 
 
 
设计没有确定性,只有可能性。没有永恒,只有瞬间。
 
 
 
 
 
 
/卧室/
在千篇一律的高楼都市里,年轻人的个性被生产流水线磨平棱角。坚持自我,追求个性是现代都市中远渺的愿景。
 
 
 
 
 
 
当个性被大众声浪挟持,自由成为只能在字典中被看到的奢侈品。
 
 
 
 
 
 
项目名称 | 藏珑·湖上公馆样板间
业主机构丨双瑞房地产开发有限公司
项目面积丨60㎡
软装设计丨湖南纱纱优家空间设计有限公司
项目主创丨陈志铎/丁丽/杨旦
摄影团队丨®南图摄影


