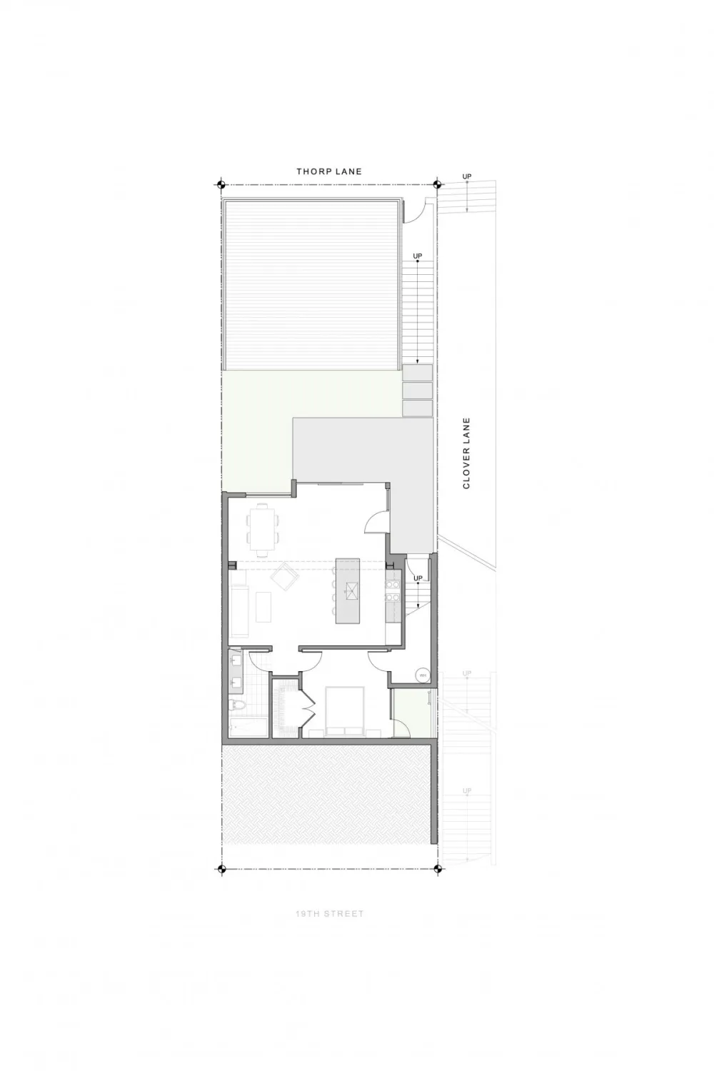
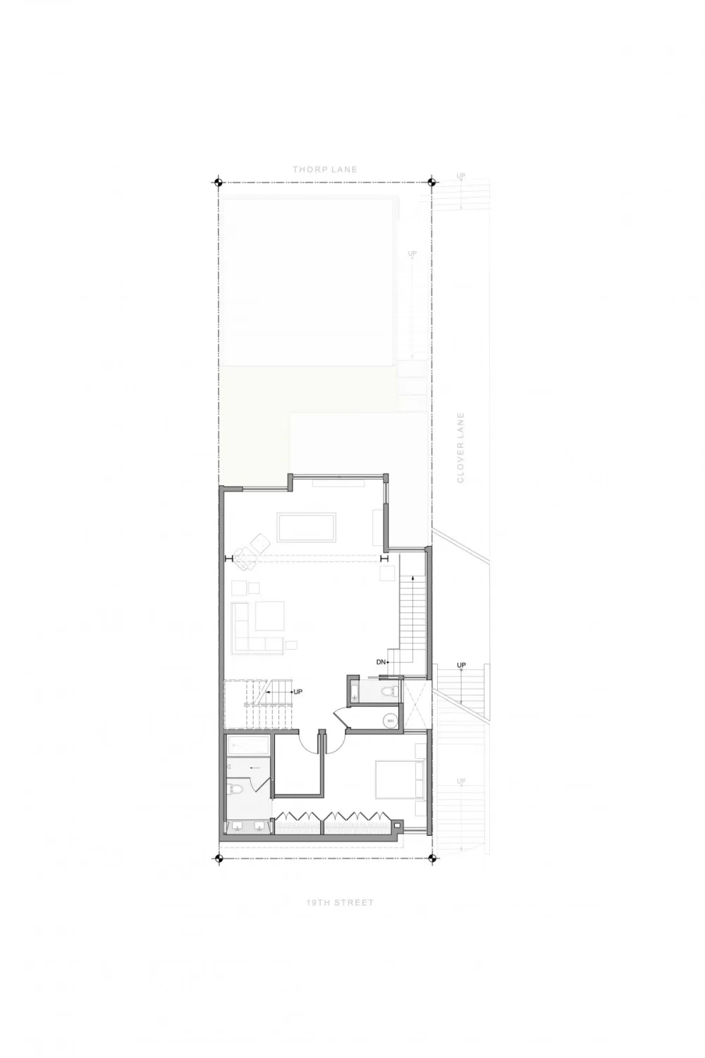
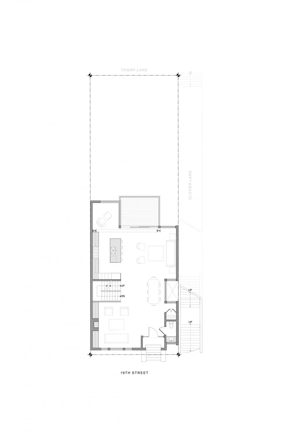
位于旧金山尤里卡谷(Eureka Valley)附近一处斜坡上的住宅,由当地的室内设计工作室John Lum Architecture翻新设计。这座住宅它横跨19th Street和Thorp Lane。该项目被称为“19th Street”,其特点是在前面有一层山墙,在后面增加了五层。









John Lum Architecture对比了这座城市中小屋风格的房子和后面的钢筋玻璃扩建部分。工作室拆除了现有住宅的大部分后部,取而代之的是一个更大的、平顶的附加部分。它的钢壳和落地窗与原来的住宅形成了鲜明的对比,室内有更多的自然光、更大的地板和更高的天花板。




谢谢分享