市中心的一个时尚街区的 29 楼
Balbek Bureau/Slava Balbek
Yevhenia Dubrovskaya
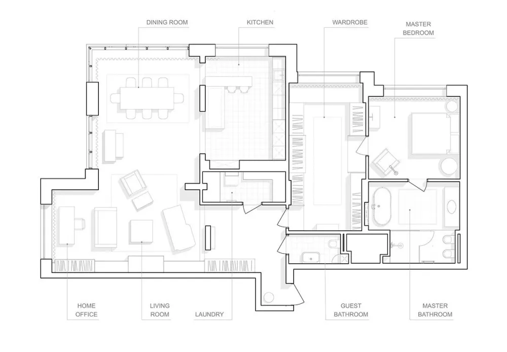
进人室内,玄关的设计非常特别
旁边还有大面积的储物柜
让人进家门的一瞬间就感到身心愉悦
客厅有一个壁炉、一台电视机
红白两色的沙发相对摆放
绿色的茶几、灰色的地毯
每一行,每一列的大小,
可以储藏各类尺寸的书籍
铜色冰箱手柄和同色水龙头
每一处设计都有着独特的魅力
右边通往是厨房的烹饪区
黑色的木制餐桌搭配八张餐椅
顶部是一套白色的组合吊灯
给人带来舒适的生活享受
鲜花、挂画、书本、壁灯
淡绿色的柜体与金色拉手搭配
一盏黄铜吊灯做为照明 大量的衣柜,鞋柜
可以满足任何衣服、鞋子、配饰的摆放
旁边的淋浴区被大理石包裹
金色的花洒、水龙头和毛巾架
白色的墙面,粉色的天花板

