MOON 由摄影师/金浩森和文子/于2009年创立,以摄影的视角分享生活的点滴,“记录你的美好”。新工作室选址杭州滨江,为一个500㎡的空间,由MOON DRINK、金浩森摄影学院、MOON摄影工作室三部分组成。
MOON was founded in 2009 by photographer/Jason andWen/to share your life from the perspective of photography and recordyour beauty. The new studio is located in BINJIANG HANGZHOU, with a spaceof 500 square meters and consists of three parts: MOON DRINK, Jinhaosenphotography institute and MOON photography studio.
▼ MOON DRINK | Spase
Overview of original building
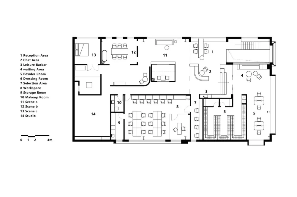
原建筑为一个层高9m的钢结构,彩色压型瓦作为表皮的建筑体,一层为6m*16m的长方形空间,二层为16m*25m的方形空间,如何在这个7字形空间里呈现MOON的专属形象成为此案的一个重要课题。
The whole space is a 9m high steel structure, thecolor pssure tile as the skin of the building body, the first floor 6m*16mrectangular space, the second floor 16m*25m square space, how to psent theexclusive image of the MOON in this 7-shaped space has become an importantissue.
Design logical
本案以相机为出发点搭建整个空间形态。同时我们提出三个问题作为核心设计逻辑:
1、如何形成高辨识度的视觉形象与记忆点?
2、如何展现当下的审美标准与品牌特性?
3、如何控制建造成本同时呈现强烈的质感?
This casetakes the camera as the starting point to build the entire spatial form. At thesame time, we propose three questions as the design logic of this case:
1. How to forma highly recognizable visual image and memory point?
2. How topsent the current aesthetic standards and brand characteristics?
3. How tocontrol the construction cost and psent a strong texture?
▼ MOON DRINK | Spase
镜头作为通道,折射物质空间,经过层层过滤,形成光学影像。
The lens ACTS as a channel,refracting material space and filtering through layers to form an opticalimage.
Unifiedmaterial under the texture of the psent
Design concept
空间构思从镜头、快门、相机皮腔出发作为三大基本样式,以此展开延伸,将6m*16m的体块部分作3层划分,依次为:MOOM DRINK; 摄影学院;摄影工作室。MOOM DRINK区域以大面积的铝板与玻璃作为主要材质以获得极具现代感的空间质感,形成整个品牌的第一视觉体验。
Thespace conception starts from the lens, shutter and camera skin cavity as threebasic styles, which are expanded and extended, and the volume part of 6m*16m isdivided into three layers. Photography academy; Photography studio. The MOOMDRINK area USES a large area of aluminum and glass as the main materials toobtain a very modern spatial texture, forming the first visual experience ofthe whole brand.
▼MOON DRINK | Spase
由相机构件概念延伸设计的室内道具
Interiorprops designed by extending the concept of camera components
夜晚从外部观察,整个一层成为一个透明的发光体,使建筑呈现悬浮的状态,营造出具有强烈记忆点的视觉效果。
Viewed from the outside at night, the whole groundfloor becomes a transparent luminescent body, making the building appear to besuspended and creating a visual effect with strong memory points.
▼MOON Photo Studio | facade
整个一层成为一个透明的发光体
The whole ground floorbecomes a transparent luminescent body
Space division
将前端的两层建筑体作为三层划分,重新确立空间尺度。阶梯作为连接三层空间的主要路径,承担着三维坐标轴的角色。长方体块的直向运动呈现阶梯的连续状态,在这个纵向的空间里,我们设计了一个镜头状的圆形窗,使这个纵向路径有了横向的视线,同时镜头的形式给窗户的功能带来窥视感,形成趣味性的第二空间体验。
The two-storeybuilding at the front is divided into three floors to re-establish the spatialscale. As the main path connecting the three floors, the ladder plays the roleof three-dimensional coordinate axis. The straight motion of cuboid blockpsents the continuous state of ladder. In this vertical space, we designed alens-shaped circular window, so that the vertical path has a horizontal line ofsight. Meanwhile, the form of lens brings a sense of peep to the function ofthe window, forming an interesting second space experience.
▼ Ladder | Space
长方体块的直向运动呈现阶梯的连续状态
The straight movement ofcuboid blocks psents the continuous state of stairs
Photo Studio
MOON摄影工作室部分,去除了多余的造型,留下一个纯白的干净空间,给人以放松感,在满足功能需求下,屋顶面切割出长条形的天窗,计算完比例后,在接待区部分增加白色格栅以过滤光线,阳光透过格栅游走于纯白的墙面,使三维的空间有了一份时间的感知,给原本的物质空间增加了一份诗意。
MOONphoto studio, in addition to the redundant modelling, leaving a clean whitespace, give a person with relaxed feeling, in meet the functional requirements,the roof surface cutting out the rectangular skylight, after calculating theratio, increase in the reception area part white grille to filter the light,the sun through the grille loiter lily-white wall, make the three-dimensionalspace has a copy of the perception of time, to the original material of thespace added a poetic.
▼ STUDIO | Spase
天窗区域作为整个工作室的中心,营造一种积极的空间氛围,阳光的摄入丰富了整个空间的表情,同时在心理层面影响使用者的状态。
The skylight area, as thecenter of the whole studio, creates a positive spatial atmosphere. The intakeof sunlight enriches the expssion of the whole space, and at the same timeaffects the state of the users on the psychological level.
光线游走于白色的墙面,给物质空间增加了一份诗意。
Thelight walks in white metope, added a sense of time to material space.
▼ Photography local | Spase
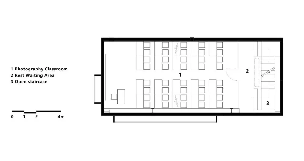
▼ 三层平面布置图 | 3F Plan
项目名称 | MOON Photo Studio
设计公司 | 偏离设计
设计时间 | 2019年9月
竣工时间 | 2020年1月
设计团队 | 徐俊彪、李钢、戚帅奇、苏荣荣
项目地址 | 中国 杭州
项目面积 | 500㎡
工程施工 | 欧来艺(杭州)装饰有限公司
项目主材 | 铝板、水磨石、黄铜、亚克力
Introduction of DPAA
偏离设计是一家小型多元化的设计研究室,由设计师小岛于2017年创立。尝试抛开固定设计思维,以当事者的态度参与每一个事件的发生,从事物本身出发,提供设计的多种可能性。集建筑、室内、景观、产品等于一体,以团队合作为基础,多角度,综合叠加,差异而独特的思考为每一次新挑战提供创造性基础。
DPAAdesign studio is a small, diversified design lab founded by designer Dao in2017. Try to put aside the fixed design thinking, to participate in theoccurrence of each event with the attitude of the person concerned, from thethings themselves, to provide a variety of design possibilities. Setarchitecture, interior, landscape, products equal to one, based on teamwork, comphensivesuperposition, Different and unique thinking provides a creative foundation foreach new challenge.

